ESTADO Y DESARROLLO
EN LATINOAMÉRICA
FERNANDO SALVADOR: UN EXILIADO
DE EXCEPCIÓN COMO FUNCIONARIO
DEL ESTADO Y LA ARQUITECTURA
ASISTENCIAL EN VENEZUELA (1936-1960)
FERNANDO SALVADOR: AN EXCEPTIONAL
EXILE AS A STATE OFFICIAL
AND THE ASSISTANCE ARCHITECTURE
IN VENEZUELA (1936-1960)
ANA ELISA FATO OSORIO
Decanato de Investigación, Coordinación
de Investigación Sociocultural,
Universidad Nacional Experimental del Táchira,
San Cristóbal, Táchira, Venezuela
0000-0002-7841-3070
Recibido: 29 de agosto del 2022
Aprobado: 29 de noviembre del 2022
doi: https://doi.org/10.26439/limaq2023.n012.6005
Fernando Salvador (1896-1972) fue el último representante diplomático de la Segunda República española ante el Gobierno de Venezuela. Al término de la Guerra Civil, como otro exiliado más, fue contratado como arquitecto sanitarista por el Estado venezolano, primero en el Ministerio de Obras Públicas (1874) y, luego, en el Ministerio de Sanidad y Asistencia Social (1936). En este artículo, nos referiremos a la participación de Salvador como funcionario público en la proyección de edificaciones asistenciales, a los aportes sobre las pautas funcionales y a los criterios de diseño para sanatorios antituberculosos como parte de las obras públicas construidas por el Estado. A partir de la revisión bibliográfica, hemerográfica y documental, se reconstruyen, organizan y analizan las características de algunos edificios y cómo estos se convirtieron en modernas tipologías hospitalarias, en las que se acondicionó el lenguaje arquitectónico nacional con los elementos modernos del momento.
arquitectura asistencial, Estado venezolano, Fernando Salvador, sanatorios antituberculosos
Fernando Salvador (1896-1972) was the last diplomatic representative of the Second Spanish Republic to the Government of Venezuela. At the end of the Civil War, when he was just another exile, the Venezuelan government hired him as a sanitation architect, first in the Ministry of Public Works (1874) and later in the Ministry of Health and Social Assistance (1936). This article discusses Salvador’s role as a government official designing healthcare buildings and his contributions to functional guidelines and design criteria for state-built anti-tuberculosis sanatoriums. Through a review of the literature, we reconstruct, organize, and analyze the key features of some buildings and how they evolved into modern hospital typologies, blending the national architectural language with contemporary modern elements.
healthcare architecture, Venezuelan State, Fernando Salvador, tuberculosis sanatoriums
Este es un artículo de acceso abierto, distribuido bajo los términos de la licencia Creative Commons Attribution 4.0 International (CC BY 4.0).
Desde una perspectiva historiográfica que se sitúa en la historia del tiempo presente1, las obras públicas en Venezuela, como parte esencial del proyecto de modernización, comenzaron en el siglo xix con la creación del Ministerio de Obras Públicas (MOP) en 1874. Le correspondió al MOP, como instrumento del Estado venezolano, construir una moderna infraestructura que se acercara a la imagen de los países más desarrollados. Los objetivos del MOP se delinearon sobre la base de seis temas principales: creación de una red ferroviaria, construcción de carreteras y caminos desde el interior del país hasta la capital Caracas, canalización de ríos, construcción de obras marítimas, construcción de acueductos y ornato de las ciudades que incluían edificios públicos, entre los que se encontraban los hospitales (Arcila, 1974, p. 49)2.
Durante el siglo xx y, en particular, al finalizar la Primera Guerra Mundial, el paso en Venezuela de una economía netamente agrícola a una de renta petrolera permitió un salto importante en el proyecto de modernización en lo que a construcción de obras públicas se refiere: escuelas, templos conmemorativos a la Independencia de Venezuela, mercados, teatros, hospitales, iglesias, palacios de gobierno, entre otros. Durante el largo ejercicio autocrático de Juan Vicente Gómez (1908-1935)3, la mayor parte de las inversiones se destinó a las vías de comunicación, inmigración, colonización, saneamiento y obras públicas. Dentro de este contexto, las edificaciones sanitarias construidas por el MOP y el Ministerio de Sanidad y Asistencia Social (MSAS) han ocupado, desde 1936, un lugar importante, en tanto el Estado se consolidó como el principal gestor en la ejecución de obras públicas a partir de la formulación de planes y programas para los sectores considerados más importantes, entre ellos la atención del sistema asistencial venezolano (Fato, 2021, p. 60).
Mientras se incrementaba la participación del Estado en las políticas de intervención sobre la ciudad a través de la planificación y la construcción de una infraestructura garante del desarrollo del país, se consolidaban las intervenciones de los profesionales de la ingeniería, de la arquitectura y de la medicina.
Como parte de las actividades de estos profesionales en las gestiones del moderno Estado, se encuentra el registro de importante literatura que abarcó desde la elaboración de estudios de proyectos y métodos de diseño hasta la explicación y descripción de edificios ya construidos, toda ella publicada en revistas especializadas, memorias de congresos y otras promocionadas por el Estado, de amplia difusión. Uno de los casos al que nos referiremos en este artículo será la participación del arquitecto Fernando Salvador (1896-1972) en la proyección de edificaciones asistenciales como parte de las obras públicas construidas por el Estado, además de sus aportes sobre las pautas funcionales y los criterios de diseño para sanatorios antituberculosos.
Salvador llegó a Venezuela en 1938 y, después de finalizada la Guerra Civil española, al culminar su papel como encargado de negocios de España en Venezuela, fue contratado por el MOP y el MSAS como el primer arquitecto en la División de Ingeniería Sanitaria, posteriormente, Sección de Arquitectura Sanitaria creada en 1944. Por lo tanto, su contribución fue especialmente importante para la arquitectura hospitalaria construida por el Estado.
El hilo conductor de este artículo corresponde con el papel de este arquitecto como funcionario al servicio del Estado en la proyección de edificaciones asistenciales y de la aplicación de un método de diseño, visible en algunas obras construidas como proyectista del MSAS. Aquí consideramos aquellos hospitales que fueron pensados, específicamente, para tratar una de las enfermedades más recurrentes en los primeros cincuenta años del siglo xx, la tuberculosis, por lo que las soluciones arquitectónicas de Salvador fueron ajustadas, también, a las consideraciones médicas para curar esta dolencia.
Veremos cómo en Caracas, Maracaibo, Cumaná y Valencia se ensayaron las propuestas arquitectónicas modernas de Salvador. Los ejemplos más notables los encontramos en el Sanatorio Antituberculoso Infantil en Caracas, en los Sanatorios Antituberculosos de Maracaibo, de Cumaná, y, finalmente, en el Sanatorio tipo B utilizado en Valencia y Caracas. En todos ellos existe correspondencia entre los estudios publicados de Salvador y las condiciones de emplazamiento, organización y funcionamiento de estos edificios.
DEL EXILIO ESPAÑOL A LA ARQUITECTURA
DE HOSPITALES EN VENEZUELA
Fernando Salvador nació en España. Estudió arquitectura en la Escuela Superior de Arquitectura de Madrid y obtuvo el título en 1922. Se especializó en el diseño de hospitales, mientras se desempeñó en cargos públicos en el área sanitaria en su país natal. En septiembre de 1938, fue nombrado encargado de negocios de la República española en Caracas, cargo que ocupó hasta marzo de 1939 cuando finalizó la Guerra Civil española. Posteriormente, fue contratado como arquitecto por el MOP y el MSAS. En esta última institución, ejerció sus funciones hasta 1960, donde realizó innumerables proyectos de sanatorios, hospitales, unidades sanitarias y medicaturas, así como revisando los planos de otros proyectos realizados por el MOP.
La experiencia de Fernando Salvador fue determinante para ser elegido como el primer arquitecto contratado por la División de Ingeniería Sanitaria del MSAS. Muchos de sus estudios y criterios de diseño fueron aplicados en edificios asistenciales de diferentes dimensiones ubicados en algunas ciudades venezolanas. A él se le atribuye la creación de la Sección de Arquitectura del MSAS en 1944, donde permaneció como proyectista hasta 1959. Seguidamente, en 1946, se incorporó a la recién creada Comisión Interministerial del MOP y del MSAS que se encargó de realizar los proyectos de manera coordinada entre ambos Ministerios. Luego, en 1950, por un lapso de diez años, se desempeñó como arquitecto en la Dirección de Edificaciones Médico-Asistenciales del MSAS.
El MSAS consolidó sus funciones de proyectar los hospitales, en tanto era el campo de su competencia, mientras que el MOP realizó las evaluaciones necesarias de los proyectos al momento de su construcción. El trabajo de diseño de hospitales dejó de ser asunto de un profesional contratado por alguno de estos ministerios, para ser trabajo de un equipo de profesionales agrupados y amparados en una institución.
Salvador, con conocimientos claros de la situación histórica en la que se encontraba Venezuela y con una vasta experiencia como especialista de hospitales en España, manifestó sensibilidad por la escritura, hasta de carácter pedagógico, por lo que dedicó buena parte de su carrera profesional a registrar estudios sobre el diseño de edificaciones asistenciales.
Estaba claro para el arquitecto, al momento de su llegada al país, que Venezuela daba sus primeros pasos hacia la construcción de una vida moderna, que había iniciado en 1936 luego del gobierno y la muerte de Juan Vicente Gómez (1935), una nueva estructura política democrática de apertura para la construcción de un moderno Estado. Fue el momento de cambios en los sistemas de comunicación, en las organizaciones urbanas, en el acercamiento al mercado mundial capitalista, en la construcción de infraestructura comunicacional, habitacional, educativa y asistencial, capaz de atender a la muchedumbre que fue incorporándose desde los primeros años del siglo xx a las grandes ciudades venezolanas (Fato, 2021, p. 61).
El entusiasmo y la productividad de Salvador por las actividades en el país no decayeron, incluso luego del golpe de Estado en 1945, con Rómulo Betancourt como presidente de la Junta Revolucionaria de Gobierno (1945-1948), cuando se establecieran las relaciones diplomáticas con la Segunda República española en el exilio, constituidas para ese entonces en México. En este tiempo, vamos a notar la relevancia del papel de Salvador en los proyectos de edificaciones asistenciales normalizados, aprovechando que la administración pública no paralizó los planes en los ámbitos de vialidad y salud, sino que, más bien, aumentó sus presupuestos.
Fue en estas condiciones estructurales del país en donde Fernando Salvador se incorporó cómodamente como arquitecto de hospitales, fue reflexivo sobre la prioridad de la salud para el Estado y la decidida intención de construir una red asistencial que ocupó buena parte del territorio (Fato, 2021). Los cambios en la infraestructura hospitalaria fueron al ritmo con otros en la organización institucional, además de publicaciones que buscaban dar publicidad a los actos administrativos y a la difusión de proyectos y estudios relacionada con las obras públicas nacionales. Estas publicaciones fueron una ventana para mostrar los productos y la renovación de las estructuras del Estado.
Consciente de esta coyuntura, Salvador publicó estudios sobre arquitectura hospitalaria en los medios propios para ello, así fue como se dio a conocer el Proyecto de hospital para cien camas publicado en 1940 en el volumen 5 de la Revista de Sanidad y Asistencia Social, como proyectista al servicio de la Sección de Ingeniería Sanitaria. En este artículo se establecieron las pautas a partir del programa de necesidades y características de este hospital, el lugar de emplazamiento, las disposiciones generales y la distribución de las plantas. El detalle del texto y la manera como el autor expuso la forma de proyectar un edificio constituyó un manual de arquitectura hospitalaria para el arquitecto moderno.
Esta publicación, a través de la mirada de la arquitectura hospitalaria, devela las características que esta debió mostrar en Venezuela, más aún cuando Salvador consideró “este proyecto como un caso ideal, como un modelo susceptible de acoplarse al terreno que se elija con un mínimo de modificaciones” (Salvador, 1940, p. 363). El planteamiento buscó adaptar un pequeño hospital al clima cálido propio del país, uno de sencillo funcionamiento que implicara bajos costos durante la construcción, con clara diferenciación de pacientes por sexo, emplazado en un lugar que permitiera la ampliación y cuya periferia fuera arbolada y separada de edificios cercanos, así como ubicar el acceso por la cara sur del terreno, alejado de la ciudad y, preferiblemente, con una superficie de 150 por 150 metros cuadrados.
La edificación descrita corresponde a una tipología edificada adaptada a las condiciones climáticas venezolanas, caracterizada por espacios abiertos relacionados con el exterior mediante galerías protectoras del sol, de habitaciones con ventanas dispuestas en sentido norte y sur, ausencia de ventanas en sentido este y oeste, facilitación de la ventilación cruzada mediante aberturas y montantes, puertas persianas y con paredes que no alcancen el techo. En la organización y disposición de cada sección del hospital se describen las áreas por metros, las características del espacio (cubierto, semicubierto, no cubierto), número de personas a ocupar, relación o no entre los espacios, además del equipamiento médico que cada uno debe contener.
Otra de las publicaciones fue en la XII Conferencia Sanitaria Panamericana de 1946, en la serie 6 de los Cuadernos Amarillos, titulada Trabajos sobre edificios sanitarios de la División de Ingeniería Sanitaria. Todas sus líneas fueron dedicadas a la descripción del funcionamiento de la División de Ingeniería Sanitaria, a la definición y diferenciación de lo que él denominó “ingeniería y la arquitectura sanitaria” y a la descripción de los proyectos realizados como arquitecto de esta división: el hospital de sesenta camas para Guanare, Sanatorio Antituberculoso para Maracaibo y Cumaná, Sanatorio Antituberculoso Infantil (Unidad Sanitaria) para Rubio.
Ambas publicaciones forman parte de los precedentes tanto de la planificación del Estado como del acompañamiento, tanto intelectual como práctico, de los profesionales representantes de los ministerios. En tiempos de modernización, la simplificación en la práctica de diseño de hospitales fue un sincero diálogo con los procesos de masificación y de control de la población.
En los hospitales proyectados por Salvador, todas estas indicaciones se han manifestado ajustando, a una variedad de requerimientos, esta tipología arquitectónica. A continuación, veremos cómo esto se hizo evidente en diferentes ciudades del país.
LA AMPLIACIÓN DE EL ALGODONAL EN CARACAS:
UN SANATORIO PARA LOS NIÑOS, 1945
El sanatorio antituberculoso El Algodonal (1934) fue el primer centro asistencial planificado por el Estado venezolano para la atención de la tuberculosis. Su construcción respondió al interés del, por aquel entonces, presidente Juan Vicente Gómez. A pesar de las críticas a las políticas dictatoriales de aquel gobierno, las primeras iniciativas para que la construcción de edificios asistenciales se realizara, de manera articulada con el desarrollo urbano y obras civiles, fueron gomecistas. Tanto la creación de leyes, reglamentos e instituciones fue coordinada para mejorar la higiene y la salud pública.
Este proceso de coordinación mantuvo continuidad después de la muerte de Gómez. Desde diciembre de 1935, la asistencia social formó parte de los programas de los gobiernos de Eleazar López Contreras (1935-1941) hasta el de Marcos Pérez Jiménez (1952-1958), teniendo como criterio común demostrar la fuerza que alcanzó el Estado a partir de las prácticas modernas de organización. En todas ellas hubo una clara urgencia de mejorar la capacidad productiva del país con la aplicación de programas apoyados en acciones específicas para cada sector.
Por lo tanto, la ocupación del terreno restante de El Algodonal se inició como parte de estas políticas gubernamentales; además, desde 1945, el MSAS progresivamente emprendió su ampliación y mejoramiento, así como también fue transfiriendo la función y el papel de un “exclusivo” arquitecto como intelectual proyectista de las edificaciones (como el caso del arquitecto Carlos Guinand y el primer edificio de El Algodonal: el Sanatorio Simón Bolívar) a las dependencias del MSAS y del MOP. Ambos ministerios contaban con personal capacitado para realizar los proyectos y cumplir con los programas y planes propuestos.
Desde que la Junta Revolucionaria de Gobierno aumentó el presupuesto, especialmente para la prevención, saneamiento ambiental y tratamientos médicos-asistenciales con el Programa de vacunación de la B. C. G. en los escolares, se promovió la construcción del Sanatorio Antituberculoso Infantil en 1945, años más tarde llamado Luisa Cáceres de Arismendi, con el cual se complementó el funcionamiento de El Algodonal. Así se alcanzó el objetivo de atender a la población infantil afectada por la tuberculosis. El programa de este sanatorio infantil debía tener una capacidad de ciento veinte camas (finalmente proyectado para doscientas camas) destinadas a pacientes entre cero y catorce años, separados por grupos y por sexo, con secciones para enfermos extrapulmonares, secciones de aislamiento y de cuarentena.
El proyecto estuvo a cargo del arquitecto Fernando Salvador en la recién creada Sección de Arquitectura Sanitaria del MSAS. Su experiencia en el diseño de edificaciones asistenciales fue una de las razones del cambio de tipología de pabellones que venía utilizándose en El Algodonal. Por lo tanto, en este edificio, el propio Salvador refirió: “esta subdivisión de enfermos es lo que ha hecho difícil el proyectar este Sanatorio, y durante estos trabajos se ha estado en continuo contacto con el Dr. Baldó4 para acertar lo más posible en la solución del problema” (Salvador, 1946, p. 71).
Entre los trabajos que realizó como arquitecto del MSAS y a lo largo de su carrera, está la definición de criterios de diseño para las edificaciones asistenciales:
Los modernos arquitectos sanitarios tienden ahora a lo que se llama “semi-bloque” … los servicios están concentrados y a ser posible centralizados, las distribuciones estudiadas de manera que el personal recorra las menores distancias, dentro de su cometido, núcleo de servicios generales … cada uno con su vida propia, pero abasteciéndose o dependiendo, lo mejor posible, de los otros servicios generales o centralizados. Naturalmente que hay que pensar qué tipo conviene en Venezuela … aquí se puede vivir casi al aire libre. Pero también es verdad que el nuevo tipo de “semi-bloque” tiene tantas ventajas que es muy conveniente adoptarlo y adaptarlo. (Salvador, 1940, p. 365)
El proyecto del Sanatorio Antituberculoso Infantil respondió a este tipo de semibloque. Por una parte, fueron ubicados los grupos de enfermos en diferentes pisos, así como se logró la distribución de acuerdo al nivel de gravedad de la enfermedad entre los pisos inferiores y superiores. Por otra parte, el proyecto fue adaptado a las dimensiones del terreno que
no es grande, lo suficientemente grande, para que nos hubiere dejado pensar en un edificio por pabellones o de poca altura … aunque nuestra predilección está orientada siempre hacia los edificios de bloque, recogidos sobre sí mismos, y con servicios sencillos, con circulaciones verticales, centralizadas, y con recorridos horizontales muy cortos. (Salvador, 1946, pp. 71-72)
El sanatorio para los niños se plantó en el valle cuya fachada principal está orientada en sentido sur-este. El criterio para ello fue la adaptación a la accidentada topografía y “para que el edificio presentase un mejor aspecto de simetría y de completo desarrollo de sus pisos” (Salvador, 1946, p. 72). En los cinco pisos, cuatro de enfermos y uno médico-administrativo, se organizaron las habitaciones cercanas al sur con entradas de aire por el lado norte. El trazado del edificio en dos piezas que forman una T, referida por Salvador (1946) como bien conocida de la arquitectura sanitaria moderna, y que son articuladas por balcones en esquina semicurvados y en cuya intersección se encuentra un núcleo de servicios generales. Las habitaciones se ubicaron en la parte más corta de la T y en el resto los servicios. Los de menor uso se alejaban del grupo de habitaciones (veáse la Figura 1).

El planteamiento arquitectónico de Salvador consideró galerías exteriores como recursos espaciales para las visitas de la familia y para el aislamiento, pero, al mismo tiempo, por razones constructivas. En las fachadas se hizo patente el estilo internacional: la composición a partir de ventanas, antepechos y cornisas delineadas por molduras sencillas de líneas rectas, superficies lisas en los muros, cubierta plana y la disposición ordenada de vanos de ventanas junto con el contraste de llenos y vacíos (véanse las figuras 2 y 3).


El éxito de esta primera experiencia en el uso del semibloque influyó en que el mismo fuera utilizado en otros edificios. Esta forma de organización mantuvo correspondencia con uno de los momentos más importantes del proceso de modernización en la arquitectura venezolana, en tanto la acelerada urbanización de las principales capitales y las concentraciones urbanas, deterioraron los niveles de vida de la población, lo que sirvió para solventar de manera planificada y eficiente la necesidad de más servicios médicos.
MARACAIBO: UN SANATORIO ANTITUBERCULOSO
PARA LA CIUDAD PETROLERA, 1942
La ciudad de Maracaibo ha sido una de las capitales más importantes de Venezuela, especialmente, por su activa participación en el desarrollo económico como región de exploración y explotación de los recursos petroleros venezolanos. Las inversiones en la infraestructura urbana fueron significativas en la primera mitad del siglo xx, sobre todo las realizadas por empresas norteamericanas e inglesas que bajo la figura de concesión explotaban el preciado recurso natural.
La riqueza, producto de la explotación petrolera, fue uno de los principales atractivos para que la ciudad fuera ocupada por fuertes corrientes migratorias provenientes de los campos; por lo tanto, se formó una heterogénea sociedad que a finales de los años treinta contaba con una población de 345 667 habitantes, de los cuales 3 000 morían al año a causa de la tuberculosis (Wannoni, 1946, p. 12). El acelerado crecimiento de la ciudad fue solventado urbanísticamente con la ubicación de nuevas edificaciones escolares, hospitalarias, administrativas y recreativas que fueron incorporadas en la extensión de la trama urbana existente.
Durante la gestión del presidente Isaías Medina Angarita (1941-1945) se dio inicio a la proyección del Sanatorio Antituberculoso de Maracaibo, inaugurado finalmente durante el gobierno de Rómulo Gallegos (1948). El edificio contaría con 12 508 metros cuadrados de construcción. El proyecto y la construcción fue un trabajo conjunto y coordinado entre el Estado, las asociaciones y las ligas antituberculosas, las cuales “jugaron un papel extraordinario, pues incorporaron en forma organizada hacia el objetivo de la consecución de camas a la colectividad e interesó, en donde quiera que fuera el caso, a los Ejecutivos Estatales” (Archila, 1956, pp. 333-334).
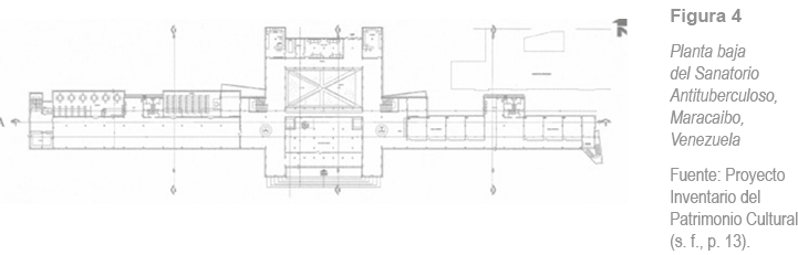
La División de Ingeniería Sanitaria del MSAS fue la encargada de realizar el proyecto a través del arquitecto Fernando Salvador, quien para ese momento era el director de la sección de arquitectura. El edificio fue emplazado en el suroeste de la ciudad, al margen derecho de la carretera que comunica a Maracaibo con Perijá, en una zona considerada extraurbana, en un terreno rodeado de abundante vegetación y con vistas al lago de Maracaibo; por lo tanto, reunió las condiciones necesarias para los tratamientos ya ensayados en los enfermos de tuberculosis.
Durante la ejecución del proyecto se respetó el Programa de Necesidades realizado por los doctores José Ignacio Baldó y Pedro Iturbe, el cual fue
facilitado por la División de Tisiología, el número total de enfermos que debían ser albergados en este Sanatorio sería de 300. De ellos, los de formas curables que se sometan a tratamientos quirúrgicos será de 10 % del total (30); los de formas curables que se sometan a curas de reposo, el 40 % (120); los de formas incurables, con fines solo de aislamiento, el 40 % (120); y, por fin, el 10 % (30) serán niños de ambos sexos, de 4 hasta 11 años de edad. (Salvador, 1946, p. 25)
La ocupación del terreno se realizó progresivamente: un primer edificio iniciado en 1942 y culminado en 1948; un segundo edificio para residencia de enfermeras, en 1951; y, posteriormente, el Departamento de Terapia Ocupacional, en 1953.
El primer edificio fue la sede del Sanatorio Antituberculoso, proyectado estrictamente para cumplir con la función de hospitalización de los enfermos incluidos en el programa. La separación de adultos y niños por sexo y por niveles de la enfermedad fue el criterio estudiado por Salvador: “Tratándose de esta enfermedad, es absolutamente necesario conseguir una separación total de sexos, es decir, hombres y mujeres no deben verse” (Salvador, 1946, p. 25). Adicionalmente, había definido en algunos de sus estudios que los servicios se ubicarían de manera centralizada con el fin de minimizar recorridos y que fueran accesibles a los pacientes de ambos sexos.
De acuerdo a la experiencia previa en sanatorios de este tipo, resultó novedoso el esquema propuesto en tanto se configuró como una masa larga y estrecha contentiva de todas las actividades. La diferenciación de las actividades en pabellones independientes fue evaluada, por el mismo Salvador, como equivocada por la dispersión de edificios y la longitud de circulaciones producto de su trazado; por ello, utilizó, nuevamente, el sistema denominado semibloque, con el cual garantizó la concentración y centralización de servicios, núcleos de servicios generales, menores desplazamientos y ventajas en la distribución de los enfermos, fácilmente ampliable si fuera el caso.
La solución arquitectónica para trescientas camas se desarrolló en cuatro pisos, de manera simétrica, ordenada a partir de un componente central con los servicios médicos y administrativos. A cada lado se despliegan dos salas de habitaciones de igual tamaño y capacidad (véanse las figuras 4 y 5).


El proyecto en Maracaibo atiende todo lo referente a la idea teórica publicada en la “XII Conferencia Sanitaria Panamericana” de 1946, cuya prioridad fue crear condiciones favorables para los enfermos; por lo tanto, la distribución y el ordenamiento de las habitaciones para hospitalización en las plantas superiores definió, posteriormente, la planta baja. Además, otra prioridad fue separar funcionalmente las actividades administrativas de las de hospitalización y del personal médico y de enfermeras, al tiempo de independizar las salas de operaciones del resto de espacios. Todo ello, con el fin de no cruzar circulaciones ni actividades no compatibles.
Los criterios para proyectar, de Salvador, estaban definidos claramente: el hospital debía ser sencillo, modesto, elástico, económico en la construcción, con cortos desplazamientos y, especialmente, respetar las condiciones climáticas particulares del país. Por ello, se plantearon pisos en donde solo se hospitalizarían pacientes con necesidad de cirugía junto a los quirófanos, y plantas tipo con habitaciones que se clasificarían por sexo y clase de enfermo (Salvador, 1946, pp. 26-28).
La organización de las plantas de este sanatorio respondió a las condiciones climáticas de la ciudad. La fuerte incidencia de los rayos solares en el sector fue una de las razones por las que no se utilizaron terrazas junto a las habitaciones para la toma de sol de los pacientes y para ampliar la anchura de los pasillos centrales de distribución con el fin de convertirlos en salas de estar. Salvador lo explica de la siguiente manera: “Hemos suprimido las galerías de cura por considerarlas casi inútiles en este clima de sol ardiente. La verticalidad de los rayos solares nos permite considerar que los dormitorios, con su fachada rígidamente al Sur, están en sombra” (Salvador, 1946, p. 31).
El sistema de ventilación se planificó de manera tal que los vientos tuvieran libre circulación en sentido norte-sur, recurriendo a aberturas longitudinales altas y por un grupo de ventanas dispuestas de extremo a extremo en toda la fachada sur (véase la Figura 6).

La propuesta estilística de Salvador muestra la asimilación del estilo internacional articulado con un vocabulario de arquitectura nacional, posiblemente para crear una memoria colectiva con una obra pública emblemática idealizando los espacios comunes: los servicios médicos y administrativos, los cuales fueron diferenciados del resto por una hilera de arcadas neocoloniales. Finalmente, en este edificio se siguió un programa que consideró la funcionalidad, la simplicidad volumétrica y decorativa.
Las salas de habitaciones se disponen en una geometría sencilla, de paredes lisas, sin ningún tipo de ornamentación. Se respetan los métodos de producción, las limitaciones de los materiales y de las necesidades programáticas; en este caso, el interés se enfocó en los tratamientos médicos y en las necesidades de ventilación e iluminación naturales de los dormitorios de hospitalización.
La cubierta del edificio totalmente plana, oculta en una pantalla corrida que se monta sobre la última hilera de ventanas, complementa las intenciones de otorgar al edificio un lenguaje moderno en tanto representación progresista del Estado venezolano constructor de obras públicas.
EL ORIENTE DEL PAÍS ES ATENDIDO, UN SANATORIO ANTITUBERCULOSO PARA CUMANÁ, 1944
La ciudad de Cumaná, al oriente del país, reconstruida luego del terremoto de 1929, tuvo un importante desarrollo portuario y comercial. Fue seleccionada para la construcción de un sanatorio antituberculoso por las bondades climáticas de la región y con el objeto de cubrir parte de la zona oriental de Venezuela. Mediante Decreto Ejecutivo del 5 de julio de 1944, se aprobó la elaboración del proyecto, el cual fue uno de los más “completos, estudiados y elaborados” por la Sección de Arquitectura Sanitaria del MSAS de ese mismo año (Ministerio de Sanidad y Asistencia Social [MSAS], 1945, p. 93).
Entre julio y agosto de ese año, el MOP y el MSAS gestionaron todo lo relacionado con este sanatorio, la premura en la construcción de edificios asistenciales se atendió a través de esta división
desarrollando sus actividades en el establecimiento de normas de construcción, materiales empleados en ellas y ejecución de anteproyectos y proyectos tanto para el Gobierno Federal, como para los Estados y Municipalidades … Merece señalarse los anteproyectos elaborados para los edificios de las nuevas Colonias para Leprosos, el Sanatorio Antituberculoso de Cumaná. (MSAS, 1945, p. VII)
Con el programa realizado previamente por los médicos del MSAS, se estableció la propuesta arquitectónica, además de apoyarse en la experiencia del Antituberculoso de Maracaibo de 1942. La autoría del anteproyecto del Sanatorio de Cumaná, nuevamente, le correspondió al arquitecto Fernando Salvador, quien como jefe de la Sección de Arquitectura Sanitaria participó directamente en su ejecución.
Entre los estudios de Salvador, previos a la elaboración del anteproyecto, estaba el del Proyecto de hospital para cien camas, mencionado previamente. Por lo tanto, algunos de los criterios y formas de organización arquitectónica registrados en este artículo fueron utilizados en Cumaná, de tal manera que el Sanatorio Antituberculoso de Oriente se caracterizó por
disponer el edificio de la mejor manera posible para defenderlo del ambiente cálido exterior: una disposición muy abierta, con galerías que lo proteja del sol y que atenúen sus efectos … una gran cantidad de dependencias con ventanas a dos orientaciones, Norte y Sur … sencillo y modesto ... fácilmente ampliable, con solo la prolongación de las alas, y dentro de los límites de capacidad de los servicios generales, como cocinas, salas de operaciones, lavaderos, laboratorios, consultas, etcétera. (Salvador, 1940, pp. 364-366)
Una vez culminado el anteproyecto, el MOP elaboró el proyecto y, de acuerdo con los datos de la Memoria y Cuenta del MOP de 1945 y de las descripciones del arquitecto Salvador en la “XII Conferencia Sanitaria Panamericana” en 1946, el anteproyecto fue respetado para la construcción del edificio. Los cambios fueron de menor alcance. El planteamiento puede considerarse de vanguardia por romper con los esquemas previos de sanatorios formados por varios pabellones de servicios y de hospitalización extendidos en la superficie de terreno: “Tuvimos muy en cuenta los defectos que encontrábamos al de El Algodonal o Simón Bolívar; nos parecía equivocada la dispersión de servicios y la longitud de circulaciones, producto de su trazado” (Salvador, 1946, p. 64), y adoptó un modelo de edificio para ser emplazado en otras regiones del país, en consonancia con los procedimientos modernos de la construcción, en tanto estandarizó los componentes constructivos y la formulación de una imagen progresista del Estado a partir del lenguaje de la arquitectura moderna con algunos rasgos nacionales.
Entre las características de la arquitectura de Salvador estaba la respuesta racional a lo que, desde 1930, había sido estudiado por Roger Poulain y publicado en 1931 en el libro Hôpitaux Sanatoria, en el cual el principio fundamental era la condición de la habitación para el enfermo. Estas debieron ubicarse con su fachada principal hacia el sur, con vista a los jardines, y el resto de servicios se ubicarían por detrás del cuerpo principal para evitar los ruidos y la agitación de la cocina, del alojamiento del personal, de los servicios generales, entre otros.
En una superficie de terreno de 57 hectáreas, seleccionada por una comisión de representantes del MOP y el MSAS, se emplazó el edificio de 10 000 metros cuadrados de construcción, con su cara más larga en sentido este-oeste, orientada la fachada principal hacia el sur, de similar forma al criterio de Poulain. El Sanatorio Antituberculoso de Cumaná se organizó en una planta estilizada que garantizó la entrada de luz en cada uno de los espacios, de ordenación academicista, simétrica, separados los pacientes por sexo. Los elementos arquitectónicos principales fueron los pasillos y los patios rodeándolos junto con las habitaciones. En el cuerpo central de dos pisos5 funciona como único acceso al sanatorio:
Esa única entrada central para todas las actividades del sanatorio tiene sus ventajas innegables: a ciertas horas puede quedar monopolizado el gran hall para ser usado solamente por los enfermos internos, y pueden emplearse las dos puertas laterales en ciertos momentos, por ejemplo, la espera a las horas de visita o la salida de estas visitas. (Salvador, 1946, p. 68)
En este cuerpo se encuentran los servicios comunes: en el primer piso están el hall, la información, los archivos, el núcleo de circulación, la sala de espera, los cuartos de médicos, la sala de reuniones, la administración y la biblioteca; en el segundo piso, el hall, los dormitorios para alojar a veintiocho enfermeras y un salón. Detrás de este cuerpo, y separado por un generoso patio, se encuentran la sección de consultas (neumotórax, rayos X, etcétera), la cocina, el comedor de médicos y auxiliares, lavandería y almacén (véase la Figura 7).

A cada lado del cuerpo central se extienden, como largos brazos, las habitaciones. Con esta organización está claro el interés por cuidar el funcionamiento y respetar el programa descrito por Salvador como
un gran sanatorio, de unas 300 camas, que se considera como muy grande para esta clase de construcciones; que era mixto de hombres y mujeres, y, por tanto, había que tener muy en cuenta una buena separación de sexos; que entendíamos que en el trópico se habían hecho pocos modelos de sanatorios, racionalmente pensados, y que, por tanto, y en nuestra creencia de que era difícil copiar tipos de distintos climas, había que introducir, no ya con respecto a lo que se hace en países fríos, sino a los edificios ya en funcionamiento en nuestro país. (Salvador, 1946, p. 63)
Cada brazo cuenta con bloques de habitaciones separados por pasillos, cada bloque respondió a la clasificación de los pacientes adultos y niños de ambos sexos y de los niveles de contagio y peligrosidad de la enfermedad. Por lo tanto, existen tres módulos de habitaciones en el primer brazo y dos en el segundo, todos con servicios centralizados dispuestos a cada lado del cuerpo central.
Con capacidad para treinta y dos camas, se ubicaron hacia las habitaciones de la fachada principal la hospitalización de los niños separados por sexo (dieciséis camas para cada uno). Siguiendo hacia los extremos, se ubicó el área de hospitalización especial con habitaciones de una cama para enfermos graves y susceptibles a contagiar a otros; por lo tanto, los pasillos de circulación están aislados del resto del edificio con unidades de atención de enfermeras, faena, médicos y aseo exclusivas para este grupo de enfermos y que bordean uno de los patios internos que funcionan, al mismo tiempo, de aislantes del resto de módulos de hospitalización. Esta sección del sanatorio fue valorada por Salvador como “el verdadero artificio, relativamente nuevo … colocada entre las grandes secciones, pero al mismo tiempo aislada de toda circulación, con una atención doble de las dos Unidades de Enfermeras contiguas” (Salvador, 1946, p. 67).
En los extremos de los brazos se ubicaron las habitaciones con una capacidad de cuarenta y ocho camas para enfermos de reposo e incurables. Junto a ellas se encuentran los cuartos de aseo, las galerías de cura y de estancia. Todas las habitaciones están rodeadas por una galería de doble función que “servirá para estar en ella, como circulación y para suprimir los rayos del sol directo” (Salvador, 1946, p. 65). Entre los brazos y enfrentados a los patios, se dispuso de dos bloques con los comedores, los almacenes y el área de oficios, el uso de dos módulos idénticos garantizó el servicio a cada uno de los bloques de habitaciones de manera equidistante.
Entre los estudios del arquitecto Salvador (1946) estaba “conseguir un tipo de dormitorio con una buena ventilación y con una colocación de camas que permitiese el menor desarrollo posible de la fachada”. Fue así como se ubicaron 262 enfermos divididos exactamente en partes iguales, los dormitorios propuestos fueron de
doce camas, subdivididos por medio de tabiques bajos, en cubículos de cuatro camas, colocadas de costado. Esta subdivisión por medio de tabiques nos da no solo más pared donde apoyar las cabeceras de las camas, sino una mayor independencia de los enfermos. (Salvador, 1946, p. 65)
La organización del edificio en forma simétrica respondió a las funciones de un sanatorio; tener en el punto central los servicios ofreció recorridos equidistantes para las enfermeras, el personal de servicio y para la repartición de alimentos; tener a cada lado dos brazos de hospitalización separados todos con vista al entorno natural inmediato permitió la separación de espacios por sexo y de igual número de mujeres y hombres.
En las fachadas a las que “arquitectónicamente no puede quitarse adornos superfluos ni elementos decorativos porque no los tiene” (Salvador, 1940, p. 376), fueron utilizadas ventanas dispuestas rítmicamente sobre una moldura corrida lineal y en una superficie lisa. La forma como se escalonó el brazo frontal de las habitaciones se muestra en la fachada principal compuesta en tres cubos unidos, los laterales sobresalen del central funcionando como marco de la entrada principal con la particularidad de utilizar una cubierta inclinada en un intento por reconciliar el lenguaje arquitectónico internacional y nacional al mismo tiempo. Tal reconciliación fue reforzada con el uso recurrente del patio, un elemento conocido en el país y sobre el cual converge la vida interior, en este caso el de los enfermos y el del grupo de profesionales dispuestos para su atención.
Los patios, en este sanatorio, parecen funcionar como prolongación de la vida familiar dejada por los pacientes al permanecer por largo tiempo internos. La ubicación de los mismos, a lo largo del edificio deliberadamente, frente a los comedores y el bloque de habitaciones de los enfermos más críticos, separados por pasillos delimitados por galerías de columnas, recuerda el tradicional esquema de la vivienda colonial en Venezuela. Así los días de hospitalización podrían diluirse en un ambiente agradable, lo más cercano posible en composición y funcionamiento a la casa.
El planteamiento de los patios tiene una lectura diferente a las terrazas utilizadas en otros sanatorios. Por ejemplo, la terraza tiene un carácter privado, allí el enfermo tomaría el sol de acuerdo a los tratamientos sin perder la privacidad e intimidad a diferencia de los patios en este Sanatorio en Cumaná, con los cuales “a título de ensayo hicimos propuestas tan revolucionarias como la supresión de las Galerías de Curas y de ciertos elementos en las ventanas y tratamos por todos los medios conseguir una ventilación natural que contrarrestase el calor del exterior” (Salvador, 1946, p. 63). Fue de esta manera como los patios se convirtieron en lugares públicos, con doble función: de solario y de elemento que garantizó la ventilación de los espacios en torno a ellos.
Las fachadas laterales muestran la vertiente de la cubierta a dos aguas. La disposición de las mismas es netamente funcional, el arquitecto Salvador explicó que la
zona de armario central se debe cubrir, a partir de 1,80 metros, con un cielo raso o techo falso con el fin de constituir una especie de pasillo amplio para llevar por él tuberías, y que nos puede servir, incluso, como ventilación de los armarios y de los propios cuartos, ventilación que podría forzarse por medio de aparatos eléctricos. Por ello, hemos terminado las fachadas laterales en forma de hastiales, donde pueden colocarse aberturas para esa ventilación de cuartos, armarios y armaduras del tejado. (Salvador, 1946, p. 65)
Con el Sanatorio de Oriente y de Maracaibo, se inició una nueva tipología edilicia para la atención de la tuberculosis en Venezuela: recurrir a un modelo que pudo ser emplazado en dos ciudades diferentes y mostrar una ruptura con los primeros ensayos arquitectónicos de hospitales especiales sin desperdiciar en la funcionalidad de edificio ni en el objetivo de construirse con esquemas modernos de organización que impuso un modelo arquitectónico optimista para el desarrollo social en consonancia con la modernización.
EL SANATORIO ANTITUBERCULOSO TIPO B
PARA DOS CIUDADES: VALENCIA, 1948, Y CARACAS, 1953
La actividad de Fernando Salvador en las instancias del MSAS quedó registrada en las memorias del Ministerio, así como en sus propias publicaciones. Con ello se ratificó la autoría de los proyectos, así lo explicó Martín Frechilla (1998) cuando afirmó que en las Memorias del MSAS de 1941 y años siguientes, además de los informes que enumeran las obras construidas en el país con los proyectos de la división, van apareciendo otros anteproyectos: Hospitales tipos A, B y C standards o sanatorios tipo 1-F, B y B-1, que indican una sistemática adecuación, por la vía tipológica, a la variedad de requerimientos de las edificaciones sanitarias y al rango de las poblaciones.
El proyecto de un sanatorio antituberculoso tipo B se construyó en 1948 dentro de la Colonia Psiquiátrica de Bárbula en la ciudad de Valencia y, años después, en 1953, en el predio asistencial mencionado anteriormente, El Algodonal, justo al margen derecho de la carretera Caracas-Antímano.
En un edificio sencillo, con un cuerpo principal de tres pisos y el resto de dos, se alojan ciento setenta camas para enfermos crónicos. Las características de la arquitectura reflejan los estudios del arquitecto Salvador para centros asistenciales en Venezuela, adecuado a las condiciones climáticas, de fácil adaptación a diferentes condiciones de terreno y de organización centralizada en las actividades administrativas y de servicio con relación a las de hospitalización. Condiciones descritas previamente en sus publicaciones ya mencionadas.
La mejor distribución para las diversas actividades, propuesta por el arquitecto, fue en una planta simétrica sobre el eje horizontal, en forma de peine. De esta manera, en cada parte del edificio se podrían organizar los pacientes por sexo (lado izquierdo destinado a las mujeres y el derecho a los hombres) y grados de avance de la enfermedad (véase la Figura 8). Fue así como se ubicaron las secciones de administración, cirugía, laboratorios, hospitalización —dividida en cuatro unidades para hombres, cuatro unidades para mujeres y niños de ambos sexos—, servicios generales y viviendas intrahospitalarias para el personal (MOP, 1953, p. 137).

Se ordenaron en pabellones la sección de hospitalización, internamente comunicados por un largo pasillo central que toma la forma de U, y se logró crear entre ellos patios exteriores que facilitan la iluminación y ventilación de las habitaciones.
Esta propuesta arquitectónica resultó ser particular por la ubicación de los espacios de servicios (comedores) de manera independiente en cada uno de los pisos. Tanto los comedores como los núcleos de circulación se separan del cuerpo central y de la sección de hospitalización (habitaciones) por medio de un patio interno. Fue así como se cumplieron los criterios de organización de actividades centralizadas propuesto por Salvador, al ubicar las secciones de administración, de laboratorios y de servicios generales en el cuerpo central, separado del resto de actividades.
Adicionalmente, el arquitecto, consciente del papel de los tratamientos para la curación de las enfermedades, acondicionó terrazas especiales a lo largo de todos los pasillos en cualquiera de sus caras, con lo cual garantizó las órdenes médicas para los enfermos de tomar sol. Los tamaños de las terrazas estaban acordes con el número de pacientes, fue así como las grandes estaban dispuestas frente a las habitaciones de seis camas y las pequeñas frente a las habitaciones individuales.
En este sanatorio tipo B se conjugaron los emblemas de la función administrativa, curativa y educativa de la medicina con el idealizado uso de elementos de la casa colonial venezolana. El edificio se muestra deliberadamente como un objeto arquitectónico del ámbito nacional a través del uso de cuatro patios externos, uno interno, el uso de cubiertas inclinadas a cuatro aguas con teja y galerías techadas delimitadas por hileras de columnas. Sin embargo, otros elementos se fusionan con este “nacionalismo”, como las terrazas que desmaterializan la esquina, a través de la proyección del techo en planos rectangulares, un moderno recurso wrightiano de control ambiental donde los pacientes hospitalizados disfrutaban de los beneficios del aire puro y del sol simplemente traspasando la puerta de la habitación (véase la Figura 9).

El resto del edificio se encuentra despojado de ornamento, en una superficie lo suficientemente porosa, ordenada y regular como para cumplir con la adecuada función de los espacios. Contiene ventanas estandarizadas, apoyadas sobre delgadas molduras y dispuestas entre columnas redondas que parecen ser absorbidas por los muros de apariencia moderna. La unión de elementos arquitectónicos fue una expresión propia de la arquitectura de los años cuarenta en Venezuela: ensamblar componentes tradicionalistas con otros de producción industrializada, en una suerte de demostrar que la producción de edificaciones públicas estaba en correspondencia con las ideas del Estado de construir una sociedad industrial sin perder de vista la historia local.
Con el lenguaje arquitectónico se procuró el rescate de lo nacional a tono con las políticas del Estado en materia de salud y se utilizó como instrumento pedagógico desde el momento en que la población identificó y dispuso de edificios tipo, proyectados inicialmente para su uso en dos de las ciudades más importantes del país: Caracas y Valencia.
EN CONCLUSIÓN
El paisaje urbano en Venezuela cuenta con obras públicas que describen la intencionalidad del Estado por garantizar la salud en los habitantes, y como cabeza visible de este proceso, durante la primera mitad del siglo xx, encontramos al arquitecto español Fernando Salvador, quien encontró, en el proceso de adaptación al país que lo recibió desde 1938, condiciones humanas y climáticas particulares que concilió con la arquitectura. Sin desperdicio, no solo adecuó las propuestas a términos funcionales y de organización, sino que supo acondicionar el lenguaje arquitectónico nacional con los elementos modernos del momento.
Salvador pudo integrarse a la institucionalización del Estado a través de las diferentes instancias del MSAS (División de Ingeniería Sanitaria, Dirección de Edificaciones Médico-Asistenciales) y del MOP (Comisión Interministerial), coordinó y desarrolló proyectos de arquitectura para el Estado en consonancia con los objetivos propuestos en los planes y programas, especialmente, los ideados para la atención de la salud.
El arquitecto Fernando Salvador asumió un compromiso profesional con el ensayo de modernas tipologías arquitectónicas hospitalarias. Profesionalmente, garantizó la transformación de la infraestructura asistencial en tanto evolución de los esquemas de organización de las edificaciones para la atención de enfermedades especiales. Los viejos edificios adecuados para la atención hospitalaria fueron sustituidos por modernas infraestructuras proyectadas y construidas especialmente para ello. Al mismo tiempo, se reveló con la práctica proyectual de los hospitales especiales que la arquitectura puede entenderse como un acto creativo colectivo, es decir, en él pudieron participar diferentes actores de la vida nacional. Así, el arquitecto proyectó a partir de un trabajo conjunto entre médicos e ingenieros del MSAS y del MOP.
Con la formulación de estos proyectos, a través del MOP y del MSAS, el Estado construyó una idea dominante de sus funciones en la sociedad. Este tipo de sanatorios, calificado como especial, por atender un tipo de enfermedad específica, funcionó como un instrumento para ordenar y organizar a la creciente población. Proponer proyectos factibles de emplazar en diferentes ciudades garantizó la rapidez en la construcción y en la ocupación del territorio por parte del Estado. Así se cumplieron sus objetivos de poder y control sobre una sociedad favorecida con modernas políticas reflejadas, claramente, en la esperanza de vida y en la posibilidad de la migración interna de los venezolanos.
Arcila, E. (1974). Centenario del Ministerio de Obras Públicas. Influencia de este ministerio en el desarrollo. Ministerio de Obras Públicas.
Archila, R. (1956). Historia de la sanidad en Venezuela (t. 2). Imprenta Nacional.
Archivo Fotográfico Shell. (1996). Historia y cotidianidad, 1950-1964 [Aplicación multimedia en CD-ROM]. Universidad Católica Andrés Bello.
Bédarida, F. (1998). Definición, método y práctica de la historia del tiempo presente. Cuadernos de Historia Contemporánea, (20), 19-27.
Cilento, A., López, M., Marcano, L., & Martín, J. (1999). El dispositivo de obras públicas en Venezuela (1874-1976). En Modelos para desarmar. Instituciones y disciplinas para una historia de la ciencia y la tecnología en Venezuela (pp. 49-125). Universidad Central de Venezuela, Consejo de Desarrollo Científico y Humanístico; Colección Estudios.
Fato, A. (2021). Arquitectura y salud en Venezuela. Hospitales para el aislamiento a mediados del siglo XX. Editorial Académica Española.
Martín, J. (1994). Planes, planos y proyectos para Venezuela: 1908-1958. Universidad Central de Venezuela, Consejo de Desarrollo Científico y Humanístico; Fondo Editorial Acta Científica Venezolana.
Martín, J. (1998). Los olvidados. Fernando Salvador y la arquitectura sanitaria en Venezuela. Tecnología y Construcción, 14(1), 21-34.
Ministerio de Obras Públicas. (1941). Plan de obras públicas nacionales para el periodo presidencial 1941 a 1946.
Ministerio de Obras Públicas. (1945). Memoria y cuenta. Imprenta Nacional.
Ministerio de Obras Públicas. (1953). Memoria gráfica. Imprenta Nacional.
Ministerio de Sanidad y Asistencia Social. (1945). Memoria y cuenta. Imprenta Nacional.
Poulain, R. (1931). Hôpitaux sanatoria. Vincent Fréal et Cie.
Proyecto Inventario del Patrimonio Cultural. (s. f.). Edificaciones, 1-17.
Salvador, F. (1940). Proyecto de hospital para cien camas. Revista de Sanidad y Asistencia Social, 5(3), 363-376.
Salvador, F. (1946). Trabajos sobre edificios sanitarios de la División de Ingeniería Sanitaria. Grafolit; Serie Cuadernos Amarillos.
Wannoni, L. (1946). Contribución al estudio del problema de saneamiento en Venezuela. Grafolit; Serie Cuadernos Amarillos.
1 Véase en Bédarida (1998).
2 Véase en Cilento et al. (1999) y Ministerio de Obras Públicas (1941).
3 Véase en Martín (1994, pp 75-84).
4 José Ignacio Baldó Soulés (1898-1976), venezolano nacido en San Cristóbal, estado de Táchira, fue un neumólogo, doctor en Ciencias Médicas de la Escuela de Medicina de la Universidad Central de Venezuela (1920). Después de hacer estudios en Estados Unidos, Suiza, Hamburgo y Múnich, regresó a Venezuela en 1926. Se dedicó a planificar la lucha contra la tuberculosis y la lepra desde el ejercicio de la medicina privada y pública. Fue ministro de Agricultura y Cría (1933), elaboró los programas médicos para muchos antituberculosos y de medicina simplificada para las prácticas curativas del personal no médico en zonas apartadas y fronterizas. Desde 1933, estuvo como médico adjunto al servicio del Estado en la Dirección de Sanidad del Distrito Federal, en el servicio de B. C. G. Además, fue jefe de la División de Tuberculosis desde 1936, así como docente de la cátedra de Tisiología de la Universidad Central y presidente de la Sociedad de Tisiología.
5 La condición de ciudad sísmica de Cumaná fue una de las razones por la que el arquitecto Salvador utilizó un modelo de una planta, además de que el Estado promovió los proyectos de edificaciones asistenciales de carácter popular y económicas en su construcción.