CONVOCATORIA PERMANENTE
ARQUITECTURA RESIDENCIAL
LIMEÑA CONTEMPORÁNEA
Un análisis desde la perspectiva feminista
LIMA’S CONTEMPORARY RESIDENTIAL ARCHITECTURE
An analysis from the feminist perspective
ROMINA PEZZIA PROAÑO
Facultad de Arquitectura, Universidad Peruana
de Ciencias Aplicadas, Lima, Perú
0000-0002-5387-7311
Recibido: 13 de abril del 2022
Aprobado: 18 de enero del 2023
doi: https://doi.org/10.26439/limaq2023.n012.5850
El artículo cuestiona el diseño de las unidades de vivienda promovido por el sector inmobiliario en la ciudad de Lima durante la segunda década del s. xxi. Este estudio comparativo entre doce viviendas toma como punto de partida el concepto de casa sin género que fue planteado por Zaida Muxí, referente fundamental para reconocer —desde una perspectiva feminista— cómo la distribución y segregación espacial de una vivienda contribuye a delimitar jerarquías entre sus habitantes. Se examinan criterios de neutralidad y flexibilidad espacial, las características de los espacios de almacenamiento, así como las relaciones funcionales vinculadas por los espacios de conexión en el diseño de estas viviendas. Se concluye que existe un modelo de vivienda inmobiliario que se repite actualmente, por lo que se establece una serie de interrogantes en relación al diseño de este tipo de vivienda en búsqueda de una equidad en el habitar contemporáneo.
arquitectura, feminismo, habitar, inmobiliaria, Lima, vivienda
The article questions the design of the housing units promoted by the real estate sector in Lima during the second decade of the 21st century. This comparative study between twelve housing units takes as its starting point the concept of “house without gender” proposed by Zaida Muxí. It is a fundamental reference to recognize from a feminist perspective how the distribution and spatial segregation of a dwelling contributes to delimit hierarchies among its inhabitants. The study examines the criteria of neutrality and spatial flexibility, the characteristics of the storage spaces, and the functional relationships established by the connection spaces in the design of these dwellings. It concludes that there is a recurrent model of real estate housing and raises questions about the design of this type of housing in search of equity in contemporary living.
architecture, feminism, living, real estate, Lima, housing
Este es un artículo de acceso abierto, distribuido bajo los términos de la licencia Creative Commons Attribution 4.0 International (CC BY 4.0).
INTRODUCCIÓN. CUESTIONES DEL HABITAR
Ningún tipo de arquitectura ni es arbitraria ni tampoco inocente, más bien, al contrario, se conforma como un medio para legitimar, establecer y reproducir una determinada mirada, ideología, que vertebra cualquier estructura social o vital (García Cortés, 2006, p. 47).
La vivienda es el primer lugar que conocemos, es el primer lugar de socialización en el que aprendemos a cómo relacionarnos con los demás para, luego, salir al mundo (Bachelard, 2012). Es en ella donde se construyen los roles de género y donde aprendemos que existen jerarquías y responsabilidades distintas entre quienes la habitan (Muxí, 2018). Son los espacios que habitamos los que refuerzan esas jerarquías y relaciones. La arquitectura nos marca, guía nuestro habitar, nuestras acciones.
A partir del enunciado de García Cortés (2006), podríamos preguntarnos bajo qué pensamiento o mirada están organizadas las viviendas que habitamos hoy en día. Pareciera ser que el entorno arquitectónico que articula nuestra vida cotidiana es muy pocas veces cuestionado y los usuarios dan por sentado que así es como este debe ser. Sin embargo, la arquitectura permite ser leída y lleva inscrita en ella ideas de qué y quién es importante en cada edificación (Matrix, 1989).
Por ejemplo, las dimensiones de cada ambiente dentro de una vivienda ya nos dan una pista sobre qué espacios son más relevantes. Por esta razón, es fundamental hacernos esta pregunta, ya que todavía hay cuestiones del habitar y dinámicas cotidianas en nuestra sociedad que son cuestionables. Entre ellas, que la mayoría de las labores domésticas sean realizadas por mujeres o que aún en el diseño de las viviendas de clase media y alta peruanas aparezcan habitaciones destinadas al servicio. A pesar de que cada día la lucha por la igualdad de géneros enfocada al trabajo doméstico se hace más evidente y las tareas se tratan de compartir entre los miembros de familia o grupo de convivencia, aún es posible afirmar que los roles de género están perpetuados dentro del hogar peruano. Por lo tanto, podríamos preguntarnos si es que acaso la arquitectura que habitamos acentúa este tipo de relaciones. Cabe resaltar que la configuración espacial no es el origen del problema de género, pero, como expresa Martha Rosler, esta es el resultado o el síntoma de un sistema social y cultural específico (2017).
Actualmente, existe en el Perú una brecha de género en el uso del tiempo. Los datos sobre el tiempo empleado en las labores domésticas, es decir, sobre el trabajo no remunerado elaborado dentro del hogar —resultados de la I Encuesta Nacional de Uso del Tiempo (ENUT) 2010— muestran que las mujeres dedican 23 horas y 35 minutos semanales más de su tiempo a estas tareas a diferencia de los hombres1. Este contraste entre los tiempos de servicio hacia los demás miembros de la familia o el grupo de convivencia afecta, en definitiva, al tiempo productivo de las mujeres (48 %), lo que las deja en desventaja económica frente a los hombres que sí tienen la posibilidad de dedicar el 76 % de su tiempo a un trabajo remunerado (Freyre Valladolid & López Mendoza, 2011).
“La arquitectura no es ajena al sistema cultural en el que se gesta”, explica María Novas Ferradás (2021, p. 133). Esta afirmación nos lleva a preguntarnos a nosotras las arquitectas y arquitectos bajo qué valores estamos diseñando las viviendas que habitarán las futuras generaciones de nuestra ciudad y qué tipo de relaciones están propiciando estos espacios. La crítica feminista, en el ámbito de la arquitectura, busca la reconversión espacial y social para la disolución de la división del trabajo reproductivo y, con ello, la corresponsabilización de todos en el mantenimiento del hogar, tanto a nivel económico como en cuestiones de uso del tiempo (Novas Ferradás, 2021).
El presente artículo tiene como objetivo el análisis de la arquitectura residencial contemporánea, promovida por el sector inmobiliario en la ciudad de Lima, e invita a reflexionar sobre cómo las relaciones espaciales, consideradas habituales, propician relaciones no igualitarias entre sus habitantes. Para este estudio se han seleccionado doce unidades de vivienda dirigidas a la población de nivel socioeconómico A y B2. La selección de estos doce casos proviene de aquellas inmobiliarias que obtuvieron la certificación Best Place To Live (Castillo Dávila, 2020), en el año 2020, por contar con las mejores recomendaciones de sus clientes. Se entiende que la valoración de los clientes de las empresas inmobiliarias se ha centrado en la atención y los servicios ofrecidos en la transacción de compra y venta del inmueble, mas no en una valoración cualitativa y cuantitativa de los espacios. Se expresa esta aclaración, pues el objetivo de la investigación no se focaliza en juzgar la labor de las inmobiliarias, sino en el análisis formal y funcional de los espacios de la vivienda.
Esta comparación del diseño y de la distribución espacial de las viviendas evidencia que existen ciertos parámetros y patrones que se repiten en los doce casos. Se concluye que esta distribución espacial propicia relaciones jerarquizadas, por lo tanto, no igualitarias entre sus posibles habitantes, puesto que refuerzan la invisibilización de las labores domésticas. Estas cuestiones sobre las que se reflexionan en estas líneas buscan generar una nueva mirada hacia la arquitectura residencial tradicional que se diseña y habita en la ciudad de Lima. Es un detenernos para pensar en los espacios que nos han formado y siguen formándonos en la actualidad.
Al habitar una nueva vivienda de este tipo, los espacios que la conforman nos son impuestos, lo que quiere decir que ya están diseñados bajo ciertos parámetros. Como expresa Martí Peran, “la vivienda se ofrece con unos patrones ideológicos que dictan de antemano las formas de vida que pretenden arropar, sin la menor atención a las imperativas necesidades de nuevos modelos” (2009, p. 31). No se debe olvidar que la vivienda es también un producto más dentro de nuestra sociedad de consumo. Estas viviendas que se diseñan y construyen sin tener clientes verdaderos, para un “modelo” preestablecido de familia, como aquella con dos salarios y descendencia que puede permitirse pagar los costos de la externalización de los cuidados (Novas Ferradás, 2021), excluye y deja de lado otros posibles modos de habitar.
Montaner y Muxí (2016) plantean que “el modelo único de familia no existe y menos aún en nuestra sociedad contemporánea global” (p. 207). En el Perú, según una investigación de Datum Internacional, titulada “Nueva Dinámica en las Familias Peruanas” (Torrado, 2019), existen nueve tipos de familia y dos más que no han sido medidos a la fecha3. Uno de los mayores cambios que se han visto reflejados en los datos obtenidos es el aumento de las familias sin hijos, es decir, compuesta únicamente por adultos. Esta variedad en las formas de habitar contemporáneas es un punto de partida para repensar el diseño de las viviendas y que estas se puedan adaptar a estas distintas maneras u otras que surjan eventualmente.
Recordemos que las vivencias ocurridas en la casa de la infancia nos acompañarán a lo largo de nuestras vidas y en nuestros próximos hogares (Bachelard, 2012). Por lo que es válido recordar y hacer memoria sobre el diagrama del habitar de dicha vivienda y la comparación con el accionar dentro de la que habitamos en la actualidad, con el fin de reflexionar cómo con el tiempo algunos de los valores tradicionales con los que crecimos están siendo reevaluados. En palabras de Novas Ferradás (2020), “los cambios sociales intensificados en la última década y la expansión de los estudios de género aluden a la necesidad de la flexibilidad tipológica de la vivienda” (p. 190). Nos encontramos en un momento en que es necesario cuestionar los espacios que habitamos y buscar una redefinición del espacio doméstico para cohabitar en igualdad.
DESCRIPCIÓN DE LA PROBLEMÁTICA Y ESTADO DEL ARTE.
LA VIVIENDA DESDE UNA PERSPECTIVA FEMINISTA
No hay transformación que no comience con desazón ante la interrupción de lo que consideramos habitual o costumbre (Zafra, 2021, p. 24).
Es cierto que muchas veces no prestamos atención a la arquitectura que nos rodea, sobre todo en estos tiempos en el que la vida parece desarrollarse a través de las pantallas, y que la posibilidad de estar conectados nos permite desarrollar múltiples trabajos en cualquier lugar sin percatarnos de sus cualidades formales (Zafra, 2021). Sin embargo, la observación atenta a la arquitectura que nos rodea y que habitamos es fundamental, puesto que es esta la que condiciona ciertos comportamientos. Como explica Pallasmaa (2016), “la arquitectura es un dispositivo de mediación entre el cuerpo y los otros” (p. 48) y a través de ella aprendemos a relacionarnos con los demás. Asimismo, García Cortés (2006) entiende la arquitectura como “una estructura que ayuda a construir y ordenar nuestras experiencias, es un discurso que edifica significados y enmarca contenidos” (p. 25). No cabe duda de que la arquitectura posibilita ciertos comportamientos y hábitos, tan solo es cuestión de pensar en la rutina que seguimos desde que nos despertamos y en las actividades que realizamos a lo largo del día, y reflexionar sobre las acciones que suceden en cada una de las habitaciones de nuestros hogares, sus diferencias formales y para quiénes están pensadas.
El concepto de la casa sin género4, propuesto por Zaida Muxí (2009), busca un habitar justo e igualitario entre sus habitantes. Un diseño que no propicie jerarquías y cuyos espacios puedan adaptarse a diferentes usos a lo largo del tiempo, y que asegure, de esta manera, la sostenibilidad de la vivienda. La desigualdad de género es una realidad y, como expresa Novas Ferradás (2020), “desde el siglo xix —y sobre todo durante el siglo xx en Occidente— las mujeres han sido pioneras en el análisis y propuestas de diseño de espacios habitacionales que combatan las desigualdades y afiancen un cambio social” (p. 190)5. Una propuesta que sigue esta línea es el estudio que propone Muxí en el documento “Recomendaciones para una vivienda no androcéntrica ni jerárquica” (2009), cuyo objetivo es que las labores domésticas sean visibles para, con ello, asegurarnos de que sean distribuidas equitativamente entre todos los miembros de la unidad habitacional o núcleo familiar y evitar que la responsabilidad recaiga sobre una sola persona y no dejarla en desigualdad en el uso personal del tiempo.
Es a partir de este concepto de casa sin género que cuestiono mi trabajo como arquitecta y reflexiono sobre los momentos en que me ha tocado diseñar viviendas multifamiliares, en los cuales he seguido ciertos criterios de diseño que se pueden reconocer en el “modelo inmobiliario”. Repetir los mismos criterios sin cuestionarlos es propiciar la continuidad de las reglas y patrones de la sociedad patriarcal que habitamos. Como explica Marta Fonseca Salinas (2014), este concepto, más que ser una estrategia de diseño, es un parámetro para establecer una reflexión desde la academia en la que los proyectos de vivienda “se han ido sistematizando en fórmulas falsamente neutras” (p. 84). Lo que quiere decir es que muy pocas veces se reflexiona sobre el conjunto de los espacios que conforman una vivienda.
A continuación, se explican los conceptos de neutralidad espacial, flexibilidad, almacenamiento, conexiones (pasadizos), sobre los que hace hincapié Muxí para lograr un diseño no jerárquico ni androcéntrico (2009, pp. 28-45), y que se han utilizado para el análisis de los doce casos seleccionados para, con ellos, reconocer si las características formales y las relaciones funcionales de los espacios que las conforman propician un habitar no igualitario.
La neutralidad espacial implica que un espacio no esté definido para una única función y permita su adaptabilidad a lo largo del tiempo, por ejemplo, según cambie la edad del usuario y, junto con ella, sus necesidades. Para lograr la neutralidad, en el diseño de una vivienda, los espacios deben tener dimensiones y proporciones semejantes, así como igualdad en el tamaño y distribución de ventanas con el fin de no reflejar un uso en particular. En el caso de los dormitorios, además de poseer las mismas dimensiones (no menor a diez metros cuadrados) (Muxí, 2009), en lo posible contarán con las mismas condiciones de vistas, ventilación e iluminación. Además, se recomienda que las habitaciones no tengan baño incorporado, ya que eso proporcionaría jerarquía a una de ellas. Lo que sugiere Muxí (2009) es que el baño este compartimentado para que así este pueda ser utilizado en simultáneo por diferentes habitantes del hogar.
La flexibilidad evita que los espacios se vean afectados por las estructuras e instalaciones. Muxí (2009) aconseja una modulación estructural que permita lograr una planta libre, así como la debida separación de los tabiques de las estructuras e instalaciones. Por ejemplo, colocar los pisos antes que la tabiquería permite obtener un piso continuo, así como agrupar las áreas húmedas para facilitar futuros cambios de distribución de funciones dentro de la vivienda. La flexibilidad se remonta a la teoría de los soportes, propuesta por N. John Habraken en 1960 (Montaner, 2015), donde se propone la formación de núcleos húmedos, es decir, la agrupación a través de franjas, ya sea al centro o a los extremos de la vivienda, compuestas por los servicios higiénicos, la cocina y lavandería.
Con esta agrupación de servicios, es posible hacer modificaciones rápidas en el resto de la distribución espacial. Igualmente, Muxí (2009) hace mención sobre el ciclo y recorrido de la ropa, considera que la lavandería debe estar cerca al baño y no directamente vinculada a la cocina. Ello con el fin de no mezclar funciones y que cada miembro de familia, o del grupo de convivencia, pueda hacerse responsable de esta tarea. De esta manera, se evita responsabilizar a una sola persona para realizar el trabajo de lavado, secado, planchado y guardado, además del recorrido inicial que debe hacerse desde los baños hasta la lavandería para transportar la ropa sucia.
También, Muxí (2009) hace mención sobre el espacio integrado de la sala-comedor que es habitual en la mayoría de las viviendas. Propone que no sea de esta manera, ya que al separar el comedor de la sala se obtienen dos ambientes para usar en simultáneo, ya sea para trabajar o descansar. En cambio, sí especifica la relación e integración de la cocina con el comedor para hacer visible las labores que ahí se realizan, darles la importancia que tienen y no desplazar ni ocultar a la persona que cumpla esa labor. De la misma forma, María Novas Ferradás (2020) indica que la cocina y el comedor “pueden coexistir y coproducir”
(p. 189), con el propósito de visibilizar las tareas que en esos espacios se realizan y corresponsabilizar a todos los miembros del hogar. Novas Ferradás (2020) propone, además, que la cocina puede ser un espacio social, en el mejor de los casos el espacio central de la vivienda.
En relación al almacenamiento, la arquitecta Muxí (2009) pone especial énfasis, puesto que al incluir los armarios dentro de los dormitorios se les resta neutralidad a dichos espacios para albergar otra función a futuro. También, su ubicación fija y su tamaño limitan la distribución de los muebles en el interior de la habitación lo que genera diferencias jerárquicas, puesto que las dimensiones de estos varían como sucede en el caso de presentar un walking closet dentro del dormitorio principal. Asimismo, hace mención sobre la carencia de espacios de almacenamiento para otros utensilios del hogar además de la ropa, como los son la ropa de cama, artículos de limpieza, o la ropa de estación.
Finalmente, hace mención de las conexiones (pasadizos). Muxí (2009) cuestiona que estas tengan la única función de comunicar un lugar con otro y propone establecer funciones en ellas para juegos, para labores domésticas —como el planchado de la ropa— o para espacios de estudio; sin embargo, para ello, estas deberán cumplir con las correctas condiciones de iluminación y ventilación. En la Figura 1, se reúnen los aspectos antes mencionados y que han sido utilizados para determinar si es que la vivienda residencial contemporánea de la ciudad de Lima presenta las características de una vivienda no jerárquica.

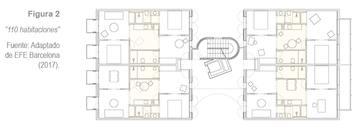
Los conceptos antes explicados ya han sido puestos en práctica en diferentes proyectos de viviendas multifamiliares en España. Un ejemplo es el proyecto diseñado por el estudio MAIO (2017) llamado “110 habitaciones”, ubicado en Barcelona. Este proyecto de veintidós viviendas presenta habitaciones regulares, característica que rescata MAIO de las viviendas de fines del s. xix inscritas en el Eixample (Ensanche) de Idelfons Cerdá. En este diseño, la cocina está ubicada al centro de la vivienda y es el espacio que articula y conecta las otras cuatro habitaciones de dimensiones similares que conforman la unidad habitacional. Gracias a esta configuración, no existen los pasillos ni jerarquías entre los ambientes (véase la Figura 2)6 (EFE Barcelona, 2017).

Así también, el proyecto ganador del Concurso Internacional de la Manzana de las Glòries, convocado por el Ayuntamiento de Barcelona en 2016 —“La Comunitat Habitacional”, de Cierto Estudio (s. f.)— está compuesto por sesenta viviendas y sigue las nociones para un habitar no jerarquizado, además de apostar por la sostenibilidad de la arquitectura. Estas viviendas forman parte de un proyecto de vivienda pública de 238 unidades, cuya edificación inició en enero del 2022. Cierto Estudio ha utilizado la arquitectura modular para permitir el crecimiento o decrecimiento de la vivienda según sea la necesidad de cada usuario o grupo de convivencia (EFE Barcelona, 2017).
El diseño de estas viviendas presenta en su núcleo el baño, que es el espacio articulador por el cual se accede a las otras habitaciones, todas de tamaño similar (véase la Figura 3). Además, otro elemento a rescatar de este diseño es el espacio intermedio que presenta al ingreso de cada unidad, lo que posibilita el encuentro y reunión de los vecinos para fomentar la vida en comunidad. Estos dos ejemplos, así como otros, evidencian la viabilidad para aplicar las recomendaciones de diseño, propuestas por Muxí (2009), desde una perspectiva feminista.

METODOLOGÍA. DOCE CASOS PARA EL ANÁLISIS DE LA VIVIENDA MULTIFAMILIAR LIMEÑA CONTEMPORÁNEA
Bajo el estudio de las características y recomendaciones para una vivienda no jerárquica ni androcéntrica propuesto por Muxí (2009), se realizó el análisis de doce viviendas que ofertaban, en el mercado peruano, diferentes inmobiliarias en diciembre del 2020, ubicadas en los distritos de Miraflores, San Isidro y Surco (véase la Figura 4). El estudio utiliza como metodología el redibujo de los planos de estas viviendas, obtenidos de las páginas web de las inmobiliarias, para identificar las dimensiones de los diferentes espacios que conforman el programa arquitectónico y las relaciones de ubicación o zonificación de los espacios de cuidado y descanso. Para, con ello, concluir sobre las dinámicas y relaciones que pueden surgir al habitar una vivienda de este tipo.
Si bien las áreas de estas doce viviendas varían —van desde los 79 metros cuadrados hasta los 148 metros cuadrados—, es posible reconocer patrones de diseño que establecen jerarquías y diferencias entre sus habitantes. A través de la lectura de los dibujos, se aprecia cómo el trabajo reproductivo (Col⋅lectiu Punt 6, 2019, pp. 83-84), aquel ligado al cuidado del hogar y de los miembros de familia —como son las acciones de cocinar, lavar, ordenar y limpiar—, en otras palabras, el trabajo de mantenimiento del hogar que da soporte a la vida de los integrantes del núcleo familiar, se ve relegado a espacios muy pequeños y casi ocultos en la distribución espacial.
RESULTADOS. UN “MODELO” DE VIVIENDA
En primer lugar, se comentarán los resultados de manera general para luego proceder a explicar cada uno de los aspectos llevados al análisis: neutralidad, flexibilidad, almacenamiento y conexiones. Las doce viviendas carecen de neutralidad espacial. Las dimensiones de las habitaciones destinadas a los dormitorios, en todas sus versiones —principal, secundario y de servicio—, así como el espacio social sala-comedor, presentan claras y evidentes diferencias formales. De la misma manera, se puede argumentar que las doce viviendas no contemplan las características de la flexibilidad en sus diseños. En la mayoría de casos, los espacios húmedos no están agrupados, sino se encuentran dispersos, lo que dificulta una futura reorganización espacial.
En cuanto a los espacios de almacenamiento, estos se encuentran en el interior de los dormitorios “principales”, a manera de walking closets, y sobrepasan en dimensiones a los ubicados dentro de los dormitorios “secundarios”. Se determina que no existe la presencia de armarios en el interior de los dormitorios de “servicio”, a excepción de un solo caso. Sin embargo, un aspecto a resaltar es que cinco de las viviendas sí presentan un espacio de almacenamiento en los pasillos de conexión.
Y, en relación a la función de las conexiones, solo en cuatro casos estas son compartidas con otras posibilidades de uso, en algunos casos con salas de estar o escritorios. Pero, la iluminación y ventilación debe mejorar, ya que solo en una de las viviendas es de manera natural. A continuación, se procederá a detallar los resultados por cada uno de estos aspectos.
El primer aspecto llevado al análisis es la neutralidad espacial. En la Tabla 1 se han clasificado y ordenado los ambientes de las viviendas que han sido analizados bajo este criterio: la sala-comedor, el dormitorio principal, los dormitorios secundarios y el dormitorio de servicio. A través del cálculo de las áreas de cada uno de estos espacios, se han obtenido los valores (en porcentaje) de las superficies que representa cada espacio del área total de la vivienda. La variedad y diferencias en las áreas evidencia una jerarquización de los espacios y sus usuarios. El promedio de los doce casos sugiere que la sala-comedor presenta una diferencia superior a dos puntos porcentuales respecto del área destinada al dormitorio principal. En este caso, la diferencia no es significativa. Por el contrario, la mayor diferencia se da cuando se comparan las áreas de los dormitorios principales con los secundarios, que en la mitad de los casos, los primeros superan con el doble del área a los segundos. Lo que no quiere decir que en los otros casos la superficie ocupada por los dormitorios principales no sea mayor. En todos los casos sucede de esta manera.
Además, en la Tabla 17 también se colocaron las áreas de los dormitorios destinados a las personas que realizan las labores de mantenimiento del hogar, denominados dormitorios de “servicio”. De las doce viviendas analizadas, solo siete presentan este ambiente. Si bien este número representa el 58,3 % de los casos de estudio, el hecho de que en cinco de las viviendas este espacio ha dejado de estar presente se toma como una señal positiva. Lo negativo, además de su presencia en el diseño, es en cuanto a sus dimensiones, ya que en los siete casos estos presentan la mitad del área de los dormitorios secundarios más pequeños, sin llegar a sobrepasar los 4,5 metros cuadrados. Esta minimización del espacio, destinado a un usuario particular que por lo general son mujeres, es un claro ejemplo de cómo se les resta importancia a ciertos usuarios de la vivienda. Otro aspecto negativo que presentan estos espacios son las malas condiciones de iluminación y ventilación bajo las cuales se ven afectados —además de su ubicación dentro del diagrama funcional de la vivienda—, aspecto que será evaluado más adelante.

En las celdas que aparece la “x” quiere decir que la vivienda no presenta dicho ambiente y en los promedios no se han considerado aquellos casos.
En la Figura 5 se observa de manera detallada que la neutralidad espacial en el diseño de la vivienda contemporánea limeña no existe. Todas las viviendas están conformadas por habitaciones de diferentes tamaños, lo que condiciona qué y quién tiene mayor relevancia en el grupo familiar o de convivencia. Estas diferencias, como se mencionó líneas arriba, son evidentes en los dormitorios, ya solo el nombre que se utiliza para denominar la habitación de los padres y madres (principal) versus la de las hijas o de los hijos (secundaria) denota que unas personas son de menor importancia o dependientes de otras en la unidad de convivencia.
Esta diferencia de tamaños, presente en los doce casos, podría derivar en disputas sobre la elección de las habitaciones para cada miembro de la familia. En la Figura 5 se ha diferenciado el área de la sala-comedor y los distintos dormitorios —principal, secundarios y de servicio— para un fácil reconocimiento.
Principalmente, la neutralidad se ve obstruida por presentar dentro de los dormitorios principales walking closets y baños. La diferencia de tamaños entre los dormitorios propicia roles y jerarquías, pero estos rangos que generan los espacios también están marcados por las vistas que poseen y por la cercanía con otros espacios de ruidos, lo que genera que unos sean más preciados que otros. Entonces, si somos conscientes de estas cuestiones que plantean las características espaciales, ¿bajo qué criterios está sujeta la decisión de asignar cada dormitorio a un miembro de la familia? ¿Es la edad un factor determinante para asignarle un dormitorio de menores dimensiones a una niña o niño? ¿Y el factor tiempo-crecimiento dónde queda?
Bajo estas comparaciones entre las habitaciones y el área destinada a reuniones familiares, ya es posible darse una idea sobre las jerarquías que proponen las viviendas de este tipo. Si bien pueden existir opiniones enfrentadas en relación a la igualdad de las dimensiones de los dormitorios, puesto que en la destinada a las madres y padres son dos los usuarios de este espacio y, de presentarse esa igualdad en los dormitorios para las hijas e hijos, podría llegarse a discutir el sobredimensionamiento de estos espacios, no se debe descartar el análisis previo de las necesidades específicas y usos del tiempo para cada usuario. Debido a que las madres y padres en su mayoría trabajan, implica que no estén presentes en el hogar durante la mayor parte del día, salvo para dormir o durante los fines de semana. Sin embargo, las hijas e hijos, por lo general, pasan un mayor tiempo en casa, utilizan sus habitaciones no solo como espacio de descanso, sino como espacio de juego, entretenimiento, estudio e, incluso, deporte. Por lo tanto, es necesario establecer las necesidades de cada tipo de usuario y cómo estas evolucionan a lo largo del tiempo para determinar el diseño de los espacios que, en caso de las niñas y niños, adolescentes y jóvenes, es más rápido que en los adultos.
También es importante resaltar que esta jerarquización de habitaciones impide o dificulta que otro tipo de familia, diferente de la que ha sido pensada como cliente objetivo —la familia nuclear hetereopatriarcal—, pueda habitar de manera igualitaria estos espacios. Estos casos serían, por ejemplo, una familia monoparental o, incluso, personas solteras o parejas jóvenes que deciden unirse para compartir una unidad de vivienda. Las opciones de familia o grupo de convivencia podrían ser diversas, pero ante una arquitectura de este tipo habría que sopesar características económicas sobre quién tiene mayores posibilidades de habitar la habitación de mayores dimensiones, la que presenta mejores vistas y la que contiene en su interior un walking closet y un baño.
Volviendo al caso de los dormitorios de servicio, estos tienen como función albergar a las personas que están encargadas del mantenimiento de la familia, no en el sentido económico, sino en lo que respecta a los cuidados, llámense a estos: preparación de alimentos, limpieza de espacios y ropa, y atención a enfermos —un trabajo altamente demandante, que la mayoría de veces es poco retribuido, y generalmente realizado por mujeres migrantes y racializadas; mujeres que cuidan de otras familias, pero que son acogidas en espacios físicos que no representan un reconocimiento ni un trato agradecido por estas labores.
Estas desigualdades espaciales muestran la presencia de relaciones de poder y, en palabras de Linda McDowell, “las relaciones de poder establecen las normas; y las normas definen los límites, que son tanto sociales como espaciales, porque determinan quién pertenece a un lugar y quién queda excluido” (como se cita en Novas Ferradás, 2021, p. 81). No cabe duda de que las diferencias espaciales comunican y expresan qué importancia o rango puede tener la persona que habita dicho espacio.
La vivienda no solo es un lugar de refugio y ocio, para muchas personas es un lugar de maltrato, violencia y explotación. En palabras de Pallasmaa, “además de ser un símbolo de protección y orden, el hogar también puede convertirse en la materialización de la desgracia humana: soledad, rechazo, explotación y violencia” (2016, p. 20).
En cuanto a la flexibilidad, esta se evidencia por la agrupación, en núcleos, de los espacios húmedos o servidores: cocina, lavandería y baños. En la mayoría de los casos de estudio, estos espacios no se encuentran centralizados en núcleos para permitir cambios significativos en un futuro. Por el contrario, están repartidos indistintamente por toda la vivienda.
En la Tabla 2 se ha clasificado la manera en que están distribuidos los espacios servidores en el diseño de estas doce viviendas. Se identificó la agrupación por núcleos, se reconoció la cantidad de baños y la proximidad de estos espacios entre sí. Además, en esta tabla, se especifica la proximidad de la cocina y la de los baños con la lavandería. Una primera observación es que existe una excesiva cantidad de baños, ocho de los doce casos (66,7 %) presentan cuatro unidades destinadas a este uso: baño de visita, baño principal, baño secundario y baño de servicio. Tres viviendas presentan tres baños (25 %) y tan solo una vivienda cuenta con dos baños. Es posible concluir que a mayor cantidad de baños se dificulta la concentración de todos en un solo núcleo húmedo. De estas ocho viviendas, solo dos presentan una concentración de todos los espacios servidores en un núcleo húmedo.

Otro aspecto de diseño vinculado a la flexibilidad y a la ubicación de los núcleos húmedos es la relación de proximidad que tienen estos espacios entre sí. Ya se ha comentado que lo óptimo para evitar una carga de trabajo adicional en el hogar es la cercanía de los baños con la lavandería. Como propone Muxí (2009), si la estación de lavado se encontrara en una posición central y anexa al baño —espacio donde uno se desprende de la ropa sucia—, esta tarea de mantenimiento y limpieza podría ser ejecutada de manera personal para propiciar un convivir más equitativo (véase la Figura 6). La dispersión de estos espacios no permite agilizar las tareas de limpieza de la ropa, lo que propicia una carga de trabajo extra a la persona encargada de esta labor (si es que hubiese solo una).
Un aspecto que resalta en el diseño de once de las doce viviendas analizadas es el vínculo y la relación directa entre la cocina y la lavandería (véase la Figura 6). Es posible intuir que se agrupan, puesto que en conjunto estos dos espacios contienen la mayor cantidad de trabajo de mantenimiento y limpieza del hogar. Sin embargo, lo que se logra con ello es invisibilizar dichas tareas y, por supuesto, ocultar a las personas que las realizan. Esto es evidente, ya que en los casos en que existen dormitorios de servicios (siete), estos se encuentran ubicados anexos a las lavanderías. Esta proximidad genera que las ventanas no ventilen directamente hacia el exterior o a un pozo de luz, sino a través de otro ambiente, una condición que va en contra de la neutralidad.
Otro aspecto analizado en cuanto a la característica de flexibilidad es la opción de cambio de función de los espacios servidos. En particular, en el caso de la sala-comedor, se evidencia que estas viviendas no presentan la opción de utilizar la sala y el comedor de manera separada y en simultáneo para realizar actividades diversas, como puede ser estudio, trabajo y ocio, debido a que comparten un mismo ambiente. De la misma manera, la relación cocina-comedor no es directa. En la Tabla 3 se ha elaborado una clasificación sobre las maneras en que estos dos espacios de la vivienda están relacionados, si es de forma directa o indirecta. Además, se indica a través de qué elemento se genera la relación o separación, ya sea a través de una barra, una puerta o un pasillo respectivamente.

Solo en cuatro de las viviendas (33,3 %) se evidencia una relación directa y sin obstáculos visuales de la cocina con el espacio del comedor. Esto ocurre gracias a la presencia de una barra. El diseño contempla una cocina semiabierta o semiintegrada. Cinco de las viviendas (41,7 %) presentan una relación indirecta con el comedor. En estos casos, los espacios están separados por un pasillo. Las tres viviendas (25 %) restantes cuentan con una relación directa, pero esta se ve obstaculizada por la presencia de una puerta.

La cocina es un espacio de trabajo y de mantenimiento de la familia, por lo que la relación cocina-comedor tiene un objetivo muy importante, evitar que la carga de trabajo recaiga sobre una sola persona y hacer visible esta labor. Sin embargo, en la mayoría de los casos estudiados, la relación de este espacio servidor con el comedor se ve obstaculizado (véase la Figura 7), por lo que podría facilitar que las labores desarrolladas en la cocina pasen inadvertidas para todos los habitantes del hogar.
Una posible solución para la búsqueda de esta integración podría ser que la cocina sea un medio de tránsito obligatorio, como sucede en el caso del proyecto “110 Habitaciones” del estudio de arquitectura MAIO (2017), explicado líneas arriba. La cocina como el centro, o el corazón de la vivienda, posibilita la visualización de la carga laboral que sucede en ese ambiente y, de alguna manera, se podrá dialogar sobre la colaboración en el trabajo doméstico que ahí se realiza con los habitantes del hogar. María Novas Ferradás (2020) expresa que la redefinición de estos espacios tiene un impacto “en la socialización y educación de las nuevas generaciones, normalizando el valor de corresponsabilizarse del trabajo de sostenimiento de la vida” (p. 116).

En relación al almacenamiento, la presencia de los armarios en los dormitorios impide la flexibilidad dentro del espacio, ya que la ubicación del mobiliario se ve limitado. En la Tabla 4 se ha identificado que todos los dormitorios denominados como principales y secundarios presentan en su interior un espacio destinado al almacenamiento. En el caso de los dormitorios principales, nueve de los casos (75 %) presentan en su diseño walking closet. También se aprecia que de las siete viviendas que cuentan con dormitorio de servicio, solo una presenta un pequeño clóset. En el caso de la lavandería, se observa la carencia de espacios de almacén. Por último, seis de los casos (50 %) consideran clósets en los pasillos. Se puede intuir que estos espacios están destinados para guardar la ropa de cama, la ropa de mesa y la ropa de cambio de estación, pero en el resto de las viviendas, estos artículos terminarán en el clóset de alguno de los dormitorios, lo que le resta espacio al usuario de dicha habitación.

Finalmente, el último aspecto a tomar en consideración dentro del análisis de la arquitectura residencial contemporánea de la ciudad de Lima, desde una perspectiva feminista, es la función que se le otorga a los espacios de conexión o pasillos. En los doce casos, los pasillos cumplen con la función de transitar y conectar los espacios entre sí. Solo en cuatro de los casos (33,33 %) estos son complementados con otros usos (véase la Tabla 5). Uno de los casos comparte el espacio para albergar un escritorio y sala de estar, y cuenta con ventilación e iluminación natural. Otros dos cuentan con el espacio para un escritorio; sin embargo, solo uno de ellos cuenta con iluminación natural. Finalmente, el cuarto espacio identificado está destinado a albergar una sala de estar, pero con iluminación artificial. En el resto de los casos (66,67 %), el pasillo es utilizado solo como conexión y tránsito (véase la Figura 8).


CONCLUSIONES Y RECOMENDACIONES
Aún existe una brecha de género en el uso del tiempo en el Perú puesto que son las mujeres las que, en su mayoría, le dedican más horas de su tiempo personal al trabajo de mantenimiento y limpieza del hogar. Luego de este análisis, se puede afirmar la presencia de un modelo de vivienda en la ciudad de Lima que propicia esta desigualdad. Este modelo no presenta espacios neutrales o flexibles, ni estrategias a considerar para un habitar igualitario ni para lograr la sostenibilidad de la unidad residencial. Como se ha evidenciado, los ambientes poseen diferentes dimensiones, impedimento para una futura adaptabilidad funcional, según las edades y las necesidades de los usuarios cambien.
Esta investigación ha utilizado una pequeña muestra de las viviendas que se ofrecen en el mercado inmobiliario para un sector de la ciudad de Lima. Se han analizado las viviendas bajo la crítica feminista, que tiene como objetivo la transformación espacial para erradicar las diferencias sociales generadas por el trabajo doméstico que pone en desventaja a las mujeres. Como se indicó en la introducción, se ha establecido un marco en particular para la selección, por lo que una recomendación para futuras investigaciones que sigan el análisis de la vivienda desde la perspectiva feminista es ampliar el panorama, explorar otros mercados, tal vez una vivienda que esté dirigida a otro público objetivo para contrastar los casos. También, se recomienda hacer este análisis de manera periódica para mapear los cambios que puedan surgir con el paso del tiempo.
Finalmente, deseo recalcar la idea de Montaner y Muxí sobre que no es posible separar la arquitectura de los modos de vida y el pensamiento contemporáneo, “la arquitectura expresa las encrucijadas en las que se encuentran las sociedades contemporáneas” (2016, p. 41). Por ello, cierro con esta pregunta: ¿Es posible proponer una arquitectura que busque la igualdad en una sociedad aún patriarcal y regida por el poder y el consumo? Como usuarios, ¿estamos dispuestos a ceder nuestros espacios de privilegio y autoridad?
REFERENCIAS
Bachelard, G. (2012). La poética del espacio. Fondo de Cultura Económica.
Castillo Dávila, C. (2020, 21 de agosto). ¿Cuáles son las mejores inmobiliarias del Perú en el 2020? BBVA. https://www.bbva.com/es/pe/cuales-son-las-mejores-inmobiliarias-del-peru-en-el-2020/
Cierto Estudio. (s. f.). La Comunitat Habitacional. https://ciertoestudio.com/La-Comunitat-Habitacional
Col·lectiu Punt 6. (2019). Urbanismo feminista: por una transformación radical de los espacios de vida. Virus Editorial.
EFE Barcelona. (2017, 28 de agosto). El mayor edificio con estructura de madera de España estará en Glòries. La Vanguardia. https://www.lavanguardia.com/local/barcelona/20170828/43885211557/mayor-edificio-estructura-de-madera-espana-plaza-glories.html
Fonseca Salinas, M. (2014). Casa sin género. En Actas del I Congreso Internacional de Vivienda Colectiva Sostenible (pp. 84-89). Máster Laboratorio de la Vivienda Sostenible del Siglo xxi. http://hdl.handle.net/2099/14880
Freyre Valladolid, M., & López Mendoza, E. (2011). Brechas de género en la distribución del tiempo. MIMDES. https://www.mimp.gob.pe/files/direcciones/dgignd/publicaciones/Brechas-de-genero-en-el-Uso-del-Tiempo.pdf
García Cortés, J. M. (2006). Políticas del espacio. Arquitectura, género y control social. IAAC.
MAIO. (2017). 22 viviendas en calle Provença, Barcelona. Arquitectura Viva. https://arquitecturaviva.com/obras/22-viviendas-en-calle-provenca
Matrix. (1989). Making space. Women and the man made environment. Pluto Press.
Montaner, J. M. (2015). La arquitectura de la vivienda colectiva. Reverté S. A.
Montaner, J. M., & Muxí, Z. (2016). Arquitectura y política. Ensayos para mundos alternativos. Editorial GG.
Muxí, Z. (2009). Recomendaciones para una vivienda no jerárquica ni androcéntrica. Generalitat de Catalunya.
Muxí, Z. (2018). Mujeres, casas y ciudades: más allá del umbral. DPR Barcelona.
Novas Ferradás, M. (2020). La vivienda desde el feminismo como espacio para la transformación social. En Actas del Encuentro Internacional Género, Arquitectura y Ciudad (pp. 184-192). Universidad de Las Palmas de Gran Canaria. http://hdl.handle.net/10553/108035
Novas Ferradás, M. (2021). Arquitectura y género: una introducción posible. Melusina.
Pallasmaa, J. (2016). Habitar. Editorial GG.
Peran, M. (2009). After architecture. Tipologías del después. Arts Santa Mònica.
Rosler, M. (2017). Clase cultural: arte y gentrificación. Caja Negra.
Torrado, U. (2019). Nueva dinámica en las familias peruanas. CEO Datum Internacional. https://www.datum.com.pe/new_web_files/files/pdf/nuevas_dinamicas_en_las_familias_peruanas.pdf
Zafra, R. (2021). Frágiles. Anagrama.
1 Los datos de la ENUT 2010 muestran que los hombres dedican 15 horas y 53 minutos a las labores domésticas por semana, mientras que las mujeres dedican 39 horas y 28 minutos de su tiempo a estas. Un ejemplo similar sucede en España, según el Col-lectiu Punt 6 (2019, pp. 82-83): “En Cataluña, según datos de la ‘Encuesta de Empleo del Tiempo’ del 2011, las mujeres dedican el doble de horas semanales que los hombres a las tareas del hogar y la familia, con un total de 28 horas con 21 minutos, frente a las 14 horas con 35 minutos de ellos”.
2 Esta selección de viviendas ha sido utilizada previamente para la realización de la obra artística titulada La arquitectura de la felicidad (2021) que forma parte del trabajo final para obtener el grado de magíster de la autora del presente artículo. Para mayor información consultar El diagrama del habitar (2021), publicado en el respositorio académico de la Universidad de Barcelona.
3 Las familias peruanas se componen de la siguiente manera: madre sola con hijos (15,6 %), padre solo con hijos (3,3 %), familia joven sin hijos (2,2 %), coresidentes (5,7 %), hogar unipersonal (11,1 %), familia extendida (12,2 %), papá, mamá e hijos (40 %), nido vacío (9,7 %), familia reconstituida (sin datos) y parejas del mismo sexo (sin datos). Estos datos evidencian que el 59,5 % de las familias peruanas no encajan en el modelo tradicional.
4 Muxí viene trabajando hace mucho tiempo sobre el concepto de la casa sin género. En el 2009, genera un documento para la Generalitat de Catalunya: “Recomendaciones para una vivienda no jerárquica ni androcéntrica”. En él explica cómo remodelar antiguas viviendas para romper con las jerarquías, las divisiones y liberar a la mujer de la responsabilidad total de las tareas reproductivas. Lo viene haciendo junto con el colectivo Punto 6 y con el Laboratorio de la Vivienda del Siglo xxi de la Universidad Politécnica de Cataluña (UPC), con quienes, en el 2016, desarrollaron un taller sobre la vivienda sin género.
5 Para mayor información sobre la historiografía de la arquitectura desde una perspectiva feminista se recomienda la lectura del libro Mujeres, casas y ciudades. Más allá del umbral (2018) de Zaida Muxí.
6 Planta típica del edificio de viviendas de siete niveles que conforman el proyecto, cada nivel contiene veinte habitaciones que conforman cuatro viviendas. Se ha coloreado la agrupación de los espacios servidores al medio de la vivienda compuesta por la cocina y dos baños.
7 Las áreas han sido obtenidas a través del redibujo de los planos conseguidos en las webs de las inmobiliarias.