ESTADO Y DESARROLLO
EN LATINOAMÉRICA
PLANIFICACIÓN, TURISMO Y HOTELERÍA
DE MONTAÑA DURANTE EL PRIMER
PERONISMO EN MENDOZA, ARGENTINA
(1952-1955)
PLANNING, TOURISM AND MOUNTAIN HOSPITALITY
DURING THE FIRST PERONISM IN MENDOZA,
ARGENTINA (1952-1955)
Pablo Federico Ricardo Bianchi Palomares
Instituto de Ciencias Humanas, Sociales y Ambientales,
Centro Científico Tecnológico Mendoza, CONICET,
Mendoza, Argentina.
Facultad de Ingeniería, Universidad Nacional de Cuyo,
Mendoza, Argentina.
0000-0001-9941-3881
Recibido: 31 de marzo del 2022
Aprobado: 6 de octubre del 2022
doi: https://doi.org/10.26439/limaq2023.n011.5836
Los planes quinquenales del primer peronismo promovieron el turismo de interés social sobre dos bases: una económica, con la posibilidad de acceder a hoteles baratos; y otra social, a partir del intercambio de contingentes de distintas regiones del país. En este contexto, Mendoza se posicionó como un destino de montaña, con actividades vinculadas a la práctica del andinismo y el esquí. El artículo problematiza el posicionamiento de dos localidades, la villa Eva Perón (como se denominó al paraje de Las Cuevas, último poblado previo al cruce a Chile) y Puente del Inca, un sitio de renombre por sus paisajes naturales y su oferta termal. A partir de la revisión de memorias de gobierno, estadísticas provinciales, guías de viaje, fotografías históricas y publicaciones periódicas, se pretende dar cuenta de la transformación material y simbólica acaecida en el espacio de la montaña, como un lugar predilecto de implementación de políticas que fomentaron el turismo masivo.
turismo social, primer peronismo, políticas públicas, arquitectura, planes quinquenales, conquistas sociales
The five-year plans of the first Peronist rule promoted social tourism via a twofold strategy: an economical one, through affordable hotels, and a social one, by means of a quota exchange program between different regions in the country. This context saw Mendoza positioned as a mountain tourism destination, with activities related to mountaineering and skiing. This article problematizes the positioning of two locations, Villa Eva Perón (the name given to the village of Las Cuevas, the outermost town before the Chilean border) and Puente del Inca, a popular site for its natural sceneries and thermal springs. By reviewing government records, provincial statistics, travel guides, historical photographs and newspaper articles, the article aims to provide an account of the material and symbolic transformation undergone by the mountain region, as an ideal space for the implementation of policies that fostered massive tourism.
social tourism, first Peronism, public policies, architecture, five-year Plans, social achievements
Este es un artículo de acceso abierto, distribuido bajo los términos de la licencia Creative Commons Attribution 4.0 International (CC BY 4.0).
Introducción
Las políticas de fomento del ocio y del turismo en Mendoza, en especial las vinculadas con la construcción de equipamientos e infraestructuras afines, tuvieron particular acogida durante el ciclo conservador-demócrata, a partir de 1936. Avanzada la década del cuarenta, los beneficios derivados de la práctica deportiva, el ocio recreativo y el descanso se extendieron a mayores capas de la población, a partir de la sanción de normas que regularon la jornada laboral e instituyeron las vacaciones pagadas, delineando los primeros pasos en el proceso de “democratización del bienestar” a escala nacional, según han estudiado Juan Carlos Torre y Elisa Pastoriza (2001). En palabras de los autores, “la sociedad móvil de los años del peronismo fue una sociedad con una estructura de ingresos más igualitaria. Y, con más ingresos disponibles, los argentinos pudieron consumir más y en forma más variada” (p. 259). En consecuencia, se produjo un aumento marcado en los niveles de vida de la población, particularmente de los estratos populares.
En este contexto, la oferta turística se amplió ya no solo por las acciones de fomento en manos del Estado, sino que aparecieron en escena las asociaciones profesionales, que agrupaban a los empleados según los rubros comerciales y fabriles en los que se desempeñaban (petroleros, comercio, ferroviarios, bancarios, obras sanitarias, luz, etcétera), ofreciendo instancias específicas de intercambio y ocio entre sus afiliados.
Torre y Pastoriza (2001) sostienen que el turismo se caracterizó por la implantación de grandes complejos hoteleros en Mar del Plata y las sierras de Córdoba, destinos “preferidos” en el paisaje de turismo del país, abriendo las posibilidades de acceso y disfrute turístico a estratos más amplios de la sociedad, en sitios que anteriormente estaban reservados a los miembros de la aristocracia y la dirigencia política.
Los pilares del turismo social peronista fueron colocados en 1945: “[…] el decreto por el que se creó el aguinaldo estableció un descuento del 5 % con destino a la promoción del turismo entre los trabajadores y la construcción de colonias de vacaciones” (Torre & Pastoriza, 2001,
p. 261). Por primera vez se asignaron oficialmente fondos con ese fin. Por otra parte, aparecieron nuevos destinatarios de las prácticas turísticas y de ocio: los trabajadores o empleados, los estudiantes y los niños.
La concepción del turismo nacional, según los lineamientos del Primer Plan Quinquenal, tenía una faz económica y otra social: la económica se vinculaba con la posibilidad de acceder a hoteles baratos, por una parte, y de poder desplazarse a los sitios de veraneo a través de transportes acordes y con precios controlados, por otra. La faz social se derivaba del intercambio beneficioso entre turistas provenientes de distintas latitudes de la geografía nacional: a través del conocimiento del otro se reconocía la propia identidad y se reforzaba el sentido de pertenencia. El escenario propuesto para este intercambio eran las colonias de vacaciones y los campamentos (Presidencia de la Nación, 1946).
Los principales objetivos del plan de desarrollo turístico argentino eran:
1. promover la “preservación de la flora y la fauna típicas del país,
2. facilitar a toda la población el conocimiento de los lugares más hermosos,
3. salvaguardar las bellezas naturales de la Nación y
4. procurar descanso y esparcimiento a las clases de bajos recursos […]. (Presidencia de la Nación, 1946, p. 66)
Estos fundamentos dejan entrever una serie de conceptos más profundos (aspectos ampliamente abordados por Scarzanella, 1998; Torre & Pastoriza, 2002; Troncoso & Lois, 2004; Pastoriza, 2008a y 2008b; Pastoriza, 2011; Piglia, 2011; Pastoriza & Piglia, 2012; Piglia & Pastoriza, 2017; Schlüter, 2008; Cicalese, 2018). Por una parte, el reconocimiento de la diversidad de recursos naturales en tanto insumos para el desarrollo de las economías regionales (más que por su relevancia intrínseca como partes constituyentes de ecosistemas singulares o áreas de biodiversidad destacada). En segunda instancia, la potencialidad del turismo como factor de creación de conciencia ciudadana y nacional, que promovía la igualdad de los derechos cívicos, legales, sociales, culturales y económicos. Luego, propender a la seguridad y resguardo de las áreas de frontera y, finalmente, facilitar el acceso al ocio y al turismo de capas más amplias de la población, tendiendo a la masificación de las prácticas. Sostenemos que, según las medidas implementadas, el gobierno nacional priorizó para Mendoza del segundo al cuarto objetivo, mientras que, a escala provincial, ampliar el conocimiento y disfrute de los lugares de turismo a toda la población y propender al conocimiento de las bellezas locales y del resto del país, se posicionaron como los más relevantes.
El Segundo Plan Quinquenal (véase la Figura 1) incorporó el desarrollo del turismo internacional. A escala local, buscaba el fortalecimiento del turismo escolar. El Plan fomentaba el desarrollo de centros y zonas de turismo existentes, al tiempo que buscaba posicionar nuevas zonas, en provincias o territorios de menores recursos económicos, o bien en aquellas “menos privilegiadas con respecto a los recursos naturales” (Presidencia de la Nación, 1953, p. 153). Esto podría explicar la ausencia de colonias de vacaciones u hoteles nacionales de este periodo en Mendoza, dado el profuso equipamiento hotelero y la infraestructura turística que había en la provincia, provenientes de décadas anteriores.

Además, el Segundo Plan Quinquenal fomentaba, mediante el crédito bancario, la construcción privada de hoteles de turismo, en sitios ya consolidados, y de hosterías en los caminos de acceso a dichas zonas1. Como novedad, proponía la creación de una escuela nacional de hotelería y de formación técnico-profesional para el personal de empresas de turismo, a fin de “capacitar a sus alumnos en la atención y servicio del turista” (Presidencia de la Nación, 1953, p. 155), dando cuenta de la mayor especificidad que habían adquirido los distintos rubros vinculados con la actividad turística2.
El Plan otorgaba un lugar especial al week end, o “turismo local de sábados y domingos”, que llenaba “las zonas periféricas de las grandes ciudades” (Presidencia de la Nación, 1953, p. 153). Esta aseveración da cuenta de la relevancia que la planificación otorgaba al turismo de cercanía, de corta duración, en las proximidades del lugar de residencia permanente de los destinatarios3, una oferta que se sumaba a la práctica de las vacaciones pagadas previstas por la legislación laboral.
En este contexto, el artículo se propone indagar en las políticas públicas vinculadas con el turismo y, más específicamente, en la producción de arquitectura hotelera en localizaciones de montaña, atendiendo al lugar forjado desde la dirigencia local, que promocionaba a la provincia como un destino privilegiado de la oferta de sol y nieve. Cabe aclarar que las representaciones visuales sobre Mendoza como destino, y su estrecha relación con la montaña, se habían forjado desde principios del siglo xx, con las acciones pioneras de los establecimientos termales de Puente del Inca (2700 msnm) y Cacheuta (1200 msnm), concretados gracias a la presencia del ferrocarril trasandino.
Partimos del supuesto de que las políticas públicas durante el ciclo peronista, confirieron especial atención a los territorios de frontera, de modo que abrieron el panorama turístico de zonas limítrofes a un conjunto cada vez más heterogéneo de la población4. En Mendoza, esta apertura posibilitó el acercamiento de un público cada vez mayor a las prácticas del montañismo y el disfrute de la nieve. Por otra parte, y específicamente desde el campo de la arquitectura, postulamos que las agencias técnicas encargadas de la resolución de propuestas arquitectónicas vinculadas al turismo, asumieron un posicionamiento de avanzada, que involucró no solo la experimentación proyectual, sino también tecnológica y constructiva, en línea con las políticas gubernamentales de fomento a la industria y de diversificación de la matriz productiva del país5.
Este trabajo pretende completar las indagaciones que, sobre las políticas públicas en general, y sobre el campo disciplinar de la arquitectura en particular, han abonado el derrotero del peronismo a escalas nacional y provincial. De ellas, destacamos la producción de Anahí Ballent, que indaga tanto en aspectos simbólicos como en las materializaciones (2002 y 2005). En segundo lugar, rescatamos el trabajo de Elisa Pastoriza y Melina Piglia (2012), que han vinculado políticas públicas, prácticas sociales y representaciones. Otras investigaciones han contextualizado las intervenciones urbanas y arquitectónicas del Estado en materia de turismo (Navarro Floria, 2008). Pastoriza aborda los hoteles vinculados a los gremios en el peronismo (2008b), como también el caso de las vacaciones populares en el complejo de Chapadmalal (2018) y la evolución del turismo nacional (2011). A escala local, es destacable el aporte de Cecilia Raffa e Ivana Hirschegger, quienes abordan desde la arquitectura y las infraestructuras, el ciclo político desarrollado entre 1946 y 1955.
El corpus documental examinado se constituye principalmente de fuentes primarias, como documentos oficiales (labores de gobierno, anuarios estadísticos, planes del gobierno nacional), guías de viaje del periodo, publicaciones periódicas (diarios y revistas), fotografías históricas, documentación técnica de arquitectura y videos propagandísticos, provenientes de archivos oficiales. Estas fuentes fueron analizadas a la luz del modelo narrativo histórico (Sautu et al., 2005). Como técnicas, recurrimos en primer lugar al análisis de fotografía histórica que provee la gramática de casos (Valle Gastaminza, 1999 y 2002; Fitz Canca, 2001), realizamos luego un análisis interpretativo (Sautu, 2003) y, finalmente, acudimos al análisis del discurso, derivado de la teoría del discurso propuesta por Roig (1993), que permitió interpretar los textos emanados de las fuentes consultadas.
En la primera parte del artículo, se expone el contexto histórico-político del ciclo abordado, con la enumeración de las acciones más relevantes de los gobiernos peronistas a escala provincial. Luego indagamos en los argumentos de la dirigencia, que sustentaron las acciones en la montaña mendocina. En tercer lugar, abordamos las medidas que, en torno a la Unidad Turística de Alta Montaña, facilitaron la apropiación del territorio fronterizo. Finalmente, se exponen las conclusiones del trabajo y las referencias bibliográficas.
Contexto histórico-político
En Mendoza, las políticas en materia de turismo siguieron el mismo derrotero que se daba a escala nacional, con la diferencia de que la provincia no recibió del gobierno central grandes conjuntos o edificios, como sí ocurrió con Córdoba, Catamarca, Santiago del Estero, Mar del Plata o Chapadmalal. La promoción de los deportes, el fomento a la construcción de hoteles populares de turismo, las acciones sistemáticas de propaganda y difusión de sitios y enclaves turísticos, el impulso a las actividades industriales (entre las que destacaba la vendimia) y la exaltación de la figura de José de San Martín y su gesta, constituyeron las medidas más relevantes encaradas desde la esfera gubernamental para el posicionamiento de Mendoza como un importante destino.
La gestión de Faustino Picallo (1946-1949) otorgó un fuerte impulso a la Fiesta de la Vendimia y a la realización de ferias industriales, amplió el acceso a bienes culturales6 y promovió la práctica deportiva. Asimismo, facilitó el turismo de cercanía, con excursiones económicas a distintos lugares de la provincia (Potrerillos, Cacheuta, Lunlunta, Tunuyán, Villavicencio y Uspallata), a partir del establecimiento de la primera estación de turismo autorizada al efecto (Raffa, 2018), por medio de un convenio con la Empresa de Turismo Argentino, de Avallone Hnos. SRL (conocida con la sigla ETA)7.
La Ley 1581/46 fue la primera en la gestión del peronismo provincial que destinó fondos para la construcción de hoteles populares por parte del Estado, en Luján de Cuyo, San Rafael, Tupungato y Tunuyán. Además, la legislatura autorizó la venta del Hotel de Uspallata al Instituto Argentino para la Promoción del Intercambio (IAPI), por el valor neto de su construcción (Ley 1671/47). Entre otras medidas, se creó el Fondo de Promoción al Turismo, regulado por la Ley 1697/48.
La legislatura promulgó una serie de leyes referidas al mundo del trabajo: fijó aumentos para los empleados del Estado mediante la Ley 1632/47; estableció el salario mínimo y la jornada laboral máxima para los empleados y obreros del servicio público, correspondientes a los tres poderes (Ley 1633/47); implementó asignaciones por matrimonio y por nacimiento a los empleados y obreros casados (Ley 1635/47), y determinó montos máximos y mínimos de jubilación (leyes 1641/47 y 1724/48). Reglamentó, asimismo, la caja de jubilaciones y pensiones del magisterio (mediante la Ley 1656/47 y su complementaria, la Ley 1751/48). Todas estas medidas provocaron una mejora real del salario, lo que, sumado a la regulación de la jornada laboral, debió incidir en una mayor disponibilidad de tiempo libre, beneficiando y facilitando la práctica de actividades vinculadas con el ocio y el turismo.
Durante la gobernación de Blas Brisoli (1949-1952) se implementó el segundo plan trienal de obras y servicios públicos para la provincia, en línea con el Primer Plan Quinquenal (1947-1951). Su administración fomentó la obra pública, vinculada a vivienda, construcción de edificios escolares, hospitalarios e irrigación, dio impulso a la construcción y mejora de vías comunicacionales e inició la construcción del nuevo centro de gobierno en los terrenos de la antigua Quinta Agronómica (AAVV, 1996). En materia de turismo, Brisoli suscribió un convenio recíproco con el gobierno de la provincia de Buenos Aires, que promovía el intercambio de contingentes de ambas provincias que se desplazaban en verano e invierno a la playa o la montaña, según proviniesen de Mendoza o Buenos Aires, respectivamente (Raffa, 2018), una experiencia que también repitió la administración de Carlos Evans.
Mediante la Ley 1837/49 se creó la Dirección Provincial de Aeronáutica, dependiente del Ministerio de Gobierno y Asistencia Social, y se destinaron fondos para el fomento de cooperativas de transporte automotor de pasajeros, de las líneas urbanas con servicio en la ciudad capital (Ley 1928/50), lo que pone en evidencia la relevancia creciente que la movilidad cobró en la agenda pública.
Carlos Evans ocupó la primera magistratura provincial entre 1953 y 1955 y llevó adelante el Segundo Plan Quinquenal Provincial, que seguía los lineamientos del Plan Quinquenal Nacional, proyectado para el periodo 1953-1957. Durante su gobernación, se aprobó el convenio celebrado entre el gobierno de la provincia y el Ministerio del Ejército para la urbanización del valle de Uspallata, con el asiento de destacamentos de Gendarmería Nacional, un proyecto que se concretó solo en parte8. Igualmente, se promovió la urbanización de Cacheuta por medio de la venta de lotes fiscales (Ley 2427/55).
Dada la coyuntura y los problemas económicos9 que comenzaban a mellar la bonanza característica del primer gobierno peronista, Evans tuvo que recurrir a un saneamiento financiero y reorganización administrativa del Estado, con el objeto de direccionar más eficazmente los recursos (Cuadra, 1998). En materia hotelera, Raffa (2018) explica que el Hotel Puente del Inca pasó a manos del Estado, en tanto el Hotel Termas de Cacheuta fue cedido al sector gremial.
La montaña y la gesta libertadora como sustento
de las políticas públicas en turismo10
Respecto del espacio que cupo al deporte en las estrategias de promoción turística de Mendoza, la gestión provincial enarboló el binomio práctica deportiva y ocio, concretamente, en lo referido a los deportes de montaña, como el andinismo, el senderismo, el esquí y el patinaje sobre hielo. Estos deportes conjugaban los principios de desarrollo de la cultura física y el descanso, en estrecho contacto con la naturaleza, lo que quedó demostrado con la asignación de fondos para la instalación de un campo de deportes invernales en Puente del Inca, “integrado por un trampolín de salto, con diseño ajustado a las demarcaciones e indicaciones de la Federación Internacional de Ski, pista de hockey sobre hielo, ski-lift y pistas de deslizamiento” (Ministerio de Economía, 1948, p. 39).
La política de Brisoli continuó por el mismo andarivel: en su mensaje a las Cámaras en el momento de asumir el mando, sostuvo que los deportes de invierno debían intensificarse, dada su cualidad de “atractivo particular de la región”. Sumado a ello, resaltaba la fama de Mendoza como un “centro privilegiado del andinismo y del esquí, actividades que cuentan cada día con mayor número de aficionados foráneos y locales” (Gobierno de Mendoza, 1949, p. 69). Brisoli expresaba que se había iniciado el estudio de un plan destinado a “parcelar zonas montañosas para el deporte de nieve, para crear en ellas centros con vida propia, al igual que los de otras regiones similares de Europa y América, famosas por sus canchas de esquí” (p. 69). La fundamentación de esa medida radicaba en la “multiplicación de los sitios apropiados para la práctica del deporte blanco”, de manera que pudiesen llegar a ellos “con el mínimo de sacrificio económico, los jóvenes humildes, empleados y estudiantes” (p. 69).
Fueron tres las operaciones llevadas a cabo por la Dirección Provincial de Vialidad (DPV) que provocaron un gran impacto en los consumidores del turismo mendocino: en primer lugar, el mejoramiento y ensanche del camino a Vallecitos por Potrerillos. La obra demandó el tendido de tres puentes (uno sobre el arroyo El Salto, de 10,40 m de luz por 8 m de ancho de calzada; y dos sobre el río Blanco, de 6 m y 5 m de luz por 5 m de calzada) y la construcción de una playa de estacionamiento frente a las pistas de esquí, por un monto total de $ 102 806 m/n. La segunda operación consistió en el trazado y construcción de la ruta entre Potrerillos y Tupungato por La Ollada (actual paso de La Carrera, RP 89) (véase Figura 2), que, en palabras de la dirigencia, no solo contribuiría con la economía del valle de Tupungato, sino que se ofrecía también “como muy adecuado para la ampliación del radio turístico” de la provincia (Oficina de Prensa e Informaciones, 1952, p. 115).
La última acción consistió en tender una pasarela peatonal, conocida popularmente como “puente colgante” en la localidad de Cacheuta, paralela al puente ferroviario del tren trasandino. La pasarela unía el sector de la antigua estación con el promontorio Norte, donde se ubicaban la escuela y el cementerio del poblado. El puente, de 112 m de longitud, fue desarrollado en tres tramos: con 1,6 m de ancho, cruzaba a una altura de 15 m sobre el río Mendoza. La obra costó $ 172 553 m/n y fue inaugurada en 1953 (véase la Figura 3).


La Figura 2 pertenece a un archivo privado y permite comprobar la incorporación de la nueva ruta por La Ollada como un paseo de cercanías, mediante el uso del transporte motorizado. Una imagen similar (que solo mostraba el paisaje) circuló en la publicación oficial Agua, Vivienda, Salud. Si bien no era una publicación destinada a la difusión masiva, seguramente la intencionalidad de la imagen fue dejar testimonio de la grandeza de la obra pública del periodo (reflejada metafóricamente en la imponencia del paisaje en el que la obra se insertaba). La Figura 3 muestra a las autoridades en el momento inmediatamente posterior al corte de cintas de la pasarela: podemos observar al gobernador Evans a la derecha (con traje claro) y toda su comitiva detrás. Se trata de una fotografía oficial, que muestra la belleza del lugar e implícitamente connotaba la seguridad y buena factura de la obra, dado que exhibía el momento en que toda la comitiva circulaba sobre el puente.
Hemos afirmado que el plan turístico del peronismo se apoyó también en la gesta sanmartiniana: una de las primeras acciones oficiales se orientó al fortalecimiento del Museo Histórico General San Martín, administrado por la Asociación de Damas Pro-Glorias Mendocinas, que recibió un subsidio del Estado provincial por Ley 1645/47 para el sostenimiento de la institución cultural. Pero el antecedente de las grandes conmemoraciones en homenaje a San Martín se dio en 1947, con la Semana Sanmartiniana, compuesta de un programa con numerosas actividades, de las que destacaban las “peregrinaciones patrióticas […], tomando por base el rico patrimonio histórico de nuestra provincia y fechas altamente propicias para el turismo invernal” (Picallo, 1948, p. 154), que se sumaron a las actividades previstas en el calendario anual de turismo11.
Uno de los actos de mayor peso simbólico fue probablemente la imposición del nombre General San Martín al emblemático parque urbano de Mendoza, y de avenida del Libertador a una de sus principales calles, que conectaba los portones de acceso, ascendiendo hacia el oeste, con el Cerro de la Gloria. En esa ocasión, Picallo se refería a la medida como un “acto de justicia” y se presentaba como un “fiel intérprete” de los designios del Padre de la Patria: “San Martín permanece redivivo en el hombre y en el paisaje de Mendoza. Corresponde a este suelo, más que a ningún otro en todo el continente, la gloria de hallarse identificado eternamente con el héroe” (Picallo, 1948, p. 168).
El discurso tenía un fuerte carácter performativo, sustentado en la argumentación que aludía a lo terrenal y lo divino, el “suelo” que lo había cobijado y su “recuerdo sagrado”, elevado a una categoría casi divina, situada en los escalones más altos de la exaltación simbólica. En este juego discursivo, la alusión al “pueblo de Mendoza” encerraba un llamado a la acción, una exhortación que debía enardecer a todos los habitantes por igual, reforzado por la “natural herencia” que correspondía a los habitantes de suelo mendocino, como depositarios de la inspiración patriótica del héroe.
El mandatario se posicionaba (aludiendo a la figura del “gobierno de la Provincia” y, por ende, involucrando a toda la clase dirigente) como defensor de esta herencia sagrada, apelando a la relación recíproca entre “hombre” y “paisaje”. Es decir, buscaba por medio de una retórica reiterativa, reunir en una misma prefiguración al habitante y al suelo de Mendoza, sosteniendo que ni siquiera el tiempo podía socavar tal relación. De esta manera, su mensaje se instituía como un discurso de autoridad (Roig, 1993).
En ocasión de celebrarse la clausura del “Año Sanmartiniano” (proclamado por Ley 1775/49) en diciembre de 1950, las figuras de Juan Domingo Perón y su esposa Eva dieron sobradas muestras de este proceso de resignificación retórica y simbólica en diversos sitios: en el Teatro Independencia al finalizar el Congreso de Historia Sanmartiniana; en Tunuyán, al inaugurarse el monumento “Retorno a la patria”12, y en Uspallata, en el Hotel de la Confederación de Empleados de Comercio (actual Hotel Uspallata), donde Perón y Eva se alojaron para recibir el Año Nuevo (Ecos de la clausura del Año Sanmartiniano, 1950, pp. 11-14)13.
Estos textos, sumados a la profusa documentación fotográfica, que reafirmaba las aseveraciones del mensaje, servían sobradamente para la difusión de los eventos y se instituyeron como signos que referenciaban a una respuesta codificada, que promovía determinadas selecciones interpretativas (Eco, 1981): los actos eran multitudinarios, contaban con una amplia adhesión popular (lo que se traducía en apoyo al modelo de gestión), servían a la fusión conmemorativa del personaje histórico y retroalimentaban la propia posición ideológica de la dirigencia política. La retórica adoptada por el primer mandatario colocaba a San Martín como principal figura identificatoria, a partir de la idea de “continuidad” de su obra: San Martín había luchado por la independencia política, Perón lo hacía por la económica. Como bien ha explicado Raffa (2018), Perón tomaba de la figura de San Martín dos atributos, en aras de su propia exaltación simbólica: el de “general” y el de “conductor” de la “nueva Argentina de masas” (Philip, citado por Raffa, 2018, p. 188).
El traslado desde Francia de los restos de la hija de San Martín, de su esposo y de una de sus hijas, junto con la construcción de un mausoleo en la basílica de San Francisco (Ley 1650/1947), fueron otras de las medidas que buscaron acrecentar el acervo sanmartiniano mendocino.
Como vemos, la declaración del Año del Libertador en 1950 inspiró a un sinnúmero de actividades conmemorativas en distintos lugares de la provincia, y alentó a las juntas de historia y grupos afines a rescatar los sitios vinculados con el pasado sanmartiniano, que fueron incorporándose rápidamente a las guías de turismo como lugares de interés turístico.
Entre otras medidas, en 1950 se inició la construcción de la Biblioteca Pública General San Martín, en el solar histórico de la Alameda. En 1951, la Comisión Nacional de Monumentos, de Lugares y de Bienes Históricos (CNMMLH) declaró lugar histórico el Batán de Tejeda (el sitio que ocupó la sastrería de los trajes militares del Ejército Libertador), por el Decreto 5135, y se reforestó el Campo Histórico El Plumerillo, la antigua maestranza del Ejército de los Andes. Esta iniciativa local fue encabezada por el Ateneo Tradicionalista General Gerónimo Espejo, con el apoyo del Comando Agrupación de Montaña “Cuyo” y la Dirección de Forestación, Urbanismo y Parques de Mendoza (Reforestación del Campamento Histórico “El Plumerillo”, 1951, s. p.). Asimismo, la CNMMLH declaró lugar histórico al puente sobre el río Picheuta, a 22 km de Uspallata en la ruta hacia Chile, mediante el Decreto 10188/52.
La Unidad Turística de Alta Montaña y el proyecto para el nuevo Hotel Puente del Inca
El 26 de febrero de 1953 quedaba oficialmente inaugurada la Unidad Turística de Alta Montaña (Stawski, 2005) de la Fundación Eva Perón (FEP)14. La fecha corresponde, en realidad, a la inauguración de la villa Eva Perón (a 3557 msnm) y significó el primer paso del proceso que buscaba visibilizar los productos turísticos del área de frontera, como parte de un mismo proyecto de difusión15. Estos productos incluían al Hotel Termal Puente del Inca, que había pasado a manos del Estado, y la hostería de la villa Eva Perón. En Agua, Vivienda, Salud figuraba:
La Fundación Eva Perón exhibe con orgullo, ya concluida, una obra de ensueño que aparte de reparar aquel viejo agravio dará al turista, deseoso de emociones, un albergue paradisíaco desde el cual podrá contemplar las bellezas impresionantes del macizo cordillerano, en las primeras puertas de la Argentina abiertas al Pacífico, por la ruta internacional de Uspallata. (Oficina de Prensa e Informaciones, 1952, p. 243)
El texto daba cuenta del carácter de la nueva villa, posicionándola (implícitamente) a la altura del paisaje natural en que se insertaba y ensalzándola como destino turístico. En la misma línea, el diario oficialista Voz Cuyana expresaba en una crónica de 1952:
El lugar no era muy a propósito para que los extranjeros que llegaran a nuestro país a través de la cordillera en el tren “El Libertador” tuvieran una impresión de nuestro progreso. […]. Siete meses bastaron para cambiar totalmente la fisonomía de Las Cuevas. Como por milagro se levantó en el mismo lugar una ciudad moderna y acogedora. Constituyen actualmente el núcleo urbano trece edificios principales y un monumental arco de entrada construido en estilo nórdico, que forman el casco central. Alrededor fueron surgiendo las calles pavimentadas, los edificios de la Aduana, de Inmigración y Gendarmería, contando con otros servicios como oficinas de Correos y Telecomunicaciones, estación de YPF, enfermería, proveeduría, usina, hosterías y una Unidad Básica. Todo este conglomerado urbano se construyó en pocos meses con el entusiasmo de centenares de obreros y técnicos del servicio de la Fundación, que trabajaron en pleno invierno, con temporales de nieve y viento, para llevar a cabo una obra que no podía retardarse en beneficio de un grupo de esforzados argentinos que cumplen una misión importante para la soberanía nacional. (La ciudad Eva Perón, 1952, p. 19)
El discurso relevado recurre a un contraste de la situación previa a la intervención estatal, nombrando las mejoras que el Estado, y concretamente la FEP, habían provocado en el paraje. Las argumentaciones se reforzaron con una enumeración de los nuevos equipamientos, exponiendo la actitud patriótica de los obreros y técnicos de la FEP para concluir la obra. Si bien la adjetivación no era suficiente para permitir una reconstrucción mental del poblado, sí lo era para resaltar el valor de la obra de la agencia estatal, aludiendo a sus esfuerzos para cambiar, mediante una acción concreta, la vida de los pobladores en general, y de los trabajadores apostados en el paraje, en particular. Los calificativos “moderno” y “acogedor”, vinculados al “progreso” del país, referían implícitamente a una construcción simbólica que se esperaba provocar en los visitantes, aspecto que el mismo discurso preanuncia.
En favor de la difusión de la FEP y de su obra turística operaron también los documentales publicitarios de la Secretaría de Prensa y Difusión de la Nación. Porque amó a su pueblo fue el documental que narraba la obra de la FEP en el país y, en relación con el turismo de invierno, en Mendoza. Al momento de mostrar imágenes sobre el Hotel Puente del Inca, la voz en off del locutor narraba: “Hoteles de turismo social se multiplican en todos los centros de descanso. Allí, donde es más singular la hermosura de nuestra tierra” (Secretaría de Prensa, 1953, min. 3:35-3:36). Al mostrar imágenes de la villa Eva Perón, afirmaba: “En el límite demarcatorio con la nación hermana de Chile”, la villa es “una realidad que parecía irrealizable” (min. 4:05-4:06) (véanse las Figuras 4 y 5).


En la última imagen sobre la secuencia destinada a Mendoza, se mostraba una plaza de juegos infantiles y sobre los columpios se leía “en la nueva Argentina los únicos privilegiados son los niños”, de manera que, no solo el documental como estrategia propagandística, sino la propia villa de Las Cuevas, primer poblado al cruzar desde el vecino país, evidenciaba las marcas de la propaganda política articulada desde el Estado.
Ahora bien, la nueva villa fue emplazada en el mismo sitio que la anterior, lo que deja en evidencia que la propuesta de urbanización no buscaba dialogar con el poblado preexistente, sino que, más bien, pretendía borrar todo trazo de ese pasado “desafortunado” (una actitud que incluyó, llamativamente, la estación de trenes, que quedaba a espaldas del pueblo nuevo). Estructurada a partir de la RN n.° 7, que la vinculaba hacia el oeste con el antiguo túnel ferroviario “La Cumbre”, el esquema adoptó un tipo suburbano-funcional planificado, de carácter longitudinal, en el cual se dispusieron construcciones a uno y otro lado del viario, concebido como un eje ordenador de la propuesta. El foco del espacio lo constituía un vacío, la plaza, de carácter cívico, alineada con la estación del ferrocarril trasandino (aunque situada varios metros más hacia el sur), que definía un eje de composición secundario, perpendicular al anterior, en torno al cual se dispusieron las construcciones del sector residencial. En el costado norte de la ruta se ubicaron los edificios de servicios generales, como también las oficinas de Aduana, Migraciones y Correo (véase la Figura 6).
La imagen, publicada en la Revista de Arquitectura, formó parte del número especial dedicado a la obra arquitectónica de la FEP y mostraba no solo el nuevo trazado urbano, sino también fotografías de varios de los edificios que constituían el conjunto. En las tomas predominan los puntos de fuga hacia los cerros circundantes, o bien hacia el arco de entrada al poblado. Todos los edificios fueron resueltos en un lenguaje historicista afiliado al pintoresquismo, con cubiertas de marcada pendiente, terminadas en tejuela de madera. Los cuerpos de las edificaciones principales adoptaron la tecnología de la piedra del lugar en su basamento, mientras que los muros del alzado fueron resueltos en bloc, con revestimientos de madera en ambas caras; en algunos casos, incorporaron galerías con arquerías en piedra. El diseño resolvió también los equipamientos y las obras de urbanización, lo que incluyó la demarcación y apertura de calles principales y secundarias, la instalación de equipamiento urbano (farolas y bancos) y la forestación del conjunto, con coníferas plantadas en todas sus calles.

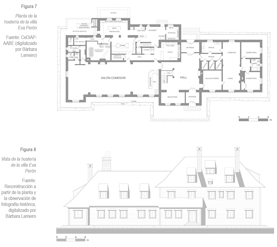
La hostería ocupó un lugar preponderante en la composición, enfrentada con la plaza principal y de mayor tamaño que el resto de las edificaciones. Fue resuelta en el mismo lenguaje y se organizó en un partido alargado, paralelo a la ruta, desarrollado en planta baja y un piso alto, con una buhardilla (véase la Figura 7). Ofrecía 20 habitaciones y 11 baños (Asociación de Hoteles…, 1958, p. 43). La planta baja concedió gran preponderancia a las zonas sociales, con el acceso y hall casi en el eje del edificio y, junto con el salón comedor, ocupando la mayor superficie. La vinculación visual con la ruta se hacía por medio de pequeñas ventanas alineadas, atendiendo la orientación sur de la fachada principal (una orientación desfavorable por la presencia de fuertes vientos cordilleranos).

Hacia la parte posterior se ubicaron la cocina, la despensa y las zonas de preparación de alimentos, mientras que el extremo este albergaba los departamentos de empleados permanentes. Todo el nivel superior se destinó a cuartos de alojamiento y, si bien no hemos podido encontrar la documentación de esta parte del edificio, es posible que las habitaciones se hayan organizado a uno y otro lado de los corredores, como ocurrió en otras construcciones del poblado. En cuanto a la volumetría resultante, los bloques salientes en distintas secciones de la planta, sumados a las cubiertas de fuertes pendientes, con chimeneas ejecutadas en piedra, terminaron por conformar un edificio de gran dinamismo, que se instituía como un foco de atracción visual de todo el conjunto, oficiando de gran telón de fondo del espacio de la plaza principal (véase la Figura 8). La imagen de la villa, junto con la belleza e imponencia del paisaje circundante, configuraron vistas emblemáticas que se incorporaron rápidamente al repertorio representacional de los destinos de invierno y, en el caso de Mendoza, de los destinos de montaña. Estas imágenes circularon a modo de postales o de fotografías, que hemos relevado en las guías del periodo, y fueron alimentando representaciones hegemónicas que preanunciaban la experiencia del turismo de invierno y verano en el paraje. La promoción de las actividades de montaña de los destinos cordilleranos se activó por medio de anuncios publicitarios, que aludían no solo a la práctica de los deportes invernales, sino a la posibilidad de realizar actividades durante todo el año (véase la Figura 9).

La diferencia que detectamos a primera vista en la promoción de ambos establecimientos es que, mientras uno de los anuncios hacía alusión a su confort y reciente construcción, el otro se apoyaba en su fama y el clima del emplazamiento. Entendemos que las dispares características edilicias de los destinos (uno con equipamiento nuevo, el otro, de principios de siglo) no podían socavar la intencionalidad publicitaria de los anuncios, lo que justificaba buscar, en cada caso, aquello que de propio aportara a la oferta, fuese esto su atractivo como lugar natural, como sitio de reposo del cuerpo y de mejora de la salud física, la posibilidad de disfrutar su gastronomía o como alternativa para practicar deportes de invierno (que ambos ostentaban).
Al revisar los costos de alojamiento y pasaje a la zona de alta montaña, calculados sobre la base de las tarifas oficiales publicadas por la Dirección Provincial de Turismo (DPT), encontramos por ejemplo que, al costo del viaje ida-vuelta desde Buenos Aires (o Rosario) en tren hasta Mendoza, cuyo precio (promedio) ascendía a $ 216 m/n, debía sumarse el costo del traslado Mendoza-alta montaña en la opción más económica (ómnibus, $ 68 m/n), más el costo de diez noches de alojamiento con pensión completa en la Hostería 17 de Octubre ($ 800 m/n), lo que arroja un valor total de $ 1084 m/n16. Para una persona interesada en un alojamiento urbano, al costo del pasaje debía sumar la estadía en un hotel de categoría media. En este caso, considerando también diez noches con pensión, el valor total del viaje ascendía a $ 606 m/n. Al comparar con las estadísticas provinciales referidas a salarios de empleados, queda en evidencia que estos valores posibilitaban el turismo de una franja media del entramado social. Queda claro que sin programas de fomento o descuentos especiales era, al menos para los sectores populares, difícil poder concretar sus vacaciones en la montaña17.
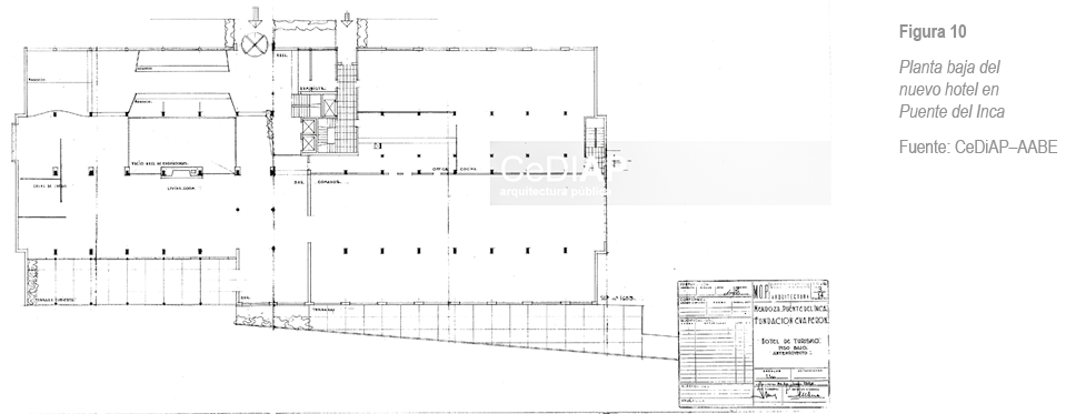
Es posible que el auge de los parajes de la cordillera (y la notable mejora operada en la villa Eva Perón) justificara una intervención en Puente del Inca, un lugar que se había instituido como un destino tradicional del turismo termal de los círculos aristocráticos y, a partir de 1930, de los deportes de montaña. Entre enero y febrero de 1954, se realizó un levantamiento planialtimétrico en la zona del hotel, con el objeto de construir un nuevo edificio. Si bien la intención avanzó hasta la fase de anteproyecto (el edificio no llegó a concretarse), la acción es elocuente respecto de la resignificación de los antiguos destinos, pero vinculados ahora a los “nuevos” propósitos del turismo masivo.
En segundo lugar, da cuenta de la innovación con que se pensó esta intervención, dado que el edificio se resolvería adoptando la tipología de edificio en altura (desarrollado en planta baja y seis pisos altos), algo impensado en la montaña, y que fue concretado en otros destinos similares varios años después18.


La propuesta para el nuevo hotel en Puente del Inca fue formulada por un agente de la Dirección Nacional de Arquitectura (DNA)19, el arquitecto Luis María Bianchi, quien había proyectado otra obra para Mendoza, el pabellón 24 del Ministerio de Obras Públicas (MOP) en el contexto de la Feria de América20. El anteproyecto del hotel dio cuenta de las disquisiciones que se daban al interior del campo disciplinar, que también se habían hecho evidentes en el pabellón del MOP de 1954: incorporó la racionalidad de la propuesta, el empleo de elementos premoldeados, lo que derivaba en un menor tiempo de ejecución y, por ende, en una mayor economía de la obra, aspectos que se hacen evidentes al analizar la documentación del anteproyecto, reunida en el repositorio del Centro de Documentación e Investigación de la Arquitectura Pública – CeDiAP (véanse las Figuras 10, 11, 12 y 13).
El hotel se pensó para tener 108 habitaciones dobles con baño privado, más 8 dormitorios comunitarios en el último nivel, con baño compartido. Ofrecería comedor general, comedor de niños, peluquería para varones y para damas, locales comerciales, salón de juegos, bar, biblioteca y microcine. Entre sus servicios, debía satisfacer a los huéspedes con cocina propia, lavandería, cámara frigorífica, bodega de alimentos y bebidas y depósito de esquíes. La propuesta contempló un nuevo edificio de baños termales, que incluiría 20 cuartos de baño, individuales, y una piscina cubierta, provistos con bombas desde las vertientes originales.
Conclusiones
Según lo analizado en el artículo, concluimos, como otros inves-tigadores, que la difusión turística de la montaña mendocina se apoyó en dos figuras simbólicas de gran peso: la montaña, sobre la que se desplegaron acciones concretas, con la construcción de infraestructuras y mejoras en las vías comunicacionales, y la epopeya sanmartiniana, un aspecto que fue aludido por la dirigencia desde las acciones materiales, como la implantación de monumentos conmemorativos y las designaciones de paseos y sitios emblemáticos, y desde el plano simbólico, con referencias a la figura de San Martín y su legado, aspectos que los dirigentes del periodo empleaban en su retórica propagandística, lo que derivó en una intencionalidad de apego a valores nacionalistas.
Al igual que en el periodo conservador-demócrata, el Estado ocupó un lugar preponderante en este desarrollo, en menor medida mediante la concreción de obra pública, pero acompañando desde las políticas de promoción y, sin lugar a duda, desde un posicionamiento ideológico, que activaba estrategias propagandísticas para resignificar los destinos previamente conformados. En este sentido, la resignificación de la montaña activó la incorporación decidida de una mayor cantidad de subdestinos y actividades, como los hilvanados por los caminos hacia el Oasis Sur, pasando por San Carlos y Tupungato, o bien la práctica del esquí en Vallecitos, o la del andinismo profesional en alta montaña; debiendo aclararse que, según los registros analizados, la oferta de nieve y, en general de la montaña, se hizo accesible a un público de buen poder adquisitivo. En relación con este tema, entendemos que los convenios firmados con otras provincias, para el intercambio turístico, tuvieron un efecto concreto de aumento de la cantidad de visitantes, lo que derivó en una creciente demanda del mercado hotelero en destinos de montaña. La concreción de la villa Eva Perón fue, sostenemos, el acto simbólico y material de mayor peso en la apropiación del territorio cordillerano de frontera.
Específicamente desde la disciplina arquitectónica, la resolución de dos importantes intervenciones, la villa Eva Perón y el proyecto —no concretado— para el hotel termal de Puente del Inca, dio cuenta de las diferentes escalas y complejidades que abordaron las agencias estatales (en este caso, la FEP y la DNA, respectivamente). Esto puso en evidencia la injerencia creciente que estas oficinas tuvieron en los programas de gobierno vinculados con el turismo en una zona de frontera, problematizando aspectos referidos a la innovación tecnológica, al desarrollo y fomento de la industria nacional por medio del empleo de materiales fabricados en el país, al dominio de la técnica, a la conformación de equipos y cuadrillas técnicas y a la experimentación, de la que el proyecto para Puente del Inca dio cuenta.
En cuanto a la vinculación entre representaciones sociales y arqui-tectura, el discurso operado desde la clase dirigente, tanto provincial como nacional, aportó una imagen heterogénea de lo que significaba Mendoza como un destino de masas: con una amplia oferta para un público extenso, la prefiguración de Mendoza como un destino relevante se sustentó en figuras vinculadas con la multiplicidad de paisajes, de alojamientos económicos y otros de jerarquía, sumado a un conjunto de actividades que evidenciaron un fuerte carácter estacional. El historicismo desplegado en la villa Eva Perón, o la arquitectura racional vinculada a una altísima eficiencia, calidad en el diseño y economía de materiales, sustentada en la estandarización (que evidencia el proyecto de Puente del Inca), parecieron tener igual relevancia simbólica, al menos desde las oficinas responsables de su concepción, que asumieron los encargos con una notable expertise técnica, sin resaltar ninguna de las variantes lingüísticas en detrimento de la otra.
Se distinguió la oferta entre turismo de invierno y de verano, pero haciendo referencia en cualquier caso al carácter pujante de la provincia como un territorio productivo y con cualidades excepcionales para el turismo masivo. Las sistemáticas visitas del primer mandatario y su esposa actuaron como un caldo de cultivo que activó esta calificación, “acercando” el destino de montaña a las ciudades y provincias del litoral, para las que Mendoza era tradicionalmente solo un espacio de periferia.
Referencias
AAVV. (1996). Historia contemporánea de Mendoza a través de sus gobernadores. Tomo I (1932-1966). Junta de Estudios Históricos de Mendoza. Artes Gráficas Unión.
Asociación de Hoteles, Bares, Confiterías y Afines de Mendoza. (1958). Guía de la hotelería y sus afines de la provincia de Mendoza. Cogtal.
Ballent, A. (2002). El peronismo y sus escenarios: la operación territorial de Ezeiza (1944-1955). Entrepasados, 11(22), 7-25.
Ballent, A. (2005). Las huellas de la política: vivienda, ciudad, peronismo en Buenos Aires, 1943-1955. Editorial Universidad Nacional de Quilmes.
Belini, C. (2009). La industria peronista. Edhasa
Bianchi, P. (2022a). Arquitectura para el turismo en Mendoza (1884-1955): lectura histórica y análisis de sus representaciones sociales [tesis doctoral inédita]. Universidad de Mendoza. Facultad de Arquitectura, Urbanismo y Diseño.
Bianchi, P. (2022b). El pabellón 24 de la Feria de América (1954): una aproximación en clave biográfica. Arquitecturas del Sur, 102-117. http://revistas.ubiobio.cl/index.php/AS/article/view/5007
Bruno, P. (2012). Los hoteles de turismo (1930-1955): piezas claves del territorio turístico de la Argentina. Registros. Revista De Investigación Histórica, (9), 54-80. https://revistasfaud.mdp.edu.ar/registros/article/view/84
Cicalese, G. (2018). La Nación Argentina justa, libre, soberana: un atlas nacional para representar el mundo peronista. Un ensayo de interpretación. Universidad Nacional de Mar del Plata. http://nulan.mdp.edu.ar/2958/
Cirvini, S. (2004). Nosotros los arquitectos: campo disciplinar y profesión en la Argentina moderna. Zeta.
Cuadra, Z. E. (1998). Gobernador Carlos Horacio Evans. Inca Editorial y Talleres Gráficos Cooperativa de Trabajo Ltda.
Díaz, A. (Prod.). (1954). Sucesos argentinos n.º 791. [Video]. AGN. 46.C35.1.A. Legajo 411. https://agnbicentenario.mininterior.gob.ar/web/fichatecnica/5f96e2dbf1
10b19de10d815d
Dirección de Estadísticas de la Provincia de Mendoza. (1954). Anuarios estadísticos 1952-1954. S. d.
Dirección Provincial de Turismo. Oficina de Propaganda. Intervención Federal en Mendoza. (1955). Mendoza. Guía de turismo. Imprenta Oficial.
Discurso del Dr. Antonio J. Scaravelli. (1950). La Quincena Social, 15 y 30 de febrero, año XXX, (733, 734), s. p.
Eco, U. (1981). La estructura ausente. Introducción a la Semiótica. Ed. Lumen.
Ecos de la clausura del Año Sanmartiniano. (1950). La Quincena Social, 15 y 30 de diciembre, año XXX, (753, 754), 11-14.
Fitz Canca, M. J. (2001). Análisis documental y fotografía histórica. Patrimonio Histórico: Boletín del Instituto Andaluz de Patrimonio Histórico, 34, 232-241.
Garazi, D. (2020). El revés de las vacaciones: hotelería, trabajo y género. Mar del Plata, segunda mitad del siglo xx. 1.a ed. Universidad Nacional de Quilmes. Libro digital, PDF. https://ridaa.unq.edu.ar/handle/20.500.11807/2251
Gerchunoff, P., & Antúnez, D. (2001). De la bonanza peronista a la crisis de desarrollo. En Torre, J. C. (Dir.). Nueva historia argentina. Tomo VIII: Los años peronistas (1943-1955) (pp. 125-205). Sudamericana.
Gobierno de Mendoza. (1948). Mensaje del Gobernador de la Provincia de Mendoza Don Faustino Picallo. Imprenta Oficial.
Gobierno de Mendoza. (1949). Mensaje del Gobernador de la Provincia de Mendoza Teniente Coronel de Intendencia (R) Blas Brisoli. Imprenta Oficial.
Haro, E. (s. f.). Historia. Fundación Eva Perón. Archivo General de la Nación Argentina [Texto]. Sitio web oficial AGN. https://atom.mininterior.gob.ar/index.php/fundaci-n-eva-per-n
La ciudad Eva Perón. (1952, julio). Voz Cuyana, año II, (22), 19.
La eficiente labor de la Dirección Provincial de Turismo. (1951, primera quincena de agosto). Voz Cuyana, año I, (10), 3.
Ministerio de Economía, Obras Públicas y Riego. (1948). Las obras públicas que ha hecho y hace el gobierno de Mendoza. Imprenta Oficial.
Ministerio de Obras Públicas de la Nación. Administración General de Parques Nacionales y Turismo. (1950). Visión de Argentina. Guillermo Kraft Ltda.
Navarro Floria, P. (2008). El proceso de construcción social de la región del Nahuel Huapi en la práctica simbólica y material de Exequiel Bustillo (1934-1944). Revista Pilquen. Sección Ciencias Sociales, 10(1), 1-14.
Oficina de Prensa e Informaciones del Poder Ejecutivo. (1951). Agua, vivienda y salud. Peuser.
Oficina de Prensa e Informaciones del Poder Ejecutivo. (1952). Agua, vivienda y salud. Tres años de labor justicialista. Peuser.
Pastoriza, E. (2008a). El turismo social en la Argentina durante el primer peronismo. Mar del Plata, la conquista de las vacaciones y los nuevos rituales obreros, 1943-1955. Nuevo Mundo Mundos Nuevos, Debates [En línea]. http://nuevomundo.revues.org/36472
Pastoriza, E. (2008b). Estado, gremios y hoteles. Mar del Plata y el peronismo. Estudios Sociales, 34(1), 121-147.
Pastoriza, E. (2011). La conquista de las vacaciones. Edhasa.
Pastoriza, E. (2018). Memoria obrera y turismo. Las vacaciones populares durante el primer peronismo. Pasado Abierto, 4(8), 115-140.
Pastoriza, E., & Piglia, M. (2012). Asociaciones civiles, empresas y Estado en los orígenes del turismo argentino. Anuario IEHS, 27, 393-416.
Picallo, F. (1948). 18 meses de gobierno. Documentación principal de la gestión administrativa del Poder Ejecutivo de la Provincia de Mendoza. Desde el 26 de mayo de 1946 hasta el 31 de diciembre de 1947. Bajo el gobierno del Sr. Faustino Picallo. Tomo V. Imprenta Oficial.
Piglia, M. (2012). En torno a los parques nacionales: primeras experiencias de una política turística nacional centralizada en la Argentina (1934-1950). PASOS Revista de Turismo y Patrimonio Cultural, 10(1), 61-73.
Piglia, M., & Pastoriza, E. (2017). La construcción de políticas turísticas orientadas a los sectores medios durante el primer peronismo: Argentina 1946-1955. Licere, 20(1), s. p.
Poder Ejecutivo Mendoza. (1946). Mensajes de S. E. el Señor Gobernador de la Provincia, Don Faustino Picallo. Imprenta Oficial.
Presidencia de la Nación. Secretaría Técnica. (1946). Plan de gobierno 1947-1951. Tomo II. Interpretación gráfica. Talleres Gráficos de la Penitenciaría Nacional.
Presidencia de la Nación. Subsecretaría de Informaciones. (1953). Segundo Plan Quinquenal, con acotaciones del Ministro de Asuntos Técnicos de la Nación. S. d.
Raffa, C. (Dir.). (2017). Arquitectos en Mendoza. Biografías, trayectorias profesionales y obras. Tomo 1, Mendoza, Instituto de Historia del Arte, Universidad Nacional de Cuyo. [Libro Digital, PDF]. https://bdigital.uncu.edu.ar/fichas.php?idobjeto=9327
Raffa, C. (2018). Turismo social: entre simbolismos y materializaciones. En C. Raffa & I. Hirschegger (Dirs.), Proyectos y concreciones: obras y políticas públicas durante el primer peronismo en Mendoza (1946-1955) (172-197). Primera edición ilustrada. Universidad Nacional de Cuyo. Secretaría de Ciencia, Técnica y Posgrado. https://bdigital.uncu.edu.ar/11476
Raffa, C. (Dir.). (2019). Arquitectos en Mendoza. Biografías, trayectorias profesionales y obras. Tomo 2, Mendoza, Instituto de Historia del Arte, Universidad Nacional de Cuyo. [Libro Digital, PDF]. https://bdigital.uncu.edu.ar/fichas.php?idobjeto=13376
Raffa, C., & Hirschegger, I. (Dirs.). (2018). Proyectos y concreciones: obras y políticas públicas durante el primer peronismo en Mendoza (1946-1955). Primera edición ilustrada. Universidad Nacional de Cuyo. Secretaría de Ciencia, Técnica y Posgrado. https://bdigital.uncu.edu.ar/11476
Reforestación del Campamento Histórico “El Plumerillo”. (1951). La Quincena Social, octubre y noviembre, año XXXIII, (767, 768), s. p.
Roig, A. A. (1993). Historia de las ideas, Teoría del discurso y pensamiento latinoamericano. USTA.
Sautu, R. (2003). Todo es teoría: objetivos y métodos de investigación. Lumiere.
Sautu, R., Boniolo, P., Dalle, P., & Elbert, R. (2005). Manual de metodología: construcción del marco teórico, formulación de los objetivos y elección de la metodología. CLACSO.
s. d. (1954). Guía de turismo Andes. Mendoza. República Argentina. Año IV, (4). Mendoza: s. d.
Scarzanella, E. (1998). El ocio peronista: vacaciones y “turismo popular” en Argentina (1943-1955). Entrepasados, (14), 65-84.
Secretaría de Prensa y Difusión de la Nación. (1953). Porque amó a su pueblo. [Documental]. AGN. Fondo 727.C16.1.A. Legajo: 1242. Tambor 727 (16)-580 (35). https://agnbicentenario.mininterior.gob.ar/web/fichatecnica?terms=por
que%20am%C3%B3%20a%20su%20pueblo
Schlüter, R. G. (2008). Turismo: una visión integradora. Centro de Investigaciones y Estudios Turísticos. Buenos Aires: Talleres CPC. Stawski, M. (2005). El populismo paralelo: política social de la Fundación Eva Perón (1948-1955). X Jornadas Interescuelas/Departamentos de Historia. Escuela de Historia de la Facultad de Humanidades y Artes, Universidad Nacional del Rosario. Departamento de Historia de la Facultad de Ciencias de la Educación, Universidad Nacional del Litoral.
Torre, J. C., & Pastoriza, E. (2002). La democratización del bienestar. En J. C. Torre (Dir.), Los años peronistas. Colección Nueva Historia Argentina
(pp. 257-312). Sudamericana.
Troncoso, C., & Lois, C. (2004). Políticas turísticas y peronismo. Los atractivos turísticos promocionados en Visión de Argentina (1950). PASOS. Revista de Turismo y Patrimonio Cultural, 2(2), 281-294.
Valle Gastaminza, F. (1999). Dimensión documental de la fotografía. En: Manual de documentación fotográfica. Síntesis.
Valle Gastaminza, F. (2002). Perspectivas sobre el tratamiento documental de la fotografía. En Imagen, cultura y tecnología: Primeras Jornadas [Madrid, 1 al 5 de julio]. Archiviana.
Villa Eva Perón (ex Las Cuevas). La obra arquitectónica de la FEP (1953, marzo, abril). Revista de Arquitectura, año XXXVIII, (370), 16-70.
1 A partir de 1947, un sistema crediticio denominado Préstamo Nacional Hotelero, otorgado por el Banco Hipotecario Nacional, incentivó la acción privada en materia de edilicia hotelera: la iniciativa era observada por la Administración General de Parques Nacionales y Turismo, que “evaluaba las propuestas teniendo en cuenta la localización de las construcciones, la conveniencia desde el punto de vista turístico y el estilo arquitectónico de los edificios” (Troncoso & Lois, 2004, p. 285).
2 Esta iniciativa contó con algunos antecedentes en la década de 1940, pero se concretó recién en 1978, cuando se puso en funcionamiento la Escuela de Hotelería y Gastronomía del Gran Hotel Casino, dependiente de la Federación Empresaria Hotelero Gastronómica de la República Argentina (Garazi, 2020, p. 74).
3 Si bien la práctica del week end no es exclusiva de este periodo histórico, su incorporación decidida al plan de gobierno como parte de las políticas sociales sí lo es, sobre todo al considerar que en las décadas anteriores se vinculaba con estratos medios-altos (que contaban con los recursos o el automóvil para ejercerla), mientras que el espíritu a partir de 1946 consiste en difundirla entre las clases trabajadoras.
4 Al respecto, Troncoso y Lois (2004) sostienen que se fomentó el turismo “popular” en destinos consolidados disfrutados anteriormente por la oligarquía, en zonas como Mar del Plata, Córdoba y las costas del lago Nahuel Huapi, en la Patagonia argentina (p. 285). Respecto de las inversiones hoteleras encaradas por el Estado Nacional, Bruno (2012) destaca que los hoteles en Corrientes y Paso de Los Libres fueron terminados por el peronismo, pero iniciados por administraciones anteriores. Un proyecto (no construido) a destacar, fechado en 1954, se
5destinó a las cataratas del Iguazú (Bruno, 2012). En la zona sur de Mendoza, el peronismo provincial finalizó el Hotel Turismo de Malargüe, que había iniciado el gobierno de la Intervención Federal en la provincia hacia 1944 (Bianchi, 2022a).
La década entre 1946 y 1955 es considerada clave en la historia económica de la Argentina contemporánea. La producción nacional industrial cobraba una creciente relevancia en la matriz económica, orientada hacia una industrialización que requería —según los propósitos del plan peronista— el aliento del mercado interno, como han demostrado Claudio Belini (2009) y Pablo Gerchunoff y Damián Antúnez (2001).
6 Durante su gestión se recibió la donación de la casa solariega de Narcisa Araujo de Guiñazú en Mayor Drummond, y se la acondicionó para albergar el Museo Emiliano Guiñazú, luego Museo Provincial de Bellas Artes (Ley 1687/47). Entre otras medidas, se creó la Comisión Provincial de Cultura (Ley 1678/47), que buscaba centralizar la administración y gestión de la Biblioteca Pública General San Martín y otras instituciones culturales del Estado (Picallo, 1948, pp. 115-116).
7 En relación con los intercambios turísticos entre Mendoza y otras provincias, durante la gestión de Picallo y a través de un encargo efectuado a la sección Propaganda de la Dirección Provincial de Turismo (DPT), se preparó una excursión de un contingente local a las provincias de Córdoba, Tucumán y Santiago del Estero, que se hizo efectiva en julio de 1947, con un total de cincuenta pasajeros que viajaron “en dos modernos ómnibus” de la ETA, cumpliendo el propósito de fomentar el turismo masivo interprovincial (Picallo, 1948, p. 153).
8 Sugerimos revisar el apartado El turismo sindical: Cacheuta y Uspallata, en Raffa e Hirschegger (2018).
9 La exclusión de la Argentina del Plan Marshall, que buscaba beneficiar a las economías europeas dañadas por la guerra, el aumento de la inflación, la retracción de los salarios y el ciclo de sequía (1949-1952) que ocasionó una crisis en el campo, han sido señalados como parte de las causas que afectaron el avance industrial y comercial que, hacia el interior y hacia el exterior del país, respectivamente, habían apuntalado las reservas y generado un superávit fiscal (Gerchunoff & Antúnez, 2001, pp. 163-166).
10 Raffa (2018) ha sido una de las primeras investigadoras en detectar estos principios rectores de las políticas turísticas del peronismo a escala provincial.
11 Las peregrinaciones se llevaban adelante desde 1943. En 1949 se hizo una peregrinación patriótica al sitio del Manzano (Tunuyán), donde se levantaría el monumento “Retorno a la patria”, comisionado al escultor Luis Perlotti.
12 La ocasión fue propicia para reflotar las gestiones en vistas de concretar un paso a Chile por el Portillo, idea que había concebido el doctor Antonio Scaravelli en 1934. El mismo Scaravelli enarboló la causa de la construcción del monumento en el Manzano, presidiendo la Comisión Pro Monumento y participando en todos los actos previos a la inauguración (según hemos relevado en las fuentes, por lo menos desde 1940), con encendidos discursos cargados de alegorías patrióticas. En 1950, aprovechó la peregrinación de febrero para insistir sobre la ruta por el Portillo que, además de paso internacional al vecino país, se instituía como itinerario turístico por la belleza del paisaje montañés (Discurso del Dr. Antonio J. Scaravelli, 1950, s. p.).
13 Debe aclararse que, en favor de esta reconfiguración simbólica basada en actos oficiales y reuniones con autoridades y representantes gremiales locales, hubo múltiples oportunidades para dar gestos que dieran cuenta de los cambios que impulsaba el gobierno. Perón y su mujer, Eva, visitaron Mendoza en 1947, 1949 y 1950, Eva lo hizo en 1948 y el presidente volvió en ocasión de inaugurarse la villa de Las Cuevas, en 1953.
14 La FEP fue creada el 19 de junio de 1948 y se le otorgó personería jurídica por el Decreto 20564/48, según expediente 8575/48 de la Inspección General de Justicia. A su función de orden público e interés nacional se le sumó el fomento del turismo social que desarrollara el Instituto Nacional de Remuneraciones (Ley 13992/50). La Fundación relevó en su papel al ejecutado durante décadas por la Sociedad de Damas de Beneficencia. La acción de la FEP estuvo estrechamente vinculada al Poder Ejecutivo Nacional a través de una alta participación de funcionarios, personal y equipamiento estatal, desarrollando una función de orden público e interés nacional y persiguiendo los fines de ayudar en dinero o en especies, proveer elementos de trabajo, conceder becas de estudios universitarios y especializados, construir viviendas y establecimientos educacionales, hospitalarios, recreativos o de descanso, y beneficios de toda índole para los sectores sociales más necesitados. Fallecida su primera presidenta, Eva Duarte, en 1952, se reorganizó su estructura y modificaron los procedimientos administrativos, pasando a denominarse Instituto Nacional de Asistencia Social (Haro, s. f., párr. 1).
15 Sobre las características de la construcción de esta villa y la acción de la FEP en Mendoza, sugerimos ver Raffa (2018).
16 Respecto de las tarifas del traslado en avión, encontramos que se trataba de un costo privativo, solo para determinados bolsillos: el viaje ida-vuelta de Buenos Aires a Mendoza costaba aproximadamente lo mismo ($ 955 m/n) que la excursión completa de diez días con traslado incluido descrita.
17 Tomando algunos valores referenciales, hemos encontrado que el salario de un peón rural en 1954 ascendía a $ 627 m/n; el de un maestro amasador panadero a $ 946 m/n; el de un empleado de comercio con diez años de antigüedad a $ 900 m/n; el de un oficial mecánico a $ 1059,75 m/n; el de un oficial de la construcción a $ 1078 m/n, y para una maestra de grado, un agente de policía o un enfermero la remuneración correspondía a $ 750 m/n (la estadística incluyó solo el jornal básico sin cargas sociales, ni aportes jubilatorios u horas extras) (Gobierno de Mendoza, 1956, pp. 27-35).
18 Nos referimos a los equipamientos y hoteles turísticos construidos en Penitentes (en el Corredor Andino) y en Las Leñas (departamento de Malargüe), avanzada la década de 1970 y, con mayor intensidad, a partir de 1980. Sugerimos revisar al respecto Raffa (2017 y 2019).
19 Sobre las particularidades del funcionamiento interno de la FEP y la mayor injerencia de los cuerpos técnicos del Estado Nacional, ocurrida a partir de la reorganización de la Fundación, luego de la muerte de Eva Perón, sugerimos revisar Ballent (2005).
20 Luis María Bianchi había proyectado el pabellón junto con el arquitecto Roberto Quiroz, desde la DNA (Bianchi, 2022b).