ESTADO Y DESARROLLO
EN LATINOAMÉRICA
Repetición y modulación
en la arquitectura moderna peruana
Las torres de San Felipe y la vivienda
social en altura
Repetition and modulation in modern
Peruvian architecture
The San Felipe Towers and High-Rise
Social Housing
Margareth Guadalupe ChAvez Cutti
Facultad de Arquitectura, Universidad de Lima,
Lima, Perú
0000-0001-6612-0572
Recibido: 28 de marzo del 2022
Aprobado: 16 de octubre del 2022
doi: https://doi.org/10.26439/limaq2023.n011.5833
A mediados de 1960, la presencia de arquitectos en oficinas del Estado ayudó a crear políticas de vivienda social para hacer frente a los problemas urbanos y a las precarias condiciones de vida de muchas personas, evidenciadas en el censo de 1940. La primera etapa de la Residencial San Felipe, diseñada por Enrique Ciriani, introdujo la tipología de torre, dando inicio a una nueva concepción de vivienda en altura.
El presente artículo tiene como objetivo evidenciar la metodología proyectual racionalista basada en los principios de abstracción en las torres de San Felipe, así como los mecanismos de reproductibilidad y modulación, siendo Le Corbusier su mayor influencia. Para ello se realiza un estudio formal y analítico basado en la descomposición del edificio mediante procesos secuenciales. Los resultados evidencian que el criterio abstracto y racionalista de la composición propone una obra de arte total, en donde espacio, construcción, detalles y economía son los elementos basilares del diseño.
Lima, modulación, Enrique Ciriani, repetición, San Felipe, vivienda social
In the mid-1960s, the presence of architects in government offices helped create social housing policies to address the urban issues and precarious living conditions that were evidenced by the 1940 census. The first section of Residencial San Felipe, designed by Enrique Ciriani, introduced the tower typology, giving way to a new conception in high-rise housing.
This article aims to showcase the rationalist design methodology behind the San Felipe Towers, based on the principle of abstraction, as well as its mechanisms of reproducibility and modulation, with Le Corbusier as its main influence. To this end, we conduct a formal and analytic study based on a breakdown of the building by means of sequential procedures. The results show that the abstract and rationalist criteria of the composition vouches for a total art work in which space, construction, details and economy are its basilar design elements.
Lima, modulation, Enrique Ciriani, repetition, San Felipe, social housing
Este es un artículo de acceso abierto, distribuido bajo los términos de la licencia Creative Commons Attribution 4.0 International (CC BY 4.0).
Introducción1
Durante la segunda mitad del siglo xix e inicios del xx, el proceso de reproductibilidad en el arte fue cambiando hasta que, con la Revolución industrial, se reemplazaron los procesos manuales por los procesos guiados por la máquina. La producción masiva desvinculó el valor auténtico del objeto de arte de la tradición, convirtiéndose en una pieza genérica (Benjamin, 1989). De la misma manera, el proceso de repetición que los artistas clásicos solían realizar a través de la mímesis cambió completamente cuando los artistas modernos introdujeron una nueva forma de entender el arte. Si los primeros representaban la realidad tal cual se observaba bajo las normas estéticas establecidas por la academia, a principios del siglo xx, los artistas modernos rechazaron esta aproximación y consideraron que el arte debía expresarse como un objeto de discusión y no de copia. Esta búsqueda de la libertad trajo consigo el surgimiento de nuevas corrientes artísticas que se convirtieron en vanguardias.
En ese sentido, la reproductibilidad técnica y el método de abstracción se observan integrados en las obras de arquitectos como Le Corbusier. Él incorpora la técnica industrial como parte de sus métodos para crear arquitectura, en respuesta a la necesidad de construir viviendas económicas en masa para reconstruir las ciudades devastadas por la Gran Guerra (De Stefani, 2009). Así, Le Corbusier realizó su ponencia en el segundo CIAM explicando que la vivienda necesita un esqueleto independiente del cerramiento, tomando como referencia los cinco puntos de la arquitectura moderna (Mumford, 2007). Esta descomposición permitió la homogenización y estandarización de la vivienda, con apoyo de la tecnología. Como resultado, se obtuvo un prototipo básico de la vivienda con medidas estandarizadas que, al repetirse, forman una estructura compleja y de grandes dimensiones. De esta manera, la arquitectura pasó a ser entendida como un producto (De Stefani, 2009).
Por otro lado, la situación en el Perú era desfavorable en la primera mitad del siglo xx. El censo publicado en 1940 reflejó las condiciones en las que vivían los migrantes que llegaron a la capital en busca de progreso, como consecuencia de la precaria “industrialización” focalizada en Lima (Kahatt, 2019). Frente a esta situación, Fernando Belaunde fomentó la construcción de vivienda social a través de las políticas públicas que lideró, con la creación de la Corporación Nacional de Viviendas. En esos años, se edificaron importantes unidades vecinales que en su mayoría alcanzan los cinco pisos, siendo las torres de San Felipe el primer proyecto de vivienda social estatal que se construye en altura para la clase media en 1964 (Kahatt, 2019). La vivienda se densifica y se ofrecen extensas áreas verdes a los habitantes. Enrique Ciriani diseña “la propuesta más audaz y contundente que representa las aspiraciones del Perú moderno” (Kahatt, 2012, p. 74), abriendo paso a la vivienda vertical en el país.
En cuanto a la composición de las torres, el diseño de la unidad de vivienda parte de una forma básica de cuadrado. Se busca una relación visual desde los cuatro frentes de la torre. Para ello, se plantea una estructura que se ubica en el centro del espacio que soportará los volados de 3,40 m hacia los cuatro sentidos (Palomino Medina, 2009). La estructura en forma de “H” se independiza para generar la “fachada libre” con ventanas corridas en todos los lados. Así, se considera el ingreso de luz y la ventilación natural en las áreas sociales, íntimas y de servicio.
Con una estructura de concreto compuesta por elementos básicos y esenciales, se genera una espacialidad fluida, donde los espacios se conectan entre sí y convergen en el vestíbulo. Este espacio funciona como núcleo de distribución principal, que se conecta directamente con todas las áreas de los departamentos. El prototipo se repite cuatro veces en planta, siguiendo la misma idea de la composición para formar la planta típica de la torre. La circulación horizontal se plantea con un vestíbulo que sirve como núcleo central de distribución y estructurado con las placas de concreto de los dos ascensores. El vestíbulo se conecta a la vez con las escaleras principales y de servicio para ingresar a los departamentos. De la misma manera, la tipología de torre se reproduce para plantear cuatro edificios iguales en cada esquina de un área cuadrada, formando el ágora en el primer nivel.
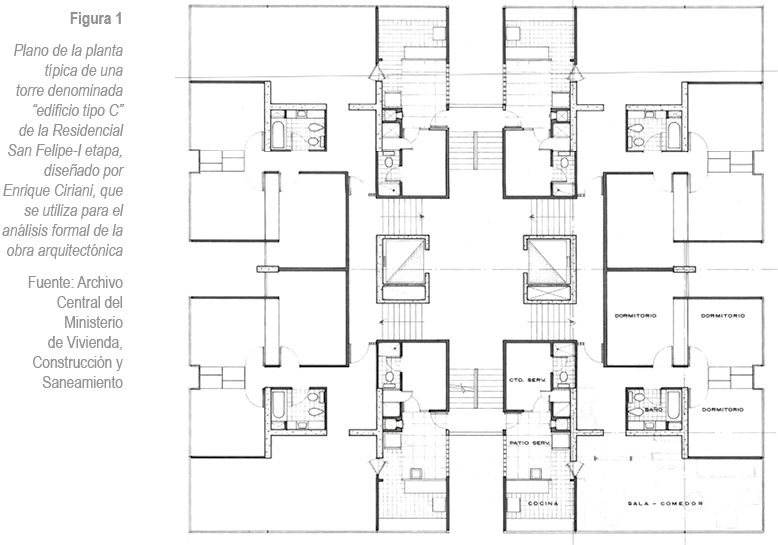
Sobre la base de la descripción general de las torres de San Felipe, el artículo analiza la configuración de la forma desde la escala urbana hasta la descomposición del edificio. El primer análisis se enfoca en la configuración de la forma urbana a partir de una comparación entre San Felipe y la Ciudad Radiante. En segundo lugar, se analiza la forma de la torre basándose en la metodología que Peter Eisenman propone en su libro The Formal Basis of Modern Architecture. A partir del plano de la planta típica de la torre (véase la Figura 1), se evidenciará la transformación de la forma de manera secuencial hasta llegar al resultado, en un cuadro de doble entrada. Para ello se utilizarán los elementos primarios de la arquitectura: línea (L), plano (P) y volumen (V), ordenados en columnas, mientras que las filas se organizan a partir de ejes, estructura, núcleos de circulación y contorno. El análisis finaliza con la descomposición de la torre desde la modulación, mediante la catalogación de los elementos que componen el sistema estructural, tabiquería y carpintería.
Además del análisis formal, el objetivo es evidenciar la metodología proyectual racionalista con influencia corbuseana que integra los mecanismos de reproductibilidad y modulación para construir un proyecto de vivienda estandarizada y en masa que logra un equilibrio con la calidad espacial de la unidad de vivienda.

La vivienda social en el Perú
La Residencial San Felipe formó parte de un complejo “proyecto de desarrollo” (Kahatt, 2019, p. 50), entre los años 1920 a 1970, periodo en el que los gobiernos buscaron alcanzar el progreso y bienestar de la sociedad. Después de conocer los resultados del censo de 1940, que evidenció el déficit de vivienda, la preocupación del Estado se enfocó en la construcción de vivienda social para mejorar las condiciones de habitabilidad de la población. Así, entre las décadas de 1950 y 1960 se llevaron a cabo políticas públicas de vivienda impulsadas por el arquitecto y político Fernando Belaunde Terry, primero en su papel de diputado y luego como presidente del país. Belaunde gestionó el proyecto de vivienda social mediante la implementación de un sistema político, legal y financiero, por lo que se crearon diferentes instituciones públicas donde se vincularon el trabajo del arquitecto, el Estado y la academia con una sola aspiración: el progreso de todos. De esta manera, la modernidad en el Perú nació como un proyecto político (Kahatt, 2019).
Inicio de las políticas públicas de vivienda
Desde la década de 1920 se empezó a vislumbrar una “ciudad moderna capitalista y especulativa”, la cual ha sido considerada también como una “incipiente modernización” (Kahatt, 2019, p. 57). Lima sufrió grandes transformaciones urbanas en una época en que la industria era aún precaria. La ciudad pasó de ser compacta a ser dispersa, en la periferia surgieron nuevos barrios residenciales y se construyeron las primeras vías, como las avenidas Arequipa y Venezuela. De la misma manera, Lima sufrió transformaciones demográficas. Se suscitó una concentración urbana en el centro histórico que generó un hacinamiento (Haymes-López & Peláez-Cruz-del-Castillo, 2017). Según una investigación del doctor León García, el 77 % de los habitantes de Lima vivía “mal alojado” para comienzos del siglo xx (citado en Ludeña, 2002, p. 52).
En aquello años, se desarrollaron obras de gran envergadura que mostraron las ansias de progreso. Sin embargo, la ciudad capital aún no había resuelto los serios problemas de hacinamiento e insalubridad que mantenía desde el siglo xix. De modo que, para mediados del siglo xx, el Estado buscó introducir el “proyecto moderno” al país sin haber resuelto las urgencias de la época, en un contexto desfavorable tanto política como económicamente (Kahatt, 2019).
En este contexto, se manifestó por primera vez la preocupación por ofrecer vivienda de calidad con la promulgación de la ley para construir barrios obreros y fiscales a cargo de la Comisión Nacional de la Vivienda (CNAV) durante el segundo gobierno de Óscar Benavides (1933-1939). Esta nueva tipología, influenciada por las Siedlungen en Alemania, desarrolla el concepto de “vivienda mínima” con un diseño de volúmenes racionalistas, introduciendo así la vivienda colectiva en la arquitectura moderna peruana (Kahatt, 2019, p. 59). Dicha experiencia servirá para formular el “Plan de Vivienda” como parte de las políticas públicas en las siguientes décadas.
La vivienda social del Estado: la unidad vecinal
El censo de 1940, realizado después del terremoto en Lima y Callao, evidenció los graves problemas de vivienda, saneamiento, espacios públicos y medios de transporte en la capital (Kahatt, 2019). Según este censo, la población de Lima y Callao pasó de 129 000 habitantes en 1876 a 595 000 habitantes en 1940; por otro lado, mientras que la población urbana aumentó 4,6 veces, la nacional lo hizo 2,3 veces en ese mismo periodo de tiempo (Contreras, 1994, p. 10). El factor que produjo el fenómeno expansivo fue la migración interna, pues el 46 % de la población llegó de zonas rurales a la ciudad para establecerse ahí. Sin embargo, terminó viviendo en condiciones insalubres.
En este contexto es que la labor política de Fernando Belaunde fue relevante. Belaunde fundó la revista El Arquitecto Peruano (1937) para difundir los ideales del Movimiento Moderno, el Instituto de Urbanismo (1944) y el Departamento de Arquitectura en la Escuela Nacional de Ingenieros (1946). De este modo, la arquitectura y el urbanismo modernos se convirtieron en las nuevas disciplinas que ayudarían a solucionar los problemas de la nueva ciudad.
Belaunde consideró como eje central del proyecto moderno a la vivienda, siendo la unidad vecinal el hogar del hombre moderno. En ese sentido, concibió un proyecto de vivienda social integral conocido como el Plan de Vivienda, que presentó en su campaña política para su elección como diputado. El programa tenía como objetivo ofrecer vivienda de calidad y servicios a 25 000 habitantes que vivían en estructuras hacinadas del centro histórico de Lima (Kahatt, 2019, p. 102). Se tomaron como referencia algunos proyectos de vivienda social del extranjero, como los edificios en forma de barras de las Siedlungen en Alemania, el modelo de la ciudad-jardín y la teoría de las “neighborhood units” en Estados Unidos. La experiencia y teoría de países de Europa y Norteamérica fueron adaptadas al contexto peruano para crear el concepto de “unidad vecinal”, que se concibió como una unidad urbana residencial donde los habitantes pudiesen vivir de manera independiente de la ciudad, pues en la célula urbana se encuentran espacios comunales de carácter cívico, deportivo, educativo y administrativo (Caldas Torres, 2016).
El Plan de Vivienda de 1945 no solo contempló el diseño de la unidad vecinal, sino también “un sistema político, legal y financiero” (Kahatt, 2019, p. 109). Para efectuarlo, Belaunde formuló la legislación urbanística de 1946, que consistió en un conjunto de leyes fundamentadas en las cuatro funciones del urbanismo moderno: trabajo, habitación, circulación y recreo. Así se promulgó la ley mediante la cual se fundó la Corporación Nacional de Vivienda (CNV) bajo el liderazgo del diputado Fernando Belaunde en 1946. La oficina se encargó del diseño, construcción y gestión de las viviendas sociales para las clases popular y media (Huapaya Espinoza, 2014). La CNV tuvo un papel primordial en la construcción de vivienda social que duró desde 1946 hasta 1963, cuando se adscribió como parte de la Junta Nacional de la Vivienda (JNV). Con el plan de vivienda consolidado, en 1945 se construyó la primera unidad vecinal llamada Unidad Vecinal 3 (UV3, véase la Figura 2), la cual marca el inicio de la época de las unidades vecinales en el país.

Enrique Ciriani y el progreso desde la arquitectura
Como profesor y decano de la nueva Facultad de Arquitectura de la Universidad Nacional de Ingeniería, Belaunde transmitía a sus alumnos el interés de formular soluciones desde la práctica proyectual para contrarrestar el déficit de vivienda. Bajo las enseñanzas de antiguos miembros de la Agrupación Espacio, los jóvenes en formación entendieron el crecimiento expansivo de la ciudad como objeto de estudio, para el cual debían buscar soluciones eficientes para garantizar calidad de vida y progreso a la sociedad (Kahatt, 2019,
p. 70). Enrique Ciriani fue uno de los estudiantes que se formó bajo los ideales de la modernización, graduándose como arquitecto en 1960.
En aquella década, la población de Lima alcanzó los dos millones de habitantes, situación que agravó aún más el déficit de vivienda. En ese contexto, Ciriani fue uno de los arquitectos jóvenes a cargo de los complejos proyectos de vivienda social en el país. Después de participar en el proyecto de la Ciudad Satélite de Ventanilla con el Instituto de Vivienda (INVI), pasó a formar parte de la División de Proyectos de la JNV. El arquitecto propuso viviendas de cinco pisos para la segunda etapa de las unidades vecinales Mirones, Matute y Rímac (Kahatt, 2019). El primer nivel corresponde a un departamento flat y los siguientes niveles se configuran como dúplex. De esta manera, se duplica la densidad y se ofrece más espacio público a la ciudad. La circulación horizontal se configura como “calles aéreas” y la circulación vertical independiente se caracteriza por la composición escultórica (véase la Figura 3).

Fernando Belaunde asumió la presidencia del Perú en 1963 y decidió enfocarse en el proyecto de las unidades vecinales, con el fin de construir la ciudad moderna formal. Para concretarlo, la JNV funcionó como un instrumento para proyectar y construir. En sus oficinas trabajaron arquitectos jóvenes formados en la Facultad de Arquitectura de la UNI y el Instituto de Urbanismo.
Como presidente electo, Belaunde propuso la construcción de la Residencial San Felipe en el terreno baldío donde antes se ubicaba el Hipódromo de San Felipe para ofrecer vivienda a la clase media, que era su electorado. Javier Cayo, jefe de diseño de la JNV, asignó al arquitecto Enrique Ciriani el diseño de la primera versión de la Residencial San Felipe entre 1962 y 1964, la cual se construyó inmediatamente. La propuesta de Ciriani consiste en una megaestructura compuesta por cuatro torres con 268 viviendas, cuyos basamentos albergan locales comerciales, educativos y de servicios que se articulan mediante una alameda peatonal.
Por una cuestión de costos se construyó una parte de la propuesta, la cual se ubicó en el suroeste del terreno entre las avenidas Sánchez Carrión y Gregorio Escobedo (Kahatt, 2012). Esta construcción se convirtió en la primera etapa de la residencial.
Desde la década de 1920 se habían construido edificios de baja altura de concreto y para mediados de la década de 1960 se habían edificado unidades vecinales con cinco pisos de altura como máximo. En este contexto, con sus catorce pisos, las torres de San Felipe fueron un desafío y se convirtieron en el primer edificio de vivienda vertical en edificarse siguiendo las nuevas condiciones del reglamento que reguló el concreto de 140 kg/cm2 a 210 kg/cm2 (Palomino Medina, 2009, p. 46).
La solución estructural para lograr el volado de más de 3 m hacia los cuatro lados de la torre y alcanzar los catorce pisos fue innovadora para la época. Consistió en placas de concreto en forma de “H”, lo que permitió liberar la estructura del plano y notarse más esbelto. Asimismo, se propusieron losas de 0,35 m de espesor en los entrepisos y aprovechar los alfeizares de las ventanas de los cuatro frentes como vigas peraltadas y vigas collarín perimetrales (Palomino Medina, 2009, p. 156). Para abaratar los costos de la construcción se diseñaron las paradas del ascensor cada dos pisos. Si bien por un lado se incrementó la circulación, se generó un vestíbulo de doble altura que también funciona como una pequeña plaza de encuentro con diferentes vistas hacia el exterior. Dichas estrategias en el diseño proyectual y la tecnología permitieron multiplicar la densidad. La primera etapa de la Residencial San Felipe alcanzó un área construida de 6360 m2 sobre el extenso terreno de 220 000 m2.
El diseño de las torres permite crear una “experiencia monumental” donde las torres protegen al ser humano, logrando transcurrir de la escala urbana a la escala peatonal (véase la Figura 4), que busca representar la voluntad de crear un “nuevo orden en la ciudad y la sociedad” (Kahatt, 2019, p. 394).

La metodología proyectual corbuseana en la obra
de Ciriani
Según Montaner (2014), la arquitectura del Movimiento Moderno tendrá como referencia inicial la filosofía de Descartes. Así, la arquitectura se desarrolla sobre la base de la razón, “aquella que se basa en la distinción y clasificación, utilizando procesos lógicos y matemáticos que tienden a la abstracción” (p. 58). Es así como la arquitectura de inicios del siglo xx es resultado de la convergencia de la metodología de Descartes y los avances científicos del siglo xviii. A partir de los métodos reductivos, la metodología proyectual en la arquitectura se desarrolla sobre la base de la abstracción y el racionalismo. Mientras que el mecanismo de la abstracción genera geometrías elementales, el racionalista se inspira en el ensamblaje de la máquina para crear megaestructuras (Montaner, 2002).
La abstracción en la arquitectura de Ciriani
Con la consolidación de la abstracción nacen diversas vanguardias del arte moderno, como el cubismo, que busca representar la esencia de la realidad a partir de su descomposición para alcanzar los elementos esenciales (Rovira, 1999). Sin embargo, la nueva experimentación en el arte dejará relegado a los objetos, debido a que se enfoca más en la relación que existe entre el tiempo, espacio y descomposición de la superficie bidimensional. A partir de dicha crítica, el purismo deriva del cubismo para resurgir la geometría como organizadora de la realidad (Espinosa, 1990, p. 176). La pintura La chimenea muestra el ejercicio plástico del objeto (véase la Figura 5), que Le Corbusier introduce en la teoría arquitectónica. Así, genera un lenguaje entre el trazo regulador de la forma y lo abstracto, un dualismo que consiste en la “interacción de orden pragmático (función) y orden ideal (forma pura)” (Colquhoun, 1991, p. 141). Con la premisa establecida, Le Corbusier establece los cinco puntos de la arquitectura del Movimiento Moderno basados en la descomposición del objeto arquitectónico en volumen, superficie y planta, con el fin de aislar el objeto en su máxima expresión.

Dichas premisas se muestran en el trabajo proyectual de Enrique Ciriani en las torres de San Felipe. La obra arquitectónica de Ciriani se basa en tres pilares que nacen de la teoría de Le Corbusier: la estructura liberada, el equilibrio del lleno-vacío y la incorporación del tiempo en la arquitectura (Ciriani, 2014).
En primer lugar, el objeto arquitectónico se libera de los límites que fija la estructura para seguir la espacialidad de acuerdo con las necesidades utilitarias que exige el programa. De esta manera, la solución estructural de las torres de San Felipe permite que este funcione como un esqueleto independiente para generar la espacialidad fluida entre los ambientes sociales, de servicio e íntimos de la unidad de vivienda. De la misma manera, el primer piso se integra al espacio público a partir de una planta libre y hacia el exterior, se genera la fachada continua con ventanas extensas que recorren los cuatro lados de la torre (véase la Figura 6).

El equilibrio del lleno y vacío se observa en la escala urbana y arquitectónica. La densificación de las cuatro torres en las esquinas de la cuadrícula permite formar una configuración de masas y en el centro un vacío que representa una plaza limpia. Hacia afuera de la cuadrícula, se genera un equilibrio de vacíos que representan los volúmenes de menor altura de cuatro y dos pisos. De la misma manera, en la escala arquitectónica se observa el equilibrio que hay entre la zona privada y la zona común. El área ocupada de las unidades de vivienda se encuentra en las esquinas de la torre, permitiendo generar en el centro un espacio abierto de encuentro social y de libre tránsito (véase la Figura 7).

Por último, la obra muestra la introducción del tiempo en la arquitectura mediante las calles aéreas. Como característica principal se diseña una alameda aérea que conecta las cuatro torres y permite pasar de una escala urbana a una escala peatonal (véase la Figura 8). El paseo aéreo se convierte en un umbral entre el espacio público de la ciudad y el espacio privado correspondiente a las viviendas de escala vecinal, por lo que también funciona como una estrategia interescalar (Kahatt, 2012).

De la vivienda mínima a la megaestructura
En la arquitectura del Movimiento Moderno, el racionalismo se evidenciará en el funcionalismo de la obra arquitectónica. La metodología racionalista, inspirada en el ensamblaje de la máquina, ayudará a diseñar formas precisas y repetitivas con el fin de lograr la industrialización de viviendas para reproducir en serie y a bajo precio. Así se entiende el edificio como una máquina, compuesta por sistemas de estructuras, tabiques y carpintería cuyos elementos tienen medidas estandarizadas. Siguiendo la lógica de Descartes de la descomposición, Le Corbusier desarrolla prototipos, como la casa Domino y la casa Citrohan, para construir su proyecto más ambicioso: la Unidad Habitacional de Marsella, un “edificio-ciudad” que se convierte en pieza clave para diseñar la Ciudad Radiante (Montaner, 2002, p. 88).
Con los mismos principios, Le Corbusier utiliza el zoning como un mecanismo para fragmentar la ciudad en partes que se traten de manera genérica. Al igual que en la vivienda, se siguen las premisas del racionalismo para descomponer la ciudad en áreas monofuncionales compuestas por las áreas esenciales de la ciudad moderna (vivienda, trabajo, esparcimiento y circulación). Entonces, la ciudad funciona como un aparato productivo conectado por la circulación que, para ordenarlo, se descompone en estructuras formales según las funciones.
Con los mismos principios, la metodología racionalista también se evidencia en la configuración urbana del conjunto San Felipe. En el primer nivel se encuentra el equipamiento barrial, como servicios comerciales, educativos y básicos, mientras que en los pisos superiores se ubica la vivienda residencial. Hacia el exterior se extiende una alfombra verde que funciona como un espacio público. La circulación se organiza mediante calles aéreas peatonales que conectan las viviendas con el equipamiento barrial del primer nivel (véase la Figura 9). De esta manera, San Felipe se convierte en un organismo semiautónomo compuesto por las áreas esenciales de la ciudad moderna, como la vivienda, esparcimiento y circulación. La Residencial San Felipe logra converger las funciones de la ciudad en una misma estructura que se convierte en parte del paisaje urbano y máxima representación de la vida colectiva que genera identidad (Maki, 1964).

La metodología racionalista también se evidencia en los planos de la torre, la cual se forma por la repetición de la unidad de habitación. Con la fachada y planta libre, la estructura en forma de H se ubica en el centro de la unidad de vivienda con medidas exactas para no ocupar más de lo necesario. A partir de los ejes de la estructura, la circulación ordena los espacios de la vivienda. Como se observa en la Figura 10, hay una circulación principal que articula los espacios para descanso, aseo y socialización, mientras que la circulación secundaria tiene un ingreso directamente hacia la zona de alimento que se articula con el núcleo de servicios y zona de aseo.

La unidad de vivienda ha sido diseñada con precisión para generar una espacialidad flexible. Se tienen los elementos determinantes que se requieren para la funcionalidad de la estructura, tabiques y circulación. A partir de ellos se generan espacios indeterminados, como la zona social y el núcleo de circulación. De tal manera, el diseño de la célula de vivienda no solo responde a la funcionalidad, sino también a la habitabilidad del hombre que se transforma constantemente en el transcurso del tiempo, como Candilis, Josic y Woods (1959) manifiestan en su “Proposición para una vivienda evolutiva” (citado en Coll López, 2018, p. 65).
Según la actividad doméstica, se utilizan los elementos estructurales, tabiquerías y carpintería con medidas estandarizadas. Así, la tabiquería se considera como “membranas delgadas” aisladas que limitan la superficie necesaria para la actividad; por tanto, no tienen ninguna relación con los muros portantes (Le Corbusier & Jeanneret, 1973). De esta manera, los muros son tabiques de diferente espesor que definen los espacios sociales, íntimos y de servicio, permitiendo el ingreso de luz y la ventilación natural. En cuanto al equipamiento interno de la vivienda, el clóset está diseñado con una estructura estándar ajustada a la escala humana y se ubica entre los dormitorios.
Análisis formal de San Felipe
Análisis de la modulación desde la escala urbana
Para Le Corbusier, la Ciudad Radiante representa la ciudad ideal moderna, la cual debe mejorar las condiciones de habitabilidad a través de la densificación de las viviendas, un sistema de transporte eficiente y la protección del medio ambiente para el esparcimiento de la población. Por ello, Le Corbusier considera que debe diseñarse desde el principio sin tomar en cuenta el contexto. Así, la ciudad histórica debe derrumbarse para construir una nueva (Monteys, 1996). De esta manera, él proyecta la Ciudad Radiante en un terreno vacío. La configuración de la Ciudad Radiante nace de dos ejes axiales. A partir de esta configuración axial, se genera una franja vertical que funciona como columna vertebral del proyecto, el cual se conecta con todas las áreas de la ciudad. Remata hacia el norte con el área financiera compuesta por catorce rascacielos y hacia el sur con el área de industria y manufactura. Asimismo, se define una gran franja horizontal, que al intersecarse con la franja vertical da lugar a la zona destinada a instituciones cívicas. Hacia los dos extremos se encuentra el área residencial. Sobre esta, se sobrepone otro trazado para definir vías y las manzanas que albergan los bloques de edificación. Destaca que todas las edificaciones cuentan con un primer piso de libre tránsito, buscando que la ciudad sea accesible para el peatón. De esta forma se entiende a toda la ciudad como un jardín (véase la Figura 11).

De igual manera, hay una configuración urbanística con los mismos principios en la Residencial San Felipe, pero en una escala menor. A diferencia del proyecto urbanístico de la Ciudad Radiante, San Felipe es un conjunto residencial con equipamientos de escala barrial.
Como Le Corbusier, Ciriani decide aplicar la tabula rasa. El arquitecto se encuentra con un “terreno ideal”, es decir, un terreno sin ninguna edificación existente para comenzar a proyectar. Así, Ciriani empieza a diseñar el proyecto residencial de manera autónoma e independiente de la ciudad. No toma en cuenta ninguna fuerza externa de su entorno, a pesar de ubicarse en el cruce de dos avenidas de flujo intenso en un distrito céntrico de Lima.
Al igual que en la Ciudad Radiante, la configuración espacial parte de dos ejes axiales. En la intersección de ambos ejes se traza un cuadrado, definiendo de esta manera el lugar para proyectar la edificación residencial, el cual es dividido por dos líneas verticales y dos horizontales para armar una cuadrícula. El cuadrante central, ubicado en el origen de los ejes axiales, funcionará como una plaza denominada “ágora”, mientras que las esquinas serán destinadas a albergar las torres residenciales (véase la Figura 12).
Las torres de catorce pisos de altura tienen una relación visual y espacial directa con el ágora, mientras que hacia el exterior se plantean viviendas de escala menor, que se configuran a partir de los dos ejes axiales principales. Estas viviendas definen cuatro franjas, las cuales se ubican entre cada torre, formándose una planta en cruz griega. Cada franja de vivienda está compuesta por cuatro viviendas de cuatro pisos y un bloque de viviendas unifamiliares de dos pisos.

Además de proponer la planta libre en el primer piso con la intención de separar físicamente el objeto arquitectónico del lugar, los grupos de viviendas constituyen una especie de basamento de las cuatro torres que refuerza más la intención (véase la Figura 13). La desvinculación de las torres con el contexto prioriza la importancia de la forma de la obra arquitectónica, por lo que es fundamental entender la relación del edificio consigo mismo. Asimismo, la integración de la arquitectura y urbanismo en el mismo objeto es resaltada por la legibilidad de la forma que deja al descubierto la estructura básica y que exhibe la materialidad de la edificación, logrando las cualidades del brutalismo (Banham, 2010).

Análisis de la forma de la torre
La torre parte del cuadrado, una forma pura y simétrica que representa el racionalismo. Por lo tanto, tiene una configuración central, es decir, conserva el equilibrio entre sus fuerzas internas. La Figura 14 muestra el proceso de transformación de un cubo que aumenta en altura, para convertirse en una torre. Este elemento vertical busca asentar un punto particular en el espacio para destacarse y determinar un campo espacial a partir de varios elementos verticales (Ching, 2002).

Entendiendo la forma pura de la cual surge la torre, se seguirá con el análisis de la forma en el cuadro de doble entrada. En la Figura 15 se puede observar que la torre parte de una configuración central, es decir que su forma se genera a partir de dos ejes axiales. Estos ejes axiales conforman planos que se intersecan y dividen la volumetría en cuatro volúmenes iguales y simétricos.

La estructura se define a partir de los ejes axiales. En la isometría representada por líneas se observa que se trazan dos líneas paralelas en un sentido y cuatro líneas paralelas en otro sentido. A partir de las intersecciones de las líneas, en la representación de planos, se define mejor las cuatro estructuras principales ubicadas una en cada cuadrante y la estructura del ascensor en el centro. En la volumetría, se representa el espesor y la rigidez de las columnas en forma de H. Cada estructura se ubica de manera céntrica, dejando 3,40 m de volado hacia los frentes (Palomino Medina, 2009). Asimismo, se sustrae el volumen que corresponde a los dos primeros niveles. De esta forma, el volumen se eleva y la estructura queda al descubierto (véase la Figura 16).

A partir de la estructura definida, se organiza la circulación. En la intersección de los ejes axiales se determina el vestíbulo. En planos, se define la forma del ascensor y el espacio que corresponde a las escaleras. En la volumetría, se puede entender que el vestíbulo funciona como un núcleo de distribución de la circulación horizontal hacia los departamentos y que las escaleras se encuentran opuestas, una al frente de la otra. La circulación vertical se relaciona con todos los niveles. Asimismo, el ascensor tiene las paradas cada dos pisos, ya que cada hall se diseñó para ocupar doble altura. De esta manera, las escaleras son las circulaciones verticales que se conectan directamente con la puerta de ingreso de cada departamento (véase la Figura 17).

En cuanto al contorno exterior, se observa que hay una fachada compuesta por líneas que siguen dos ritmos diferentes, que coinciden en alineación con los ejes de muros principales. Estas líneas unidas forman los planos rectangulares que representan a las ventanas que son totalmente continuas en los cuatro frentes. La carpintería de las ventanas se ubica hacia el exterior, por tanto, se configura una fachada libre (véase la Figura 18).

Finalmente, se puede llegar a la forma específica, como un producto de una configuración geométrica y sistemática. La Figura 19 resume la configuración desde la forma básica y pura hasta la forma específica, donde se observa el cuadro de doble entrada finalmente completo. La figura final con la nomenclatura “LPV” es la edificación completa de la torre.

Análisis de la torre desde la modulación
Continuando con el análisis de la forma, se realizará el análisis en términos más concretos para entender la repetición y la reproducción de los elementos modulados que componen la torre internamente. La torre se descompone a partir de los siguientes elementos: estructura, tabiquería y carpintería, como se observa en la Figura 20.

En el conjunto de estructuras, las placas en forma de H, la caja de ascensores y las dos columnas en el sentido del ascensor determinan la espacialidad de las unidades de vivienda. Las columnas “H” funcionan como ejes que configuran los espacios de la unidad de vivienda y definen la circulación. De la misma manera, los ascensores permiten definir el área común de las viviendas y la circulación vertical y horizontal (véase la Figura 21).

En la tabiquería se reconocen muros de dos espesores. Los tabiques de mayor espesor se ubican en la parte central de la torre, de manera que conforman los muros perimetrales de cada departamento. La ubicación de la tabiquería es definida por los ejes axiales de la forma del cuadrado, convirtiéndose en los ejes de ordenación de los espacios de la vivienda.
Los espacios que se forman a partir de la tabiquería con mayor espesor corresponden a los espacios destinados a ser dormitorios y la zona de servicio (lavandería, cocina, cuarto de servicio). En este último espacio se utiliza una celosía conformada por unidades de concreto para permitir el ingreso de la luz y generar una ventilación natural. Por otro lado, los tabiques de menor espesor sirven para separar la zona social (sala-comedor) de la zona de servicio. Asimismo, son utilizados para completar el cerramiento del ambiente de los servicios higiénicos y el dormitorio principal (véase la Figura 22).

Por último, se reconocen el clóset, las puertas, los marcos de madera y el panel de vidrio de la fachada como elementos del conjunto de carpintería. De estos elementos destaca el clóset por ubicarse entre los ambientes de los dormitorios. Se lo utiliza para separar dichos ambientes, en vez de utilizar tabiquería. Para la estructura del clóset se ha observado que se usan paneles de mayor espesor, mientras que los paneles de las puertas corresponden al de menor espesor. Asimismo, los marcos de las ventanas de la fachada y los paneles de cristal tienen un espesor estándar (véase la Figura 23).

A partir del reconocimiento de los tres conjuntos, se realiza un catálogo donde se agrupan los elementos según su dimensión y espesor. La categorización en cada conjunto servirá para identificar la cantidad de veces que cada elemento se repite según sus características en la planta típica de la torre.
Para el catálogo del conjunto estructura, se identifican los elementos que definen la espacialidad de los departamentos, es decir, las placas en forma de H, los dos ascensores y las columnas. En este conjunto, las placas de la estructura H se repiten doce veces, siendo el elemento que se repite más. En total se suman veintidós piezas (véase la Figura 24).

En la tabiquería se agrupan subconjuntos, según la altura de los muros. Así se obtiene un grupo de muros altos y otro de muros bajos, subgrupos en donde se ordenan por espesores. En los muros altos se observa que la tabiquería de menor espesor se repite más que la de mayor espesor. Asimismo, se ve que las dimensiones de cada uno de los muros tienen una longitud que crece gradualmente. Cuanto más extenso es el muro, este se repite menos, mientras que los muros más cortos se repiten más. En los muros de mayor espesor, se identifica que el más extenso sobrepasa los 8 m, mientras que en el subconjunto de menor espesor el muro no llega a los 5 m de largo. De esta manera, se contabilizan 26 elementos de muros altos con mayor espesor y 64 elementos con menor espesor.
Por otro lado, los muros bajos tienen una menor cantidad de elementos. En el caso de los muros con un espesor mayor, se tienen dos elementos, mientras que los de menor espesor alcanzan veinte elementos. Asimismo, se observa que los elementos tienen una mayor variación de longitud. Esta notoriedad se debe a que los muros corresponden a los muros perimetrales de la torre (véase la Figura 25).

La categoría de la carpintería está conformada por los paneles de los clósets, los marcos de las ventanas, las puertas y los paneles de vidrio. En el subconjunto del clóset se identifica también dos espesores, uno para la estructura y otro para las puertas. El diseño del clóset permite que los elementos se repitan dieciséis veces, ya que tienen medidas estándar.
Las puertas son los segundos elementos que se repiten, entre las cuales la puerta de 90 cm de ancho es la que se repite más veces y se utiliza como cerramiento de las habitaciones. En segundo lugar se encuentran las puertas de 80 cm de ancho, que corresponden a la puerta del baño y del ingreso de servicio. Finalmente, las puertas de menor dimensión se utilizan en las áreas de servicio.
Para determinar los elementos de los marcos de las ventanas y paneles de vidrio, se analizó la fachada. Se observa una fachada en la que las dimensiones de las ventanas son iguales, mientras que en la otra fachada hay un ritmo de ventanas que se genera por las diferentes dimensiones. Por eso son los elementos que más se repiten en toda la planta. La que alcanza mayor repetición son los marcos de un metro de ancho (véase la Figura 26).

Conclusión
El proyecto de Ciriani, además de ser una obra autentica en espacialidad que evidencia el orden geométrico de la arquitectura moderna, ha impactado positivamente en la trama urbana de la ciudad. El proyecto de la primera etapa ofrece la posibilidad de integrarse con los clústeres de la segunda y tercera etapas. Es decir, la metodología racionalista permitió que la configuración urbana sea completamente abierta. Por tanto, se configura una miniciudad que genera encuentros comunitarios dentro de otra ciudad como Lima, donde los espacios públicos son muy escasos. Además, se genera una nueva tipología de macromanzana que rompe con el diseño de edificios que se emplazan normalmente según la forma de la manzana.
En cuanto al objeto arquitectónico, se crea un edificio de vivienda que quiebra la base rígida de un volumen estático a partir de la abstracción. Se abstrae los elementos necesarios para generar los espacios con dimensiones precisas y se prioriza la forma por encima de todo. De esta manera, el edificio arquitectónico se convierte en una composición que articula el arte y la técnica industrial para diseñar completamente el edificio, desde su etapa conceptual hasta su construcción, considerando detalles constructivos y costos para facilitar la producción en serie.
No obstante, las torres de San Felipe, que pueden servir de ejemplo para la vivienda colectiva, no han atraído la atención que merecen de los proyectistas y autoridades del Estado. En las últimas décadas se han propuesto proyectos de vivienda social que se han concentrado en ofrecer solo la unidad habitativa. En la actualidad, el Estado ofrece a las familias de escasos recursos, mediante el programa Techo Propio, viviendas ordenadas en hileras sin ninguna calidad espacial y, mucho menos, espacios colectivos que permitan desarrollar una vida comunitaria. Por otro lado, los proyectos residenciales de las clases media y alta, como las manzanas enrejadas o los condominios con muros ciegos, son configuraciones cerradas que fragmentan la ciudad aún más. Frente a la compleja situación de la vivienda colectiva en general, el diseño de la vivienda en altura basado en la metodología racionalista y abstracta podría ser una solución para ayudar a reducir el déficit de vivienda social y ordenar la ciudad. Con el avance de la tecnología, se podría construir viviendas que sobrepasen los treinta pisos, donde la circulación vertical articule equipamientos, espacios públicos y vivienda en una sola torre. Se podría crear una nueva tipología de torre que genere una vida comunitaria. De esta manera, se podría aglutinar y densificar la vivienda como parte de unas estrategias urbanas que contribuyan a ordenar la ciudad a partir de la forma básica del cuadrado.
La Residencial San Felipe es una obra con una visión de progreso que muestra que el arquitecto no solo diseña un objeto arquitectónico, sino que también puede generar un impacto en la vida de las personas y, por tanto, en la ciudad.
Referencias
Archivo del Servicio Aerofotográfico Nacional (s.f.). [Fotografía aérea de la Unidad Vecinal 3]. Catálogo Arquitectura Movimiento Moderno Perú (CAMMP). http://cammp.ulima.edu.pe/
Banham, R. (2010, julio). The New Brutalism by Reyner Banham. The Architectural Review. https://www.architectural-review.com/archive/the-new-brutalism
-by-reyner-banham
Benjamin W. (1989). Discursos interrumpidos I. Taurus.
Caldas Torres, P. (2016). Transferencia de la idea urbana de ciudad-jardín y apropiación del modelo construido de la “unidad vecinal” en Lima. Revista INVI, 31(87), 87-113. https://revistainvi.uchile.cl/index.php/INVI/article/view/62730
Ching, F. D. K. (2002). Arquitectura. Forma, espacio y orden (13.ª ed.). Gustavo Gili
Ciriani, E. (2014). Todavía la arquitectura. Arcadia.
Coll López, J. (2018). Determinación vs indeterminación en el espacio doméstico. Los límites de la flexibilidad. Revista Rita, (10), 64-71. https://revistarita.com/wp-content/uploads/2022/06/rita_10.pdf
Colquhoun, A. (1991). Modernidad y tradición clásica. Editorial Júcar
Contreras, C. (1994). Sobre los orígenes de la explosión demográfica en el Perú: 1876-1940.Instituto de Estudios Peruanos. https://repositorio.iep.org.pe/bit
stream/handle/IEP/916/documentodetrabajo61.pdf?sequence
=2&isAllowed=y
De Stefani, P. (2009). Reflexiones sobre los conceptos de espacio y lugar en la arquitectura del siglo xx. Revista de Diseño Urbano y Paisaje, (16). http://dup.ucentral.cl/pdf/16_espacio_lugar.pdf
Espinosa, E. (1990). Reflexiones en torno a Le Corbusier, dibujante, pintor y escultor. Iniciador del purismo. Anales del Instituto de Investigaciones Estéticas, 16(61), 173-191. https://doi.org/10.22201/iie.18703062e.1990.61.1579
Haymes-López, F. V., & Peláez-Cruz-del-Castillo, E. F. (2017). La obra de Enace, el epílogo de la vivienda social construida por el Estado. Limaq, (003), 129-142. https://doi.org/10.26439/limaq2017.n003.1785
Huapaya Espinoza, J. C. (2014). Fernando Belaunde Terry y el ideario moderno: arquitectura y urbanismo en el Perú entre 1936 y 1968. Universidad Nacional de Ingeniería, Fondo Editorial
Kahatt, S. (2012). La Residencial San Felipe, 1964. Revista mas, (02), 72-81. https://www.laresidencialsanfelipe.com/descargas/contenido/3-residencial-san-felipe.pdf
Kahatt, S. (2019). Utopías construidas: las unidades vecinales de Lima. Pontificia Universidad Católica del Perú, Fondo Editorial.
Krutxaga, M. (1966). [Fotografía de la Residencial San Felipe-I etapa]. Catálogo Arquitectura Movimiento Moderno Perú (CAMMP). http://cammp.ulima.edu.pe/
Le Corbusier (1918). La Chimenea [Pintura]. Fundación Le Corbusier. http://www.fondationlecorbusier.fr/
Le Corbusier & Jeanneret P. (1973). Análisis de los elementos fundamentales en el problema de la vivienda mínima. En C. Aymonino (Ed.), La vivienda racional: Ponencias de los congresos CIAM 1929-1930 (pp.126-138). Gustavo Gili.
Ludeña W. (2002). Lima: poder, centro y centralidad. Del centro nativo al centro neoliberal. Revista eure, 28(83), 45-65. http://dx.doi.org/10.4067/S0250-71612002008300004
Maki, F. (1964). Investigations in Collective Form. Washington University School of Architecture. https://library.wustl.edu/wp-content/uploads/2015/04/maki-entire.pdf
Montaner, J. M. (2002). Las formas del siglo xx. Gustavo Gili.
Montaner, J. M. (2014). La modernidad superada. Gustavo Gili.
Monteys, X. (1996). La gran máquina: La ciudad en Le Corbusier. Ediciones del Serbal.
Mumford, E. (2007). El discurso del CIAM sobre el urbanismo, 1928-1960. Bitácora Urbano Territorial, 11(1), 96-115. https://www.redalyc.org/pdf/748/74811107.pdf
Palomino Medina, C. A. (2009). Henri Ciriani
1 El presente artículo está basado en el trabajo final del Seminario de Historia y Teoría de la Arquitectura de la Carrera de Arquitectura de la Universidad de Lima, dirigido por el profesor Octavio Montestruque Bisso durante el semestre 2020-1.