ACCESIBILIDAD universal
y diseño para todos
Experiencias académicas
y de internacionalización
por medios virtuales
Aula de Diseño Inclusivo de la FADA UNA
Academic and Internationalization
Experiences through Virtual Means
The FADA UNA
Inclusive Design Classroom
María Luisa Blanes
Universidad Nacional de Asunción
0000-0002-3041-3995
Recibido: 26 de agosto del 2021
Aprobado: 12 de diciembre del 2021
doi: https://doi.org/10.26439/limaq2022.n009.5386
La temática de la inclusión y la equiparación de oportunidades se aborda en el ámbito académico desde una materia libre, mediante la gestión y relacionamiento interinstitucional, incorporando la tecnología y los medios digitales para comunicarnos y fomentar conceptos de diseño inclusivo más allá de nuestras propias fronteras, con docentes externos invitados y la formación de equipos mixtos de aprendizaje por experiencias. El objetivo es implementar acciones que fortalezcan la inclusión y la igualdad de oportunidades hacia el diseño reflexivo del espacio para todos, la diversidad de miradas en propuestas de proyectos y productos adaptados con trascendencia social. La metodología se basa en el enfoque multidisciplinario y en aprender por experiencias compartidas, alto grado de participación del estudiante en la construcción del conocimiento y realización de proyectos comunes que benefician a personas e instituciones. Los resultados muestran respuestas accesibles, integración y compromiso con la comunidad desde lo académico, comunitario e interinstitucional, proponiendo proyectos urbano-arquitectónicos con criterios de accesibilidad y alcance social.
aprendizaje por experiencias, proyectos inclusivos, trascendencia social, tecnología y medios digitales
The issue of inclusion and equal opportunities in the academic field is addressed from the perspective of an elective subject, through the management and inter-institutional relations. We incorporated technology and digital media to communicate and promote inclusive design concepts beyond our borders and with invited external teachers and the formation of mixed experiential learning teams. The objective is to implement actions that strengthen inclusion and equal opportunities to design a space for all, the diversity of views in proposals for projects and products adapted with social significance. The methodology is based on a multidisciplinary approach and learning through shared experiences, a high degree of student participation in constructing knowledge, and joint projects that benefit people and institutions. The results show accessible responses, integration, and commitment to the community from the academic community, and inter-institutional, proposing urban-architectural projects with accessibility and social scope criteria.
inclusive projects, learning by experiences, social transcendence, technology and digital media
INTRODUCCIÓN1
Desde la materia de Diseño Inclusivo en la Facultad de Arquitectura, Diseño y Arte de la Universidad Nacional de Asunción (FADA UNA), se introduce al estudiante en el conocimiento del concepto de inclusión y la eliminación de barreras para los ámbitos urbano, arquitectónico, comunicacional y de transporte, mediante el aprendizaje por experiencias, que consiste en acercar al estudiante a situaciones reales y al conocimiento de las instituciones que colaboran en la incorporación efectiva de personas con discapacidad a las actividades cotidianas y laborales. A través de un enfoque práctico, se pueden realizar recorridos, entrevistas y evaluaciones físicas que conducen a la identificación, diagnóstico, evaluación y propuestas de proyectos inclusivos (desde el año 2010 a la fecha, 2021). Esto permite contar con registros de actividades de aula, trabajos de extensión y de participación en eventos académicos y comunitarios, en una diversidad de estrategias didácticas.
A partir del análisis de la situación de personas con discapacidad a nivel nacional e internacional, se han incorporado nuevas metodologías y tecnologías que contribuyen al logro del aprendizaje y fomentan el interés del estudiante por alcanzar los objetivos del diseño inclusivo. Actualmente, mediante el uso de medios y herramientas digitales, se han podido desarrollar actividades como seminarios de aula abierta inclusiva, masterclasses con docentes invitados y experiencias de movilidad e intercambio con otros equipos académicos, en una mirada más amplia e integradora de la realidad que nos vincula hacia el diseño para todos.
El objetivo principal, desde el inicio de las actividades académicas, fue proyectar la implementación de acciones dentro de la universidad que fortalezcan el acceso y la inclusión de personas con discapacidad, mediante la eliminación de barreras y la igualdad de oportunidades, así como la capacitación de profesionales para la creación de una sociedad más inclusiva. Se asumió desde un inicio que la accesibilidad pasa por el proyecto y diseño reflexivo desde el enfoque del espacio para todos y la trascendencia social.
El compromiso es lograr una incidencia social relevante en el ámbito académico a través de la implementación de proyectos urbanos arquitectónico-accesibles y un mayor vínculo con la comunidad y el ámbito social, de modo que se pueda hacer realidad la gestión del diseño inclusivo y el relacionamiento con instituciones, municipios y otros interesados en el desarrollo de este ámbito.
La metodología que se emplea se enmarca dentro de un enfoque multi-disciplinario. Se enfatiza en un aprendizaje por experiencias compartidas, implementación de relaciones interinstitucionales y un alto grado de participación del estudiante en la construcción del conocimiento. Esto permite la realización de proyectos comunes que benefician a personas con discapacidad e instituciones vinculadas. Para dar respuestas accesibles de integración y de compromiso con la comunidad, se cuenta con el apoyo tanto desde lo académico como desde lo social-comunitario, organismos públicos e instituciones privadas.
A partir de este vínculo academia-comunidad se formulan propuestas efectivas y realizables, con criterios de accesibilidad, para proyectos urbano-arquitectónicos de alcance social, además de productos adaptados y desarrollados por equipos mixtos integrados por estudiantes de las Carreras de Arquitectura y Diseño Industrial de la FADA UNA.
PROCESO DE GESTIÓN E IMPLEMENTACIÓN
Desde el segundo semestre del 2010 hasta la fecha, 2021, se ha incorporado la temática de la inclusión y la equiparación de oportunidades desde la iniciativa de la materia libre de Diseño Inclusivo de la FADA UNA. Para ello, se puso en marcha la estrategia de la gestión, la cooperación y el relacionamiento interinstitucional externo. Se llevaron a cabo actividades académicas de aula y de extensión, en las que se relacionaron equipos integrados de las Carreras de Arquitectura y Diseño Industrial, con la metodología del aprendizaje por experiencia y el desarrollo de proyectos y de productos adaptados para personas con discapacidad (Blanes, 2010-2021).
Hoy, consideramos haber logrado una incidencia social relevante de la accesibilidad universal en Paraguay, en el ámbito académico. Asimismo, se consiguió establecer el relacionamiento con la comunidad por medio de la gestión de diseño inclusivo con instituciones y municipios, como ocurrió con el diseño y gestión de políticas públicas para el Ministerio de Educación y Cultura (MEC) de Paraguay y el Ministerio de Salud Pública (Ortiz, 2014).
La propuesta ha sido pasar de un enfoque académico a un enfoque multidisciplinario e interdisciplinario, favorecido por el relacionamiento y la gestión, con un alto grado de participación del estudiante en la construcción del conocimiento y su acercamiento a situaciones reales de aprendizaje en casos concretos. En la actualidad, con la incorporación gradual de nuevas tecnologías y la utilización de multimedios y sistemas audiovisuales, se está logrando el afianzamiento de los conocimientos y una mejor comunicación de los resultados.
Se han implementado estrategias para el análisis de los distintos tipos de necesidades en escenarios reales y situaciones concretas para el aprendizaje teórico-práctico. El trabajo de aula se complementa con las visitas de campo para verificar cuáles son las condiciones del sitio que permiten el desarrollo de diseños arquitectónicos urbanísticos. Igualmente, en las visitas se establece una relación con la comunidad tanto para las propuestas en espacios públicos como privados. Así, en la FADA UNA se plantean proyectos y propuestas coordinadas al interior de la cátedra o con otras instituciones, gracias a las posibilidades de poder aplicar convenios interinstitucionales o internacionales a través de los programas de movilidad regional e internacional, así como de poder compartir los resultados en encuentros académicos, de investigación e innovación.
En particular, es conveniente considerar que el término inclusión propuesto no solo se refiere al diseño para situaciones especiales, sino que define, mediante nuestras actuaciones cotidianas, una respuesta única y viable, donde las personas con discapacidad son consideradas las protagonistas, ya que, con las adaptaciones necesarias, pueden utilizar los espacios y medios en los que desarrollan su actividad cotidiana.
El análisis y las propuestas de accesibilidad aplicadas a proyectos urbanos arquitectónicos generan un impacto directo e indirecto en la participación efectiva en núcleos de trabajo coordinados desde la cátedra y la propia dirección de Extensión, así como el favorecido relacionamiento interinstitucional que se propone desde el inicio. Esto permite el desarrollo e implementación del proyecto, la verificación de obras realizadas en casos concretos y el involucramiento de actores sociales, tanto del ámbito público como del privado, con la comunidad afectada.
Por lo que se ha comprobado hasta la fecha, lo importante no es solo el desarrollo o implementación de los proyectos a partir del diagnóstico integral realizado. También se debe verificar que la obra social tenga en cuenta que el beneficiario directo es la persona con discapacidad. En este sentido, es fundamental prever el seguimiento de los trabajos, tal y como lo permita el sistema de financiación y administración de los recursos. En la práctica, se pudo demostrar que la verificación de las obras se realiza mejor si se cuenta con un adecuado modelo de gestión multidisciplinaria, en el que se incluyen los equipos académicos con la participación efectiva de docentes y estudiantes.
Se incorpora la temática de la inclusión y la equiparación de oportunidades desde la iniciativa de una materia libre, el desarrollo coordinado de trabajos de extensión en materia de accesibilidad y la introducción de conceptos del diseño inclusivo en forma transversal a las materias curriculares de la carrera, inclusive guiar a los responsables de la institución en acciones encaminadas a incluir, con igualdad de oportunidades a todas las personas. (Blanes, 2011, p. 2)
El trabajo planteado en equipos de estudiantes y docentes constituye el ámbito propicio para la investigación y la experimentación, en el cual los conocimientos adquiridos permiten al estudiante acercarse a la comunidad, conocer las características y limitaciones de un entorno inaccesible, y aplicar criterios inclusivos en las propuestas de diseño con el apoyo de la cátedra de Diseño Inclusivo. Así, el estudiante verifica lo aprendido y aplicado, porque tiene la oportunidad del trabajo en equipo para dar respuesta a la situación social y física que se plantee.
Por tanto, con las acciones implementadas, seguimos en la línea definida en la propuesta didáctica inclusiva de la FADA UNA, que permite la aplicación de criterios de diseño inclusivo y de incidencia social relevante en el ámbito de la accesibilidad universal en Paraguay, con la gestión del diseño inclusivo y su implementación en relación con las políticas nacionales (Gobierno Nacional de Paraguay, 2014).
La formación teórico-práctica, basada en el diseño para todos, pretende concientizar, desde la etapa estudiantil, a los futuros arquitectos y diseñadores sobre la aplicación de criterios de inclusión. Para ello, se analizan proyectos y se desarrollan propuestas, además de fortalecer este trabajo con vínculos interinstitucionales y hacerlo extensible a las acciones de su vida profesional.
Por tanto, se cumple el objetivo establecido de analizar escenarios reales para las soluciones en situaciones concretas de aprendizaje práctico, lo que permite desarrollar diseños arquitectónicos, urbanísticos y de productos que posibilitan la inclusión de todas las personas en espacios públicos y privados. Por otra parte, se propicia la participación efectiva en núcleos de trabajo con acciones en el campo del diseño inclusivo, además de la implementación de clases interactivas y de reflexión sobre inclusión, participación y debate, desde las actividades generadas en el aula hasta las que se realizan con la comunidad.
Es posible comprobar a la fecha que desde la apertura de la cátedra se han realizado trabajos de extensión, pasantías con las instituciones relacionadas, aplicación efectiva de convenios y el desarrollo de futuros trabajos de investigación relacionados con la misma temática.
DESARROLLO SOBRE LA BASE DE ESTUDIO DE CASOS
Tema 1. Trabajo de extensión universitaria: mejoras en la escuela Virgen del Pilar en Capiatá, Paraguay (2014-2015)
La experiencia desarrollada desde la cátedra de Diseño Inclusivo de la FADA UNA en el 2014 permitió el acercamiento a una comunidad vulnerable ubicada en el límite entre dos municipios cercanos a la ciudad de Asunción: San Lorenzo y Capiatá. En este último, había que intervenir en la recuperación y la incorporación de propuestas accesibles para una escuela pública de bajos recursos, y, al mismo tiempo, plantear alguna propuesta que garantizara la seguridad de los propios estudiantes en la zona, que tiene una delicada situación social.
La iniciativa surgió de los trabajos de responsabilidad social de una empresa proveedora de alimentos básicos y de la Universidad Nacional de Asunción, con la participación de la cátedra de Diseño Inclusivo de la FADA UNA. Se plantearon los proyectos y trabajos de relevamiento de la situación real de la escuela Virgen del Pilar de Capiatá con el equipo académico, lo que condujo al desarrollo del proyecto ejecutivo y la posterior realización de las mejoras físicas a cargo de la empresa Nutrihuevos, que se encargó de la financiación de los trabajos hasta la entrega de todas las mejoras a la comunidad, en particular a la población de la escuela, que se vio beneficiada con la participación efectiva de niños con discapacidad como beneficiarios directos del trabajo realizado.
Situación previa
Se conformó un equipo académico con estudiantes de Diseño Inclusivo 2014 para el relevamiento de la situación, propuesta de un proyecto y desarrollo ejecutivo para su implementación. A continuación, se muestran imágenes y planos del proyecto accesible presentado para las mejoras en la escuela Virgen del Pilar en Capiatá, Paraguay, ejecutado el año 2014.


* Se han realizado varias presentaciones para la socialización de resultados, entre ellas, en el XXV Congreso CLEFA 2014, Congreso de la Conferencia Latinoamericana de Escuelas y Facultades de Arquitectura, en Paraguay; en el V Congreso Internacional de Cátedras Scholas del Vaticano 2019 “Construir redes de cooperación para el humanismo solidario”, en la ciudad de Nueva York.
Tema 2. Participación en el proyecto Scholas del Vaticano (2019)
El proyecto para la escuela Virgen del Pilar, presentado en el evento académico internacional en la Universidad de Fordham, en Nueva York, se ajusta a una experiencia que busca establecer vínculos con otras personas u organizaciones, con el propósito común de mejorar o construir una nueva realidad, dando respuesta al eje de educar para el humanismo solidario e innovación educativa. Por otra parte, se reconoce el empleo de fuentes vinculadas al pensamiento del papa Francisco y a la educación formal o no formal, en el marco de las Cátedras Scholas del Vaticano que proponen una transferencia concreta de los conocimientos académicos no solo a las organizaciones vinculadas con el sistema educativo formal, sino también hacia aquellas que con un fin educativo desarrollan diferentes experiencias innovadoras.
Al respecto, se expuso la metodología aplicada y el importante relacionamiento con la comunidad en los aspectos que corresponden a la fragilidad del sitio, en cuanto a la vulnerabilidad física y social, principalmente de los niños con discapacidad que pudieron incorporarse a la oferta formal educativa. Con la experiencia realizada, se pudo demostrar conocimiento de las situaciones que requieren respuestas accesibles, de integración y compromiso con la comunidad; para ello, se contó con el apoyo desde los ámbitos académicos, comunitarios, de organismos nacionales e instituciones privadas, en el marco de la propuesta desarrollada en lo arquitectónico y urbano, con énfasis en lo social e inclusivo. De esta manera, los equipos académicos supieron vincularse con la comunidad para dar respuestas efectivas y realizables. Se desarrollaron actividades prácticas, talleres, visitas de campo, exposiciones, presentaciones y la entrega de trabajos concretados con las obras realizadas.
Se han generado vínculos, fortalecido redes de trabajo y de incidencia pública en materia de inclusión; se ha podido diagnosticar barreras y proponer ajustes razonables. El trabajo realizado constituye un modelo repetible en el ámbito educativo, comprometiendo a los responsables de las instituciones tanto locales como externas a apostar por la inclusión como modelo de retorno social hacia la comunidad educativa y la sociedad en general, para la instalación del paradigma sociocultural de igualdad de oportunidades. Mediante el uso de tecnologías digitales y multimedios, es posible lograr la definición de proyectos y de productos accesibles, como la promoción, difusión y edición digital de los trabajos integrados de las dos carreras de la FADA UNA, como respuesta a los desafíos de la inclusión2.

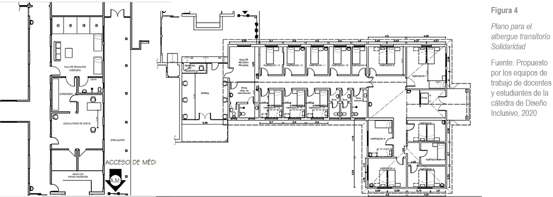
Tema 3. Propuesta de albergue transitorio con la Fundación Solidaridad, esqema de trabajo y alcance de la FADA UNA (2020)
En el marco del convenio interinstitucional de la Fundación Solidaridad y la FADA UNA, se inició el proyecto de albergue transitorio Solidaridad, con la finalidad de adaptar las instalaciones del complejo que ofrecía múltiples actividades de rehabilitación física a personas con discapacidad —actualmente en desuso por la pandemia del COVID-19 en el país—, para ser reutilizadas en la prestación de servicio de albergue transitorio.
Por la Fundación Solidaridad, participaron el señor Esteban Di Pardo, director, y el licenciado Edgar Núñez, como enlace técnico. Por la Facultad de Arquitectura, Diseño y Arte, estuvieron los arquitectos Ricardo Meyer Canillas (decano), María Luisa Blanes y Juliana Llamosas (docentes), así como los estudiantes Ever Ferrari, Alejandro García, Lucas Bogarin, Melisa Torales y Eliana Soto.
Desde la cátedra de Diseño Inclusivo de la FADA UNA, se propone la refuncionalización y adaptación de las instalaciones del complejo edilicio de la Fundación Solidaridad, con un diseño acorde a las características de espacialidad y volumetrías existentes, pero con una nueva funcionalidad en las condiciones nacionales de protección sanitaria contra el COVID-19. El equipo académico estuvo conformado por dos docentes y seis estudiantes de la cátedra, quienes realizaron los trabajos de verificación de las instalaciones y relevamiento para la refuncionalizacion de los bloques edificados; dejaron uno de ellos en condiciones adecuadas para el albergue transitorio.
Trabajos realizados
Los trabajos realizados para la adecuación del complejo de la Fundación Solidaridad fueron los siguientes: identificación, relevamiento y descripción de las instalaciones en el conjunto edilicio de la Fundación Solidaridad de Asunción; propuesta de refuncionalización; sectorizaciones para la implementación de medidas sanitarias; elaboración documental; galería de imágenes; presentación de planos generales y por sectores; y memoria de acciones e imágenes del proceso de intervención. Todo ello para poner en marcha la opción de albergue a 140 personas con diagnóstico de COVID-19.
Tema 4. Procesos de internacionalización 2020: Seminarios Aulabierta Inclusiva: FADA UNA, Paraguay; UNLPLATA y UNTUCUMAN, Argentina; y Universidad Santo Tomás de Bucaramanga, Colombia
En la nueva realidad de realizar clases por medios virtuales, se implementaron varias estrategias didácticas, con participación de cátedras, docentes y profesionales invitados para compartir tres clases interactivas entre estudiantes y docentes, en la modalidad de Seminarios Internacionales Aulabierta Inclusiva Latinoamericana, entre la Universidad Nacional de Mar del Plata y la Universidad Nacional de la Plata, Argentina; la Universidad Santo Tomás de Bucaramanga, Colombia; la Universidad Nacional de Tucumán, Argentina; y la FADA UNA, como organizadora. Los profesores invitados para el intercambio sobre el aprendizaje por experiencias de los estudiantes de las universidades participantes tuvieron como temas comunes la accesibilidad, la inclusión y el diseño universal.
Las modalidades de clase compartida incluyeron la presentación de las experiencias y los resultados obtenidos en cada una de las cátedras, en las que tanto profesionales como docentes y estudiantes se involucran en la oportunidad de relacionamiento y aprendizaje de nuevas experiencias, desde un enfoque experimental y participativo. El objetivo principal propuesto y logrado es el aprendizaje por experiencias a través de las aulas abiertas, en las cuales se enfocan los conceptos del diseño universal y la accesibilidad aplicada a un hecho proyectual, integrando lo urbano-arquitectónico o de desarrollo de productos adaptados a las personas con discapacidad, tal y como se tiene experiencia en otros países (Arnaiz & Caballero, 2020).
Es importante considerar los resultados y los impactos de las lecciones aprendidas en cuanto a la inclusión de la perspectiva que favorezca no solo el aprendizaje e intercambio de experiencias, sino también la sociabilización de los estudiantes y el relacionamiento con sus pares y con personas con otras necesidades, con las que pueden compartir tiempos y espacios comunes.
En los últimos años, la educación inclusiva se ha establecido como paradigma fundamental por el cual debería regirse la respuesta educativa en los centros escolares, siendo considerada la vía óptima para garantizar la equidad, la justicia y la igualdad de oportunidades para todo el alumnado, evitando así la segregación y la exclusión social de algunos colectivos desfavorecidos (Ainscow et al., 2016; Arnaiz, 2019a; Belavi y Murillo, 2016). (Arnaiz & Caballero, 2020, p. 192)

Tema 5. Presentación de experiencia compartida Movilidad Inclusiva 4×4 (2021)
El proyecto de movilidad y el intercambio piloto propuesto desde la FADA UNA, a través de la asignatura libre Diseño Inclusivo, con otras de similar denominación en la región, dio lugar al proyecto taller Movilidad Inclusiva 4×4 entre cuatro universidades y sus Carreras de Arquitectura: Universidad de Lima, Perú; Universidad de La Salle, Colombia; Universidad del Litoral de Santa Fe, Argentina; y nosotros desde la FADA UNA, la cual contó con la Declaración de Interés Académico por parte del Consejo Directivo para el reconocimiento de los créditos académicos por las 12 horas de actividad registrada.

Breve descripción de la actividad y su alcance
La metodología y estrategia de movilidad se basó en respetar los horarios habituales en que cada cátedra desarrolla sus actividades en su respectiva universidad, así como el propio momento académico en el que se encontraban, de modo que los estudiantes de la movilidad se incorporaron a las actividades propias de cada materia y aportaron con su conocimiento para la elaboración de proyectos evaluables en el tiempo que duró la experiencia.
Los encuentros fueron íntegramente aprovechados por los equipos de estudiantes para el abordaje de las temáticas que se desarrollaron en las tres semanas que duró el evento, cuyos resultados son un aporte imprescindible por la diversidad de enfoques que se adoptaron. Se llevaron a cabo doce encuentros académicos en total a lo largo de tres semanas: la primera, del 10 al 14 de mayo; la segunda, del 17 al 21 de mayo; y la tercera, del 25 hasta el sábado 29 de mayo, en que se realizó la jornada intensiva de socialización con la presentación de las cuatro universidades.
Se cumplió con el objetivo de la actividad, que era lograr la participación efectiva de los estudiantes, bajo la guía de los docentes anfitriones, en dos clases consecutivas como mínimo. En ellas, las delegaciones de estudiantes podrían compartir la experiencia académica en el abordaje de la inclusión y la accesibilidad como premisas para el diseño, y dar respuesta al retorno social de cada una de las propuestas.
Esta fue una experiencia con el uso de medios digitales exclusivos para el logro de las metas y objetivos, así como con el conocimiento de nuevas estrategias y modalidades didácticas de acuerdo con la naturaleza de cada una de las cátedras involucradas. Asimismo, en cada ocasión, se contó con la presencia de todos los docentes involucrados, dado que los horarios permitían la realización de las actividades prácticamente sin superposición, ya que en todos los casos se acordó mantener los horarios habituales de clases en las respectivas universidades y acoplarse a los contenidos según cada situación en particular.
El logro principal ha sido propiciar la participación de los equipos académicos en la diversidad de miradas, que cada estudiante reconoció con una visión integrada3. Finalmente, los resultados de esta experiencia académica han demostrado que se pueden generar propuestas y proyectos integrados con equipos de participantes multidisciplinarios, de acuerdo con cada una de las cátedras en particular, con más de 65 estudiantes inscritos en el taller, según los registros de encuestas por Google Forms y los archivos Drive compartidos sobre las estrategias académicas planteadas y los proyectos finales desarrollados.












REFLEXIONES FINALES Y LECCIONES APRENDIDAS
Después de las presentaciones de las últimas actividades realizadas entre el 2020 y el 2021, podemos concluir que seguimos una línea de actuación y una metodología caracterizadas por inculcar los conceptos de inclusión e igualdad de oportunidades desde la cátedra de Diseño Inclusivo de la FADA UNA, Paraguay; y, además, queremos insistir en la necesidad de mantener los conceptos que forman parte de nuestra disciplina. Hoy nos toca reconocer la incorporación de las tecnologías y medios digitales que permitan esa comunicación con nuestros estudiantes, y destacar los logros y resultados que se pueden obtener con la oportunidad del intercambio de experiencias y el acercamiento a escenarios reales, así como la innovación en la implementación de nuevas estrategias didácticas que nos renuevan y actualizan, tal y como hemos tratado de exponer en este artículo.
Originalmente, a partir del segundo semestre del 2010 y en forma ininterrumpida hasta la fecha, 2021, se pudo incorporar la temática de la inclusión y la equiparación de oportunidades desde la iniciativa de esta materia libre, incluyendo estrategias de gestión, cooperación y relacionamiento interinstitucional, en el ámbito de la extensión y de los procesos de internacionalización.
Se han desarrollado acciones integradas, tanto al interior de la FADA UNA, entre las Carreras de Arquitectura y Diseño Industrial, así como en experiencias de movilidad e internacionalización con otras universidades, propiciando la integración de equipos de trabajo multidisciplinarios en la metodología de aprendizaje por experiencias, el desarrollo de proyectos y de productos adaptados para personas con discapacidad, con un alto grado de participación del estudiante en la construcción del conocimiento.
Es posible lograr una incidencia social relevante en el ámbito de la accesibilidad universal en Paraguay, desde el punto de vista académico y de relacionamiento con la comunidad, ampliada más allá del territorio nacional, con las actividades integradoras y de experiencias compartidas entre pares de la disciplina más allá de la frontera, en la región y el entorno latinoamericano.
RESULTADOS OBSERVABLES DE LAS EXPERIENCIAS PRESENTADAS
REFERENCIAS
Arnaiz, P., & Caballero, C. M. (2020). Estudio de las aulas abiertas especializadas como medida específica de atención a la diversidad. Revista Internacional de Educación para la Justicia Social, 9(1), 191-210. https://doi.org/10.15366/riejs2020.9.1.009
Blanes, M. L. (2010-2021). Cátedra de Diseño Inclusivo. Repositorio de trabajos entregados y presentados. Universidad Nacional de Asunción.
Blanes, M. L. (2011). Diseño inclusivo en espacios públicos y privados. Cátedra de Diseño Inclusivo. Materia libre FADA UNA. http://www.cevuna.una.py/inovacion/articulos/08.pdf
Blanes, M. L. (2015). Estrategias didácticas para la implementación de proyectos inclusivos, gestión y alianzas estratégicas, FADA UNA - Jornadas de Innovación Docentes. Universidad Nacional de Asunción.
Blanes, M. L., & Domínguez, G. (2015). Inclusión social y accesibilidad. Incorporación del diseño inclusivo en edificios educativos: propuestas de accesibilidad para la Escuela Básica y el Colegio de la Universidad Americana. ACADEMO. Revista de Investigación en Ciencias Sociales y Humanidades, 2(1). https://dialnet.unirioja.es/descarga/articulo/5763005.pdf
Blanes, M. L., & Villa, J. (2018). Espacios inclusivos y experiencias compartidas. Movilidad docente en universidades públicas. Universidad Nacional de Asunción; Universidad Nacional de Mar del Plata.
Gobierno Nacional de Paraguay. (2014). Plan Nacional de Desarrollo 2030. https://www.stp.gov.py/pnd/wp-content/uploads/2014/12/pnd2030.pdf
Organización de Estados Iberoamericanos, & Ministerio de Educación y Cultura de Paraguay. (2010). Atención a la diversidad. https://mec.gov.py/talento/archivo/convocatoria01-16-nacional/ejes-bibliografia/2-atencion-a-la-diversidad.pdf
Ortiz, L. (Ed.). (2014). La educación en su entorno. Sistema educativo y políticas públicas. CADEP. http://biblioteca.clacso.edu.ar/Paraguay/cadep/20160714114128/9.pdf
Sánchez-Teruel, D., & Robles-Bello, M. A. (2013). Inclusión como clave de una educación para todos: revisión teórica. Revista Española de Orientación y Psicopedagogía, 24(2), 24-36. https://www.redalyc.org/pdf/3382/338230794003.pdf
1 Me gustaría mencionar al equipo académico que me acompaña: arquitecta Juliana Llamosas (ayudante) y los equipos de estudiantes que trabajaron en los diferentes momentos con el aula de Diseño Inclusivo desde el 2014 al 2020, cuyos trabajos forman parte de esta edición. Muchas gracias.
2 Se comparte un enlace de visualización de la escuela Virgen del Pilar, proyecto de inclusión y accesibilidad de las Carreras de Arquitectura y Diseño Industrial de la FADA UNA, 2014-2016: https://www.facebook.com/1183055214/videos/10206494056048504/
3 La experiencia se realizó con alumnado diverso y multicultural, con un análisis crítico sobre la actuación en sus aulas en estos últimos años y en la actualidad. Se ofrecen los principios básicos y claves metodológicas específicas para propiciar contextos educativos diversos. Se plantean también ciertas limitaciones y futuras perspectivas investigadoras de interés (Sánchez-Teruel & Robles-Bello, 2013).