Optimizing After-Sales Services in the
Automotive Maintenance Sector: A Lean
Manufacturing and MRP Case Study in Peru
Pablo Harboe-Chaman*
https://orcid.org/0009-0000-8003-9826
Facultad de Ingeniería, Universidad de Lima, Perú
Kent Philipps-Berrospi
https://orcid.org/0000-0002-9410-9781
Facultad de Ingeniería, Universidad de Lima, Perú
Juan Carlos Quiroz-Flores
https://orcid.org/0000-0003-1858-4123
Facultad de Ingeniería, Universidad de Lima, Perú
Received: January 6, 2025 / Accepted: March 4, 2025
Published: June 10, 2025
https://doi.org/10.26439/ing.ind2025.n48.7261
ABSTRACT. This research aims to improve productivity and customer satisfaction in the automotive maintenance sector in Peru, which faces problems such as inefficiency in after-sales services and poor inventory management. The methodology involves the integration of lean manufacturing tools—including 5S, material requirements planning (MRP), standardized work, among others. The implementation of these tools seeks to optimize workspace organization, improve inventory management, and streamline service operations. The main results revealed a 20,37 % reduction in downtime, a decrease in stockouts from 11,81 % to 3,58 %, and a reduction in cycle time from 3 hours and 15 minutes to 1 hour and 36 minutes. These advancements contributed to a significant increase in customer satisfaction, as evidenced in the rise of NPS from
This research received no external funding.
* Corresponding author e-mails: [email protected], [email protected], jcquiroz@ ulima.edu.pe
This is an open access article distributed under the terms of the Creative Commons Attribution 4.0 International License (CC BY 4.0).
46 % to 79 %. Exploring the use of digital technologies such as IoT and AI is suggested to achieve further improvements.
KEYWORDS: after-sales service / inventory management / standardized work / efficiency optimization / lean manufacturing
Optimización de los servicios postventa en el
sector del mantenimiento automotriz: un estudio
de caso de lean manufacturing y MRP en Perú
RESUMEN. El objetivo de esta investigación es mejorar la productividad y la satisfacción del cliente en el sector del mantenimiento de automóviles en Perú, que se enfrenta a problemas como la ineficiencia en los servicios posventa y la mala gestión de los inventarios. La metodología incluye la integración de herramientas de lean manufacturing, por ejemplo 5S, material requirements planning, procesos de trabajo estandarizados, entre otros. La implementación de estas herramientas busca optimizar la organización del espacio de trabajo, mejorar la gestión de inventarios y agilizar las operaciones de servicio. Los principales resultados fueron una reducción del 20,37% del tiempo de inactividad, una disminución de las roturas de stock del 11,81% al 3,58% y una reducción del tiempo de ciclo de 3 horas y 15 minutos a 1 hora y 36 minutos. Estos avances contribuyeron a un aumento significativo de la satisfacción del cliente, reflejado en un incremento del NPS del 46% al 79%. Se sugiere explorar el uso de tecnologías digitales como IoT e IA para seguir mejorando.
PALABRAS CLAVE: servicio posventa / gestión de inventarios / trabajo estandarizado / optimización de la eficiencia / lean manufacturing
INTRODUCTION
In the competitive automotive sector, customer satisfaction—as reflected by after-sales service—is a key differentiating factor. For this reason, companies pursue to increase their value through after-sales service quality and evaluate it through established indicators (Oriundo Ayala, 2019). The company analyzed in this study reported a net promoter score (NPS) for its vehicle maintenance service that fell short of its goal, which is set at 80 %. The gap highlights the possibilities of increasing operational efficiency and customers’ perceived service quality.
This research presents a broader picture that encompasses both qualitative and quantitative aspects, aiming to improve delivery times and increase customer satisfaction. This aligns with the company’s continuous pursuit of improvement and innovation (Abad Alburqueque, 2018; Kochańska & Burduk, 2023). The methodology involves the application of lean manufacturing (LM), material requirements planning (MRP), and standardized work (SW) tools to improve the efficiency of maintenance processes and evidence their positive impact on the NPS. This study is expected to contribute to scientific knowledge in supply chain management in the automotive industry, serving as a guide for other companies seeking to improve their service level and foster customer loyalty. In summary, it seeks to demonstrate that the joint application of LM and MRP in after-sales service can lead to significant service improvements, which will translate into a higher NPS and, ultimately, greater business success.
Rationale
Globally, most industries prioritize product improvements, leaving aside service quality (Oriundo Ayala, 2019). In this scenario, we have identified gaps in the service stations of automotive companies, concerning downtime in the after-sales process, which does not add extra value to their service. The reviewed literature highlight a key issue: the low service level provided by Peruvian car dealerships. One article identified the Peruvian automotive sector as facing emerging problems in the supply chain, emphasizing the sector’s significant social and economic impact on Peru’s gross domestic product (GDP): in June 2022, the regional economy experienced a growth of 3,44 %, one of the highest peaks in the period (Industria automotriz creció 4,82 % en 2022, ¿qué se espera para este año?, 2023; Pereira et al., 2016). Many organizations within the sector perceive problems in meeting a balance between cost efficiency and excessive downtime within the plant, which significantly influences customers’ perceived service quality (Morocho & Armas, 2017; Villarreal Samaniego et al., 2022). According to the reviewed literature, many studies seek to provide quality in operations, overlooking efficiency. While they focus on customer experience and marketing, they should provide an action plan against untimely deliveries in order to increase effectiveness (Caparachín Flores & Santa Cruz Tineo, 2019; Gstalter et al., 2020).
Another article suggests that poor operations management is reflected in the accumulation of downtime within service management, highlighting the need to reduce it in order to boost productivity and increase competitiveness (Sánchez Villegas, 2019). In this context, the company under study should improve efficiency and effectiveness, optimize processes, and reduce downtime (Alvarez Flores & Alvites Cruz, 2018; Brkljac et al., 2023; Frohn-Sörensen et al., 2021). To address these problems, the implementation of the Lean methodology is proposed (Mohapatra et al., 2021). The first step involved applying the 5S tool to organize, classify, and eliminate elements that hinder the operators’ work within the service area. Subsequently, time-tracking recording identified the warehouse activity with the highest downtime, leading to the proposal to implement the MRP tool to optimize operational efficiency. Finally, after the implementation of these two tools, it was suggested to establish a standardized workflow to integrate the improvements and ensure a proper record. This was achieved with the help of the SW tool.
Problem diagnosis
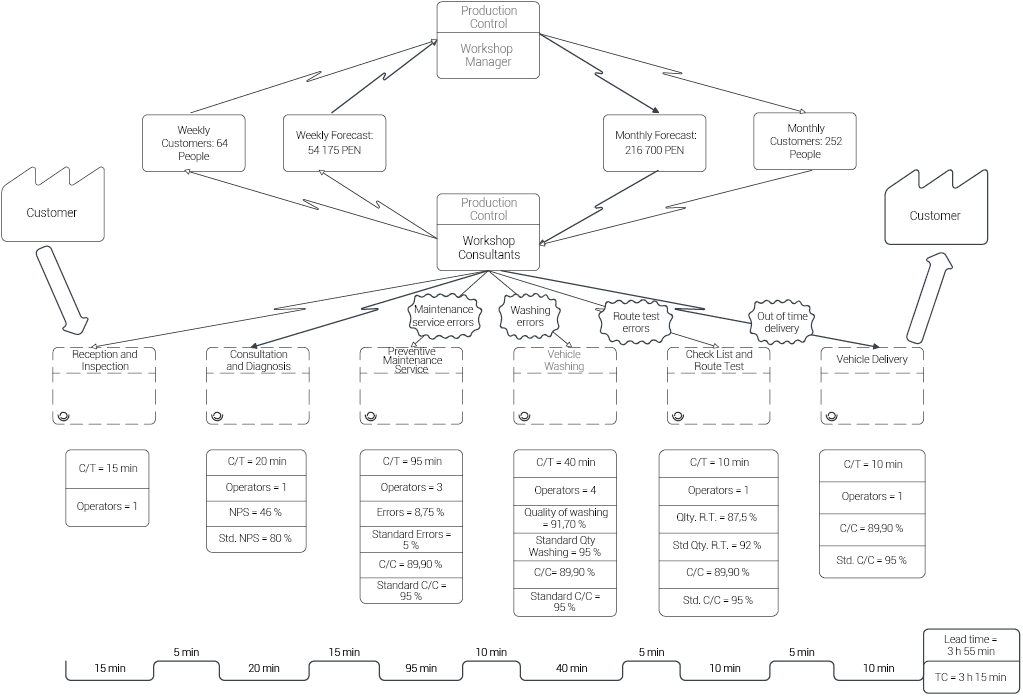
According to the analysis of the automotive sector, the standard NPS is set at 80 %, largely due to the implementation of good practices within operational processes. Therefore, this standard was used as a reference in the study to evaluate whether the improvement initiative could contribute to increasing the current key performance indicator (KPI) (Arhuis Aponte & Campos Veliz, 2016). In this context, the NPS was established as a key customer-centric performance indicator. Historical data collected up to August 2023 reported an NPS of 45,91 %, which aligned with the company’s estimated projection for that year. However, an analysis of the monthly trend revealed an average NPS of 45,25 % during the first eight months of 2024—a figure that is below the industry benchmark. To deepen our study, we used a value stream mapping, which helped design a root cause analysis diagram to identify areas for improvement within the maintenance operations system (Figure 1).
Figure 1
Value Stream Mapping

The diagnosis of the after-sales service in the automotive company reveals a multifactorial problem that directly affects customer satisfaction and, therefore, the NPS. The main deficiency identified is the lack of process standardization, which results in low productivity and a subsequent reduction in customers’ perceived service level. Additionally, weak warehouse management, specifically in the process of selecting and delivering slow-moving spare parts, exacerbates the situation due to a lack of order and structure, which hinders control and efficiency. Furthermore, delays in maintenance services caused by the shortage of high-turnover spare parts, together with the aforementioned problems, undermine customer confidence and negatively affect customer retention. Figure 2 presents a problem tree that summarizes these issues.
Figure 2
Problem Tree

Background Information
Due to its significant social and economic impact, the automotive industry has become a fundamental pillar of modern economy in Peru. In June 2022, the region’s economy grew by 3,44 % compared to the same month the previous year, exceeding the 2,28 % growth recorded in May and the market expectations of 2,5 %. Figure 3 shows more details of this achievement and highlights the country’s economic development (Industria automotriz creció 4,82% en 2022, ¿qué se espera para este año?, 2023).
Figure 3
GDP of the Motor Vehicle Sales, Maintenance and Repair Sector

Note. From Sector automotor avanza 4,41% en julio de 2022, by Asociación Automotriz del Perú, 2022 (https://aap.org.pe/inei-sector-automotor-crece-4-41-julio-2022/).
As a result of the pandemic, the country’s automotive industry had a significant impact. In 2020, imports of automobiles and pickup trucks fell by 40 % and 27 %, respectively, according to data from the Asociación Automotriz del Perú (Peruvian Automotive Association, APP). However, the economic recovery in 2021 had a positive impact on the sector, with car imports rising by 26 % and pickup truck imports by an impressive 66 % (Villarreal Samaniego et al., 2022) (Figure 4).
Figure 4
Imports of Automobiles and Pickup Trucks

Note. From El sector automotriz en Perú se recuperó en 2021, by C. Posada Ugaz, 2022, La Cámara (https://lacamara.pe/el-sector-automotriz-en-peru-se-recupero-en-2021/?print=print).
According to the article “Industria automotriz creció 4,82 % en 2022, ¿qué se espera para este año?” (2023), the automotive sector has been affected by the growth of the industry, driven by the emergence of new technologies, improvements in service delivery, and the increasing use of digital tools in operational decision-making. The annual report of the Asociación Nacional de Movilidad Sostenible (Colombian Association of Sustainable Mobility, Andemos) indicates that Colombia’s automotive market grew by 2,7 % compared to the previous year, with a total of 263 684 vehicles registered. Figure 5 provides an overview of the sales ranking in the sector.
Figure 5
Economic Sheet

Note. From La industria automotriz registró utilidades por $ 785 400 millones durante 2019, by M. A. Ruiz-Rico, 2020, La República (https://www.larepublica.co/especiales/las-1-000-empresas-mas-grandes-de-2018/la-industria-automotriz-registro-utilidades-por-785-400-millones-durante-2019-3041372).
Regarding operations, service level provided by a company often plays a key role in customer retention, and this is evident in the operations management of preventive vehicle maintenance. Deciding the appropriate frequency of such maintenance is crucial because the fleet’s service level is expected to remain optimal if the manufacturer’s maintenance recommendations are followed. Scheduled maintenance—which is based on mileage, hours of use, or elapsed time—is the most commonly used approach (Chávez Medina et al., 2020). Occasionally, establishing these parameters can sometimes pose problems. Therefore, it is essential to understand the vehicle’s operating conditions in order to identify which factors will determine maintenance needs. Figure 6 illustrates the day-to-day maintenance management issues related to these challenges.
Figure 6
Day-to-Day Maintenance Management Issues (%)

Note. From Mantenimiento preventivo de vehículos, by D. Bozzano, n.d., Evaluando Software (https://www.evaluandosoftware.com/bpm/mantenimiento-preventivo-vehiculos/).
To address these problems, companies within the automotive sector have explored various improvement proposals. One main areas evaluated and studied within the global automotive industry process chain is the preventive maintenance service. For this reason, many companies choose to assess the performance and customer recurrence rate. This approach improves operational efficiency, as customer satisfaction is reflected in the acceptance of the product or service. Therefore, the addition of best business practices, efficient planning, and good resource management are critical factors to measure efficiency and effectiveness, reducing unnecessary transfers and organizing the service structure (Sánchez Villegas, 2019).
With this objective in mind, a literature review was conducted to identify the main management issues in automotive companies or similar business sectors. First, automotive dealerships in Peru with after-sales absorption rates above 80 % are more likely to survive during periods of low sales (Arhuis Aponte & Campos Veliz, 2016). Second, productivity is directly related to technician performance, which is why most dealerships consider a productivity range of 110 % to 150 % to be optimal for evaluating mechanic productivity (Amasifén Pimentel et al., 2022). Finally, the utilization percentage—the ratio between the time a technician spends on maintenance and the total time spent in the workshop—should be optimized to avoid unnecessary costs. Efficient dealerships aim for a utilization percentage ranging from 85 % to 95 % (TOP 3 Key Performance Indicators for Car Dealer Aftersales Departments, n.d.).
Methodology
This research was conducted using a detailed analysis of several key articles from national and international sources, collecting both qualitative and quantitative information to strengthen the methodological framework. The project was organized into three stages, each involving the application of specific techniques. The first stage focused on the implementation of LM through the 5S methodology, aiming to optimize workspace organization and efficiency, thereby contributing to the reduction of unnecessary downtime. In the second stage, the MRP system was introduced to reduce downtime and guarantee the availability of tools and spare parts required for delivering efficient maintenance services (Agrawal et al., 2010). In the final stage, the concept of SW was implemented, enabling the integration of all the methodologies in a standardized worksheet, simplifying the operational standardization, and guaranteeing compliance with service delivery times. In addition, instruments such as structured questionnaires, in-depth interviews, and the identification of detractors and promoters through social networks were used, allowing for a comprehensive understanding of customers’ perception. This methodological approach places a strong emphasis on the organization’s operational efficiency and effectiveness, with a continuous focus on improvement.
First, the 5S methodology was introduced to optimize the workspace, as disorganization hindered maintenance service management. As noted before, many inefficiencies arose from delays caused by disorganization in the workspace (Bernardo-Saavedra et al., 2023). To address this, all aspects were considered, including the correct classification and segmentation of unnecessary elements, as well as the proposal of a standardized cleaning process. This was done through established procedures that helped operators in performing their tasks correctly. Maintaining clean workspaces and being able to identify all types of waste are essential (Villanueva Arrieta, 2018). Therefore, the 5S methodology plays a crucial role in ensuring order and adequately organizing the workspace for greater efficiency.
Second, one of the activities—specifically, the trip to the warehouse—is experiencing delays due to the unavailability of many low-volume spare parts or a lack of inventory. A table was prepared to detail the materials planning process. This enables the establishment of an appropriate safety stock, as the company under study currently lacks one. The application of the MRP technique facilitated the development of an effective supply plan, allowing the company to maintain better control over its inventory and meet its established requirements (Chavez Medina et al., 2020). Moreover, it will help to be prepared for industry-related uncertainties (Jajam & Challa, 2023). This tool contributes to better management of inventory levels and supply plans by considering policies, bill of materials, and production capacities. As a result, it ensures that the necessary quantities are available in the right time, thus meeting the established requirements (Gonzales-León et al., 2023).
Finally, once the correct organizational execution is implemented, the necessary inventory is in place, and previous inconsistencies within the maintenance service are reduced, the operator will be required to perform fewer tasks in the workspaces, thereby optimizing process efficiency. To support this, a SW technique was designed based on established instructions and norms; the SW tool was used for this purpose (Coronel-Vasquez et al., 2022; Fuentes & Rojas, 2018).
In addition, a spaghetti diagram was created to provide a macro-level visualization of the routes within the maintenance service, helping to shorten unnecessary transfers. The operators received training and instructions on the procedures for each activity, and an evaluation schedule was developed to assess their effectiveness and competence.
To improve the efficiency of maintenance service management, the global model uses the three previously discussed methodologies. While each work effectively on its own, their combined use offers a distinct advantage by introducing a new approach. When applied together, they provide new alternatives for improvement and a wider scope of application.
The 5S methodology focuses on providing an optimal space for workstations. Similarly, SW groups tasks to identify and eliminate unnecessary processes. Given that this is a maintenance service, it also requires the timely availability of essential materials. This is where MRP plays a crucial role since it systematizes resource requirements for the after-sales service. Figure 7 provides a summary of these steps.
Figure 7
Proposed Model Workflow

Results
The study indicators include transfer rate, stockout rate, lead time, and cycle time. The current transfer rate is 60,37 %, with an expected reduction to 40 % in the target situation, representing an improvement of 20,37 %. The current stockout rate is 11,81 %, with an expected reduction to 10 %, showing an improvement of 1,81 %. The current lead time is 235 minutes, with an expected reduction to 195 minutes, equating to an improvement of 17,03 %. Finally, the current cycle time is 195 minutes, with an expected reduction to 165 minutes, indicating an improvement of 15,39 %. These projected results highlight the anticipated effectiveness of the implemented Lean tools in optimizing operational efficiency and improving inventory and process management in after-sales service.
Table 1
Comparative Table of Indicators
|
Indicators |
As-Is |
To-be |
Improvement |
|
Transfer rate (%) Stockout rate (%) Lead time (min) Cycle time (min) |
60,37 % 11,81 % 235 195 |
40 % 10 % 195 165 |
20,37 % 1,81 % -17,03 % -15,39 % |
The objective of the diagnosis was to break down the main root problem: a low NPS of 46 %, which is significantly below the industry standard of 80 % and translates into an annual economic impact of 25 498 PEN, equivalent to 4,78 % of total revenues. Two primary causes were identified at the first level: service execution errors, contributing 42,73 %, and late deliveries, accounting for 32,30 %, while other factors made up the remaining 24,97 %.
At the second level, service execution errors were further broken down into four root causes: delays in locating tools and performing mechanical transfers (53,87 %), stockouts (46,13 %), employees’ lack of competence (56,24 %), and excessive transfers within the workshop (43,76 %). These root causes help explain the operational and management issues that led to low customer satisfaction, as evidenced in the NPS. The detailed analysis allowed identifying critical areas for intervention and improvement within the automotive workshop’s service operations.
To validate the proposed model, a six-month pilot was conducted, with the first tool implemented being the 5S methodology, as shown in Figure 8, the initial stage of the 5S methodology—specifically the sorting phase—is illustrated, where red tags are used to identify the materials, equipment, and tools needed for the process. Items that are not required are relocated to more suitable areas, thereby decluttering the workstations and fulfilling the objective of the 5S methodology.
In the first row, the images depict the workspace before and after the implementation. The “Red Tag – Sort” image shows the initial state, with unnecessary items tagged for removal. The “Results” image shows the cleared workspace after these items have been removed, resulting in a more organized area.
In the second row, the “Red Tag – Set in Order” image depicts equipment tagged for relocation. The “Results” image shows the workspace after the necessary items have been repositioned, leading to a more efficient and organized environment. This process helps achieve the 5S goal of maintaining an well-organized and efficient workspace.
Figure 8
Red Tagging

The following diagram (Figure 9) helps standardize and ensure the appropriate quantity of spare parts and materials required for the maintenance service, thus achieving better inventory control and projection. It details the components necessary for preventive maintenance, organized into three main categories: radiator, motor, and wheels. This scheme ensures that the required materials and spare parts are available in the desired quantities and on time, improving the efficiency and effectiveness of the automotive maintenance service.
Figure 9
Gozinto Diagram for MRP

Next, after reducing times throughout the entire service chain, the SW component of the Lean tool was implemented to create an optimal workflow. This was achieved through a standardized worksheet that establishes the best method for service execution, resulting in enhanced flow, greater efficiency, and improved service quality. Figure 10 shows the SW diagram for the automotive maintenance service. This diagram outlines each step of the process, from vehicle reception to final delivery, including the inspection of the worksheet, tool preparation, transportation of work orders (WO) and spare parts, and maintenance service execution. Each step is meticulously timed to optimize efficiency and ensure effective task completion. Additionally, the required personal protective equipment (PPE) and necessary tools for each task are specified. By standardizing the work process, minimizing wait times, and ensuring that personnel follow uniform procedures, this diagram significantly improves the quality and efficiency of the maintenance service.
Figure 10
SW Diagram

Finally, an updated process flow diagram was presented, incorporating the improvements carried out during the six-month pilot. This diagram demonstrated a significant change in service time. Following the introduction of the proposed tools, a simulation was conducted using Arena Simulation Software 16 to confirm long-term improvements by comparing the initial KPIs with those currently in place in the company. Figure 11 shows the updated process flow diagram for the automotive maintenance service. This diagram highlights the optimization of the workflow, from vehicle reception to final delivery, emphasizing the reduction of idle times and efficient organization of the process. The implementation of these improvements has resulted in a notable reduction in service times and an increase in customer satisfaction, as confirmed through the simulations and analyses performed.
Figure 11
Process Flow Diagram

To correctly validate the proposed model, three simulations were conducted using Arena Simulation Software 16 (Figure 12). Each simulation was carried out within an eight-hour work shift, with times provided by the company. The process was modeled with a “set,” as the maintenance process involves three operators working at the same time, in order to determine if the times decreased.
The design of the simulations varies minimally between them. First, the simulation for the 5S methodology outlined the complete maintenance service process, obtaining lower data compared to the current situation, with a total process time of 2 hours and 42 minutes—an improvement over the existing indicators. Second, the simulation for the MRP focused on reducing idle times. Given that the design remained the same as the previous one, the total time increased by 10 minutes. Finally, for the SW, a process elimination was performed after a comprehensive analysis revealed that certain processes hindered the operators’ ability to perform their work effectively. In this simulation, the focus was on the percentage of utilization for each operator, as this shows the time required to perform other activities. Utilization rates of 98 %, 96 %, and 94 % were achieved for each of the three operators, respectively.
Finally, all simulations showed a significant reduction in both the cycle time and lead time.
Figure 12
Proposed Model Using the Arena Simulation Software

The transfer rate decreased from 60,37 % to 39,60 %, representing a variation of 34,40 %. The stockout rate showed a significant decline, dropping from 11,81 % to 3,58 %, a variation of -69,69 %. Lead time notably fell from 235 minutes to 153 minutes, a variation of -34,89 %. Similarly, cycle time reduced from 195 minutes to 96 minutes, reflecting a variation of -50,77 %. These results underscore the effectiveness of the proposed model in enhancing operational efficiency and shortening service times (Table 2).
Table 2
Current vs. Improved Situation
|
Indicators |
Current |
Improved |
Variation (%) |
|
Transfer rate (%) |
60,37 % |
39,60 % |
-34,40 % |
|
Stockout rate (%) |
11,81 % |
3,58 % |
-69,69 % |
|
Lead time (min) |
235 |
153 |
-34,89 % |
|
Cycle time (min) |
195 |
96 |
-50,77 % |
Discussion
The implementation of LM tools—specifically 5S, MRP, and SW—has proven effective in optimizing after-sales service within the automotive maintenance industry in Peru. The 5S methodology, in particular, has allowed for the organization and optimization of workspaces, significantly reducing downtime. According to Veres et al. (2018), this methodology not only improves operational efficiency but also contributes to a cleaner and more orderly work environment. This finding is consistent with previous studies that highlight the importance of 5S in enhancing productivity and customer satisfaction (Villarreal Samaniego et al., 2022). MRP has improved the management of material and spare part supplies, reducing stockouts. This is critical, as the lack of timely availability of materials can cause significant service delays, as observed by Guillaume et al. (2017). Additionally, the implementation of SW has optimized service processes, reduced cycle times, and increased operational efficiency. Kawakami-Arevalo et al. (2023) emphasize that SW not only boosts efficiency but also facilitates employee training, which is essential for maintaining high service quality.
The results of this study show a significant improvement in customer satisfaction, as measured through the NPS, which increased from 46 % to 79 %. This confirms the effectiveness of Lean tools in enhancing both the customer experience and operational efficiency, aligning with previous studies that highlight the positive relationship between Lean implementation and customer satisfaction (Collado Carbajal & Rivera Raffo, 2018).
The integration of digital technologies, such as the Internet of Things (IoT) and Artificial Intelligence (AI), could further enhance these results by providing greater precision and efficiency in maintenance management (Mohapatra et al., 2021). These technologies have the potential to offer advanced solutions for real-time monitoring and data analysis, thereby enabling more informed and timely decision-making.
In summary, this study not only confirms the effectiveness of Lean tools in optimizing after-sales service within the automotive industry but also highlights the importance of integrating digital technologies to address future challenges. It is suggested that future research explore the application of IoT and AI in other industrial sectors to assess their effectiveness and adaptability in different operational contexts. The combination of Lean methodologies with advanced technologies has the potential to significantly transform the efficiency and quality of service, not only in the automotive industry but also in other sectors.
Conclusions
The main findings of the study reveal that the implementation of Lean tools—specifically 5S, MRP, and SW—resulted in significant improvements in the after-sales service of an automotive maintenance company in Peru. The application of the 5S methodology allowed for the organization and optimization of workspaces, reducing downtime by 20,37 %. The implementation of MRP improved the management of material and spare part supplies, decreasing stockouts from 11,81 % to 3,58 %. Finally, SW improved process efficiency by reducing cycle time from 3 hours and 15 minutes to 1 hour and 36 minutes.
These results show an improvement in customer satisfaction, as evidenced by an increase in the NPS from 46 % to 79 %. This research is particularly important due to the growing need to optimize after-sales services in the automotive industry, a sector that plays a significant role in the Peruvian economy. The implementation of Lean methodologies not only improves operational efficiency but also increases customer satisfaction, which is crucial for customer retention and market competitiveness. Additionally, the study offers a replicable model that other companies in the sector can adopt to improve their own service processes.
This study makes several important contributions to the field. First, it demonstrates the effectiveness of Lean tools in reducing cycle times and improving inventory management in the context of automotive maintenance. Second, it provides empirical evidence on the improvement in customer satisfaction achieved through the optimization of after-sales service processes. Furthermore, the research highlights the importance of work standardization as a critical component for enhancing operational efficiency and facilitating employee training. This research addresses the existing gap in the literature by providing a comprehensive study that integrates multiple Lean tools to enhance after-sales service in the automotive maintenance industry, particularly within the Peruvian context.
Previous studies have often focused on individual Lean tools, whereas this research demonstrates the synergistic effects of integrating 5S, MRP, and SW. This comprehensive approach addresses the intertwined issues of downtime, inventory management, and process efficiency, providing a holistic solution to improve service delivery and customer satisfaction in the automotive industry. As a final observation, it is suggested that future studies focus on applying digital technologies such as the IoT and AI to further improve maintenance management and customer service. It would also be important to explore the application of these tools in other industrial sectors to assess their effectiveness and adaptability in different operational contexts. The implementation of Lean methodologies, combined with advanced technologies, has the potential to significantly transform the efficiency and quality of service, not only in the automotive industry but also in other sectors.
CONFLICTS OF INTEREST
The authors declare no conflicts of interest.
CRediT AUTHOR STATEMENT
Pablo Harboe-Chaman: conceptualization, data curation, formal analysis, investigation, methodology, software, validation, visualization, writing (original draft). Kent Philipps-Berrospi: conceptualization, data curation, formal analysis, investigation, methodology, software, validation, visualization, writing (original draft). Juan Carlos Quiroz-Flores: conceptualization, project administration, supervision, writing (review and editing).
References
Abad Alburqueque, S. P. (2018). Análisis del impacto de las promociones en la tasa interna de retención de clientes en el servicio de telefonía fija e internet de Telefónica del Perú, en la ciudad de Nuevo Chimbote, 2017-2018 [Undergraduate thesis, Universidad César Vallejo]. Repositorio Digital Institucional de la Universidad César Vallejo. https://hdl.handle.net/20.500.12692/38796
Agrawal, A., Minis, I., & Nagi, R. (2010). Cycle time reduction by improved MRP-based production planning. International Journal of Production Research, 38(18), 4823-4841. https://doi.org/10.1080/00207540050205659
Alvarez Flores, F. R., & Alvites Cruz, J. N. (2018). Mejora del método de trabajo para aumentar la productividad del servicio de mantenimiento empresa Asistencia y Mecánica Automotriz Mitsubishi, Chimbote, 2018 [Undergraduate thesis, Universidad César Vallejo]. Repositorio Digital Institucional de la Universidad César Vallejo. https://hdl.handle.net/20.500.12692/27567
Amasifén Pimentel, A. G., Sánchez Wilcamango, L. M., Valles Coral, M. A., Navarro Cabrera, J. R., & Pinedo, L. (2022). Sistema de gestión de la calidad basado en ISO 9001:2015 y su influencia en la satisfacción de los servicios de una empresa automotriz peruana. Entre Ciencia e Ingeniería, 16(32), 16-21. https://doi.org/10.31908/19098367.2692
Arhuis Aponte, F., & Campos Veliz, A. Y. (2016). Influencia de la calidad de servicio en la satisfacción de los clientes de la empresa automotriz San Cristóbal, Huancayo, 2015 [Undergraduate thesis, Universidad Nacional del Centro del Perú]. Repositorio Académico DSpace de la Universidad Nacional del Centro del Perú. http://hdl.handle.net/20.500.12894/1269
Asociación Automotriz del Perú. (2022). Sector automotor avanza 4,41% en julio de 2022. https://aap.org.pe/inei-sector-automotor-crece-4-41-julio-2022/
Bernardo-Saavedra, E. A. R., Carpio-Najera, M. A., & Quiroz-Flores, J. C. (2023). Production management model based on SLP, 5S, and standardized work tools to increase OTIF rate in a shoe repair shop. In Proceedings of the 2023 6th International Conference on Information Management and Management Science (IMMS ’23), New York, USA, 181-188. https://doi.org/10.1145/3625469.3625511
Bozzano, D. (n.d.). Mantenimiento preventivo de vehículos. Evaluando Software. https://www.evaluandosoftware.com/bpm/mantenimiento-preventivo-vehiculos/
Brkljac, N., Munic, N., Micovic, A., Kovacevic, A. M., & Rakonjac, P. (2023). Structure and frequency of product nonconformities in the context of customer satisfaction. International Journal for Quality Research, 17(1), 291-300. https://doi.org/10.24874/ijqr17.01-19
Caparachín Flores, F. D. M., & Santa Cruz Tineo, E. (2019). Propuesta para mejorar la eficiencia en el servicio de reparación de averías de vehículos ligeros del sector automotriz, utilizando herramientas lean manufacturing [Undergraduate thesis, Universidad Peruana de Ciencias Aplicadas]. Repositorio Académico UPC. http://hdl.handle.net/10757/651564
Chavez Medina, J., López, N. A. S., & Luna Fernández, V. G. (2020). Methodological development of the supply of materials using MRP. The case of a supplier of the automotive sector. Estudios de Administración, 27(2), 113-133. https://doi.org/10.5354/0719-0816.2020.58231
Collado Carbajal, M. A., & Rivera Raffo, J. M. (2018). Mejora de la productividad mediante la aplicación de herramientas de ingeniería de métodos en un taller mecánico automotriz [Undergraduate thesis, Universidad San Ignacio de Loyola]. Repositorio de la Universidad San Ignacio de Loyola. https://hdl.handle.net/20.500.14005/3261
Coronel-Vasquez, J., Huamani-Lara, D., Flores-Perez, A., Collao-Diaz, M., & Quiroz-Flores, J. (2022). Logistics management model to reduce non-conforming orders through lean warehouse and JIT: A case of study in textile SMEs in Peru. In Proceedings of the 2022 9th International Conference on Industrial Engineering and Applications (Europe) (ICIEA-2022-Europe). Association for Computing Machinery, New York, USA, 19-24. https://doi.org/10.1145/3523132.3523136
Frohn-Sörensen, P., Geueke, M., Tuli, T. B., Kuhnhen, C., Manns, M., & Engel, B. (2021). 3D printed prototyping tools for flexible sheet metal drawing. The International Journal of Advanced Manufacturing Technology, 115, 2623-2637. https://doi.org/10.1007/s00170-021-07312-y
Fuentes, E. A., & Rojas, A. F. (2018). Estandarización de operaciones en el servicio posventa de una empresa automotriz para la marca principal. Información Tecnológica, 29(4), 189-196. https://doi.org/10.4067/s0718-07642018000400189
Gonzales-León, L. M., Salcedo-Portocarrero, N. P., & Quiroz-Flores, J. C. (2023). Inventory management model for reducing stockout rate by applying lean warehousing and DDMRP tools in a SMEs in the commercial sector. In Proceedings of the 13th International Workshop on Computer Science and Engineering (WCSE 2023), Singapur. https://doi.org/10.18178/wcse.2023.06.055
Gstalter, E., Assou, S., Tourbier, Y., & De Vuyst, F. (2020). Toward new methods for optimization study in automotive industry including recent reduction techniques. Advanced Modeling and Simulation in Engineering Sciences, 7, Article 17. https://doi.org/10.1186/s40323-020-00151-8
Guillaume, R., Thierry, C., & Zieliński, P. (2017). Robust material requirement planning with cumulative demand under uncertainty. International Journal of Production Research, 55(22), 6824-6845. https://doi.org/10.1080/00207543.2017.1353157
Industria automotriz creció 4,82% en 2022, ¿qué se espera para este año? (2023, February 16). Perú21. https://peru21.pe/economia/industria-automotriz-crecio-482-en-2022-que-se-espera-para-este-ano-noticia/
Jajam, N., & Challa, N. P. (2023). Dynamic behavior-based churn forecasts in the insurance sector. Computers, Materials & Continua, 75(1), 977-997. https://doi.org/10.32604/cmc.2023.036098
Kawakami-Arevalo, S., Veliz-Torres, M. S., Quiroz-Flores, J. C., & Noriega-Aranibar, M. T. (2023). Increased productivity through a production model based on lean manufacturing and SLP tools in small furniture manufacturing workshops. In Proceedings of the 8th International Conference on Industrial and Business Engineering, New York, USA, 419-425. https://doi.org/10.1145/3568834.3568873
Kochańska, J., & Burduk, A. (2023). A method of assessing the effectiveness of the use of available resources when implementing production processes. Applied Sciences, 13(13), Article 7764. https://doi.org/10.3390/app13137764
Mohapatra, B., Singhal, D., & Tripathy, S. (2021). Lean manufacturing towards sustainability: A grey relational framework. International Journal of System Dynamics Applications (IJSDA), 10(1), 16-30. https://doi.org/10.4018/ijsda.2021010102
Morocho, F. R. A., & Armas, C. S. B. (2017). Calidad en el servicio: oportunidad para el sector automotor en el Ecuador. INNOVA Research Journal, 2(9), 42-52. https://doi.org/10.33890/innova.v2.n9.2017.268
Oriundo Ayala, C. O. (2019). Propuesta de modelo estandarizado para el servicio de mantenimiento vehicular en una empresa automotriz [Undergraduate thesis, Universidad Peruana de Ciencias Aplicadas]. Repositorio Académico UPC. https://doi.org/10.19083/tesis/624540
Pereira, A., Abreu, M. F., Silva, D., Alves, A. C., Oliveira, J. A., Lopes, I., & Figueiredo, M. C. (2016). Reconfigurable standardized work in a lean company: A case study. Procedia CIRP, 52, 239-244. https://doi.org/10.1016/j.procir.2016.07.019
Posada Ugaz, C. (2022, April 11). El sector automotriz en Perú se recuperó en 2021. La Cámara. https://lacamara.pe/el-sector-automotriz-en-peru-se-recupero-en-2021/
Ruiz Rico, M. A. (2020, August 6). La industria automotriz registró utilidades por $ 785 400 millones durante 2019. La República. https://www.larepublica.co/especiales/las-1000-empresas-mas-grandes-de-2018/la-industria-automotriz-registro-utilidades-por-785-400-millones-durante-2019-3041372
Sánchez Villegas, P. J. (2019). Propuesta de implementación de un modelo de gestión basado en procesos para la mejora de la competitividad de un taller automotriz [Undergraduate thesis, Universidad ESAN]. Repositorio Institucional Universidad ESAN. https://hdl.handle.net/20.500.12640/1785
Veres, C., Marian, L., Moica, S., & Al-Akel, K. (2018). Case study concerning 5S method impact in an automotive company. Procedia Manufacturing, 22, 900-905. https://doi.org/10.1016/j.promfg.2018.03.127
TOP 3 key performance indicators for car dealer aftersales departments. (n.d.). Incadea. https://www.incadea.com/en/explore-insights/articles/top-3-key-performance-indicators-for-car-dealer-aftersales-departments/
Villanueva Arrieta, D. P. (2018). Propuesta de mejora para una empresa del sector automotriz basado en el modelo EFQM en la gestión de la calidad [Undergraduate thesis, Universidad Peruana de Ciencias Aplicadas]. Repositorio Académico UPC. http://hdl.handle.net/10757/623059
Villarreal Samaniego, J. D., Santillán-Salgado, R. J., & Escobar Saldivar, L. J. (2022). The global automotive industry stock returns during the COVID-19 pandemic. Revista Mexicana de Economía y Finanzas Nueva Época REMEF, 17(4), 1-21. https://doi.org/10.21919/remef.v17i4.800