Modelo de operaciones aplicando TOC y SLP
para incrementar el nivel de servicios en el área
de emergencias de un centro de salud privado
Matias Leo Forno
https://orcid.org/0009-0001-2773-5416
Universidad de Lima, Perú
Rafaella Teixeira Torterolo
https://orcid.org/0009-0002-6885-9391
Universidad de Lima, Perú
Maria Teresa Noriega-Araníbar
https://orcid.org/0000-0001-6824-1415
Universidad de Lima, Perú
Recibido: 3 de agosto del 2024 / Aceptado: 15 de septiembre del 2024
Publicado: 25 de abril del 2025
doi: https://doi.org/10.26439/ciii2024.7794
RESUMEN. Esta investigación tiene como objetivo reducir el tiempo total de atención por paciente en el área de emergencias de un centro de salud privado en Lima. El tiempo promedio actual es de tres horas y 17 minutos, 37 minutos más del tiempo deseado. Este retraso se refleja en un porcentaje de walkouts del 4,79 %. El estudio, con enfoque cuantitativo, diseño cuasiexperimental y alcance explicativo y correlacional, propone un modelo de mejora utilizando teoría de restricciones (TOC, por sus siglas en inglés), planeación sistemática de la distribución (SLP, por sus siglas en inglés) y el software Arena Simulation. La implementación logró una reducción del 16,7 % en el tiempo total de permanencia (32,88 minutos), mejoró el tiempo en el box de atención en un 17,4 % (28,62 minutos), y disminuyó el tiempo de espera en la cola de interconsulta en un 60 % (76,56 minutos). El porcentaje de walkouts se redujo a 0 %, con lo que se aumentó la capacidad de atención en 29 pacientes adicionales por día.
PALABRAS CLAVE: teoría de restricciones / planeación sistemática de la distribución / sector salud / mejora de procesos / servicio de emergencias
Operations Model Applying TOC And SLP to Increase
the Level of Services in the Emergency Area
of a Private Health Center
ABSTRACT. This research aims to reduce the total patient care time in the emergency department of a private healthcare center in Lima. The current average time is 3 hours and 17 minutes, 37 minutes longer than desired. This delay is reflected in a 4.79 % walkout rate. The study, with a quantitative approach, quasi-experimental design, and explanatory and correlational scope, proposes an improvement model using Theory of Constraints (TOC), Systematic Layout Planning (SLP), and Arena Simulation Software. Implementation achieved a 16.7 % reduction in total patient stay time (32.88 minutes), improved box care time by 17.4 % (28.62 minutes), and reduced waiting time in the consultation queue by 60 % (76.56 minutes). The walkout rate dropped to 0%, increasing the capacity to attend to 29 additional patients per day.
KEYWORDS: Theory of Constraints / Systematic Layout Planning / Healthcare Sector / Process Improvement / Emergency Service
1. INTRODUCCIÓN
La pandemia de COVID-19 reveló la limitada capacidad de cobertura del sistema de salud peruano para emergencias, con una respuesta deficiente a la demanda y 1131 muertes por millón de habitantes (Ponce de León, 2021). En 2021, la inversión en salud en Perú fue solo del 6,15 % del PIB, muy por debajo de países como Argentina y Chile, con 9,71 % y 9,34 %, respectivamente, lo que prueba que el Perú está por detrás de sus pares en esta industria clave para su población (Statista, 2021).
De acuerdo con el Instituto Nacional de Estadística e Informática (2018), el 60,2 % de los encuestados en centros de salud expresó su descontento frente a los altos tiempos de espera en emergencias. En la clínica estudiada, el tiempo promedio de atención es de tres horas y 17 minutos, 37 minutos más que el objetivo. El Net Promoter Score, que mide el nivel de satisfacción, arroja un promedio de 25,26, y el porcentaje de walkouts es de 4,79 %, lo que indica la existencia de pacientes que se retiran dado los largos tiempos de espera.
Para una búsqueda de la mejora de la capacidad de atención, las preguntas que surgen son ¿cuáles son los métodos de optimización más usados en el sector salud y cómo estos se pueden utilizar para mejorar y automatizar al máximo los procesos internos de un servicio de emergencias?, ¿cuál es el impacto de estas metodologías en la gestión y en las ganancias de un servicio de emergencias?
Se toma el caso del área de emergencias de un centro de salud privado ubicado en Lima, Perú. Tupayachy Quispe et al. (2019) usaron la teoría de restricciones (TOC) y el software Arena para identificar cuellos de botella, proponer soluciones y simular mejoras. León Effio y Rodríguez Quispe (2021) también aplicaron TOC para encontrar y resolver cuellos de botella en emergencias.
Sasanfar et al. (2021) aplicaron en Irán la planeación sistemática en la distribución (SLP) para mejorar la disposición de espacios en emergencias y optimizar el flujo de trabajo. La simulación permitió un análisis exhaustivo de los cuellos de botella, lo que llevó a proponer distribuciones alternativas para crear una secuencia lógica entre los espacios y aumentar el tamaño de los procesos más críticos.
Taype-Huamaní et al. (2019) lograron reducir, en un centro médico público peruano, el tiempo de permanencia promedio (de cuatro a tres horas) mediante un equipo de facilitadores. Ryan et al. (2013) combinaron TOC y pensamiento ágil para encontrar y eliminar cuellos de botella en emergencias y así proponer mejoras en base a un mapa de flujo de valor (value stream mapping).
El objetivo del presente trabajo es optimizar los procesos en el área de emergencias de un centro de salud mediante SLP y TOC para reducir los tiempos de atención prolongados.
2. METODOLOGÍA
La investigación tiene un enfoque cuantitativo, basado en el análisis de datos concretos y numéricos para describir, explicar y predecir situaciones, así como para probar propuestas de solución. El diseño es cuasiexperimental, ya que usa intervenciones específicas (TOC, SLP y simulación de procesos) y mide sus efectos en variables dependientes (tiempo de permanencia de pacientes, tiempo en el box y tiempo de espera en la cola de interconsulta), sin asignar aleatoriamente a los sujetos a los grupos de tratamiento.
El alcance es explicativo y correlacional; más allá de analizar los tiempos de cada proceso en la clínica, se buscan las causas de los tiempos prolongados y cómo se relacionan las variables involucradas en un contexto específico para cumplir un objetivo. Se realizará una simulación para obtener una visión detallada de la operación del servicio, y se propondrán mejoras con la teoría de restricciones (TOC) y la metodología de planificación sistemática del diseño (SLP). El alcance se limita a los procesos y pacientes del área de emergencias, que se enfocan en el tiempo y la cantidad total de atenciones por unidad de tiempo.
Las limitaciones del proyecto radican en los datos a recopilar, debido a la aleatoriedad en los tiempos de llegada. Además, aplicar mejoras basadas en estos datos podría implicar costos adicionales que la empresa podría decidir no asumir. Para definir los problemas, se aplicó un diagrama de árbol, donde se identificaron las causas raíz del alto tiempo de atención en emergencias. Luego, se relacionaron estas causas con las herramientas de ingeniería a aplicar, descritas más adelante.
Para la recopilación de datos, se realizó un focus group dirigido al personal del área de emergencias y al equipo de operaciones del centro de salud. El objetivo fue identificar las causas del tiempo prolongado de permanencia en la sala de emergencias y evaluar la percepción de los tiempos de espera y las causas de los retrasos. El personal interno incluyó médicos y administrativos.
Figura 1
Causas raíz y su herramienta

Este trabajo aplicó las herramientas TOC y SLP junto con el software de simulación Arena, seleccionadas tras una revisión sistemática de la literatura. Primero, la teoría de restricciones (TOC) se usó para identificar y abordar cuellos de botella, con base en la premisa de que el desempeño de un sistema está limitado por restricciones clave. El proceso incluyó identificar restricciones mediante datos del focus group, usar el diagrama why-why para desglosar causas raíz, evaluar el impacto de cada restricción y enfocar soluciones prioritarias, que se modelaron y probaron en Arena.
En segundo lugar, la planeación sistemática de la distribución (SLP) optimiza la distribución de espacios, donde evalúa el flujo y la disposición de recursos (Maina et al., 2018). Aunque comúnmente se usa en industrias, su aplicación en centros de salud es viable, como mostraron Sasanfar et al. (2021). SLP incluye el análisis del diseño actual, la identificación de problemas en la disposición y el flujo, y la elaboración de planos con nuevas acomodaciones para mejorar la eficiencia, como la reubicación de equipos.
Finalmente, la simulación de procesos en Arena imita operaciones reales para evaluar y tomar decisiones (Candelaria et al., 2011; Giraldo et al., 2019). El software permite evaluar procesos de atención médica y validar propuestas de mejora mediante la creación de modelos que simulan ajustes para incrementar la eficiencia y capacidad de atención en el área de emergencias.
3. RESULTADOS
Para realizar un análisis correcto del caso de estudio usando las herramientas mencionadas, se presentan a continuación el plano y el croquis del área de emergencias, el diagrama del flujo del proceso de emergencias y la tabla con los tiempos de cada subproceso.
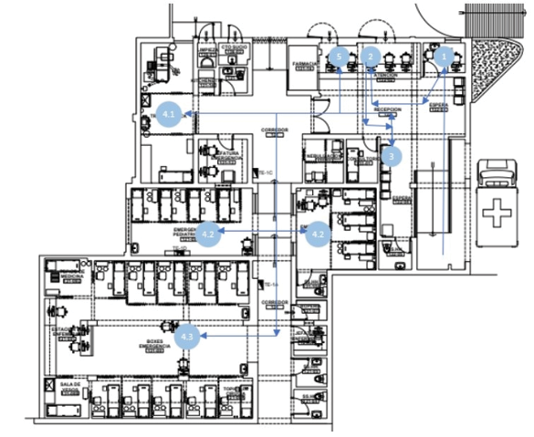
Figura 2
Plano del área de emergencias

1 Área de triaje; 2 Admisión; 3 Sala de espera; 4.1 Traumashock;
4.2 Emergencias pediátricas; 4.3 Emergencia adultos
Nota. Información proporcionada por el centro de salud.
Tabla 1
Datos cuantitativos del proceso de atención por día
|
Periodo |
# |
Promedio espera Admisión |
Promedio espera Atención |
Promedio tiempo Laboratorio |
Promedio tiempo Imágenes |
Promedio atención efectiva |
Promedio atención total |
|
Junio – Agosto 2023 |
154 |
00:03:29 |
00:30:47 |
02:12:44 |
04:26:26 |
02:21:16 |
03:14:28 |
Figura 3
Flujo del proceso de atención en emergencias

Figura 4
Simulación as-is del proceso de emergencias

Tabla 2
Tiempos obtenidos de simulación as-is

Se aplicó la metodología de teoría de restricciones (TOC) para identificar y abordar los cuellos de botella críticos del sistema. Se desarrolló una simulación (véase la Figura 5), cuyos resultados se presentan en la Tabla 2, que permite priorizar los cuellos de botella que extendían el tiempo total. La mayor demora se encontró en los boxes de atención, con un promedio de 2,7451 horas, mientras que el tiempo de espera para interconsulta promediaba las 2,1252 horas. Los altos porcentajes de uso de recursos en esta área, siendo médicos y no máquinas, llevaron a enfocar los esfuerzos en mejorar la zona de boxes. Se elaboró un croquis para simplificar la ubicación y planificar las mejoras.
Figura 5
Croquis as-is de los boxes de emergencia

Considerando el prolongado tiempo en los boxes de la Tabla 2, se realizó una investigación para modificar esa zona y aprovechar mejor el espacio con metodologías y herramientas de SLP. Mediante un diagrama relacional de espacios, se evaluó la importancia de la proximidad entre los lugares clave en la atención en boxes. Para esto, se asignaron niveles de importancia según la cercanía de los lugares donde ocurren procesos durante la atención al paciente.
Figura 6
Tabla relacional del recorrido

Los boxes deben estar lo más cerca posible de la parte administrativa y de las PC (1), ya que médicos y enfermeras alternan entre estos elementos para completar información y realizar solicitudes de apoyo de laboratorio, imágenes o interconsultas. Las computadoras y el área administrativa se agrupan, porque la mayoría de ellas se encuentran en el counter de administración (2). El área de imágenes debe estar separada del resto para contar con un espacio especial para las máquinas (3). El diagrama relacional de recorrido propuesto en la Figura 7 muestra cómo acercar el área administrativa a la mayor cantidad posible de boxes.
Figura 7
Diagrama relacional del recorrido

En la Figura 7, se observa cómo, al poner el área administrativa y las computadoras al medio (puntos 2 y 3), la relación de mayor prioridad, entre estas y los boxes de atención, es representada por líneas más cortas, lo que significa que el personal se traslada menos para sus labores que si se considerase la distribución actual del ambiente. Gracias al uso de la metodología anterior se notó la posibilidad de reubicar el área administrativa y permitir la inclusión de dos boxes adicionales. A continuación, la Figura 8 presenta el croquis que refleja la redistribución en la zona de boxes de emergencia.
Figura 8
Croquis what-if de los boxes de emergencia

El croquis muestra la propuesta de mejora de espacios. Al mover la zona de PC al centro del área, se pueden implementar hasta dos boxes más (en amarillo) y agregar más computadoras, lo cual evita que todas estén ocupadas cuando se necesitan. Además, el tiempo de espera para interconsulta (“Interconsulta.Queue.Waiting.Time”) es de 2,1252 horas, el más prolongado del proceso de emergencias. Por ello, se decidió agregar un médico extra en interconsulta, especializado en traumatología, que trabaja diariamente en lugar de por turnos. Esta decisión se basó en las largas colas y el alto porcentaje de utilización de los médicos (74 %). Agregar un segundo médico extra resultaría en una utilización de solo 27,71 %, lo que implicaría costos adicionales sin productividad suficiente. Con un solo médico adicional, la utilización promedio se ajusta a 66 %.
El aumento en el número de computadoras responde a la petición del área de operaciones del centro de salud, que considera que las actuales son propensas a errores y que los médicos deben esperar a que se restablezca el sistema, ya que las computadoras suelen estar ocupadas. Para validar las propuestas, se ajustaron los recursos y ubicaciones en un nuevo modelo de simulación en Arena. Aunque el flujo del paciente sigue siendo el mismo, los nuevos parámetros representan las mejoras propuestas. Los resultados de ambas simulaciones se compararon mediante indicadores clave.
Tabla 3
Tiempos obtenidos de simulación what-if

Luego de la implementación de mejoras en el simulador, se obtuvieron los resultados que se presentan en la Tabla 4.
Tabla 4
Comparación de resultados de mejoras en el simulador
|
Indicador |
Simulación as-is |
Simulación what-if |
|
Tiempo total |
3,283 horas |
2,735 horas |
|
Tiempo en box |
2,745 horas |
2,268 horas |
|
Tiempo de espera interconsulta |
2,125 horas |
0,849 horas |
|
Utilización de médico: interconsulta 1 |
75,7 % |
64,3 % |
|
Utilización de médico: interconsulta 2 |
73,3 % |
67,5 % |
|
Utilización de médico: interconsulta 3 |
73,7 % |
56,1 % |
Con estos resultados, se logró una reducción de 32,88 minutos en el tiempo total de permanencia de un paciente en emergencias, lo que equivale a una disminución del 16,7 %. El tiempo en el box mejoró en 28,62 minutos (17,4 %) y el tiempo de espera en la cola de interconsulta se redujo en 76,56 minutos (60 %), lo que evidencia una mayor eficiencia en la gestión de interconsultas. La disminución en la utilización de médicos en interconsulta permite una mejor gestión del tiempo y una asignación de tareas más eficiente.
Con una muestra de 37 días de atención, se atendió un promedio de 149 pacientes diarios, considerando el funcionamiento continuo del área de emergencias (24 horas al día los siete días de la semana). Este número incluye pacientes de ambos sexos a partir de los catorce años, ya que los menores a esta edad son atendidos en pediatría. Se logró la reducción del tiempo de atención por paciente en 32,88 minutos, con lo cual es posible atender a 29 pacientes adicionales por día.
Se realizó un análisis financiero para evaluar la inversión y los ingresos adicionales. La inversión incluye la contratación de un médico, la construcción de dos boxes y la remodelación del área de enfermeras. Los costos de los boxes y la remodelación son únicos, mientras que el costo del médico es mensual. Los detalles de los costos y el desglose para cada box, conforme a las normas del Ministerio de Salud (1996, 2007), se presentan en las tablas 5, 6 y 7.
Tabla 5
Costo de un box
|
Concepto |
Costo unitario (S/.) |
Unidades |
Costo total (S/.) |
|
Camilla |
392,7 |
1 |
392,70 |
|
Tomacorrientes de 2 entradas |
18,2 |
3 |
54,60 |
|
Aire acondicionado |
1 699 |
1 |
1 699 |
|
Conectores de gas en pared |
371,7 |
6 |
2 230,20 |
|
6 metros de manguera conductiva de gas |
511,21 |
3 |
1 533,63 |
|
Flujómetro de aire |
156,56 |
1 |
156,56 |
|
Válvula |
465,64 |
2 |
931,28 |
|
Total |
|
|
6 997,87 |
Con la capacidad para atender a 29 pacientes adicionales, se estima un incremento de siete pacientes nuevos al día, equivalente al promedio de walkouts. Este número de pacientes es adicional al promedio estimado de 149. Según el sitio web del centro de salud, el costo promedio de una consulta de emergencia es de S/ 350 por paciente. Por lo tanto, los ingresos adicionales generados por atender a los pacientes que anteriormente se retiraban serían aproximadamente S/ 2450 diarios.
Tabla 6
Ingresos diarios por implementación de propuestas
|
|
|
Sin propuesta |
Con propuesta |
|
% walkouts/día |
4,79 % |
0 % |
|
|
Clientes atendidos/día |
149 |
156 |
|
|
Costo de consulta |
S/ 350 |
S/ 350 |
|
|
Ingreso/día |
|
S/ 52 150 |
S/ 54 600 |
|
Incremento de ingreso diario |
S/ 2 450 |
||
Tabla 7
Balance económico de la propuesta
|
|
M0 |
M1 |
M2 |
M3 |
M4 |
M5 |
M6 |
|
Ingreso |
S/ 49 000 |
S/ 49 000 |
S/ 49 000 |
S/ 49 000 |
S/ 49 000 |
S/ 49 000 |
|
|
Gasto |
S/ 44 294 |
S/ 17 000 |
S/ 17 000 |
S/ 17 000 |
S/ 17 000 |
S/ 17 000 |
S/ 17 000 |
|
Balance |
-S/ 44 294 |
S/ 32 000 |
S/ 32 000 |
S/ 32 000 |
S/ 32 000 |
S/ 32 000 |
S/ 32 000 |
|
Acumulado |
-S/ 44 294 |
-S/ 12 294 |
S/ 19 706 |
S/ 51 706 |
S/ 83 706 |
S/ 115 706 |
S/ 147 706 |
Con los cálculos anteriores, se procedió a hacer un balance de los ingresos y egresos producto de las propuestas de mejora. Considerando una inversión de 44 294 soles, el TIR del proyecto es de 67 % y el tiempo de recupero para este dinero sería de 1,38 meses. En base a estos dos indicadores, se concluye un plan bastante rentable para la empresa en caso decidiese aplicar las mejoras mencionadas.
4. DISCUSIÓN
Desde el inicio del proyecto, el objetivo principal fue reducir el tiempo de espera en el área de emergencias del centro de salud. El indicador clave de efectividad, el tiempo total de atención por paciente, se redujo en un 16,7 %, lo que permite atender a más pacientes diarios y alivia la carga laboral de los médicos, como se refleja en la utilización de recursos humanos. Este impacto cumple con las expectativas de las partes interesadas. En términos económicos, la inversión necesaria para la implementación se recuperaría rápidamente, como se muestra en la Figura 13. Comparado con un proyecto similar de León Effio y Rodríguez Quispe (2021), que tuvo un TIR del 12 %, esta investigación alcanza un TIR del 67 %, lo que resulta así mucho más rentable.
Los resultados muestran una reducción del tiempo de atención a 164,10 minutos. Esto aumenta la capacidad de atención en un 19,47 %, aunque queda un 12,47 % para alcanzar el objetivo planteado. Taype-Huamaní et al. (2019) reportan un tiempo de permanencia promedio de 198 minutos en un centro de salud similar, 33,9 minutos más que el tiempo logrado en este proyecto. Sasanfar et al. (2021) reportan una reducción del 23,18 % en el tiempo de espera al aplicar SLP, lo que sugiere que podría ser posible reducir aún más el tiempo con esta herramienta, ya que en este estudio la reducción fue del 13,16 %.
Tupayachy Quispe et al. (2019) usaron TOC para reducir la cantidad de personas sin atención médica, de manera similar a este proyecto, que también reduce el tiempo de atención y puede atender hasta 29 pacientes adicionales al día. Ryan et al. (2013) muestran la combinación de TOC con otras herramientas para encontrar cuellos de botella en emergencias, una estrategia aplicada también en este trabajo. León Effio y Rodríguez Quispe (2021) lograron aumentar los ingresos de un centro de salud privado en Lima, Perú, en 38 755,16 soles. En comparación, el trabajo presentado genera un aumento de 32 000 soles mensuales para la clínica.
Para futuros trabajos, proponemos usar este estudio como referencia para mejorar los tiempos de atención en otros centros de salud en Perú y en el extranjero, especialmente en el sector público. Además, sugerimos explorar la combinación de otras herramientas de ingeniería, como lean, 5s y SLP, para optimizar la calidad del servicio en emergencias y reducir al mínimo los tiempos del proceso.
5. CONCLUSIONES
Tras implementar las mejoras en emergencias, se redujo el tiempo promedio de atención por paciente en 32,88 minutos, un 16,7 % menos. Esto ha llevado a una atención más eficiente, que mejora la experiencia del paciente y optimiza la gestión de interconsultas. Además de ello, la propuesta generó un impacto económico positivo, pues aumentó la capacidad de atención y eliminó el porcentaje de pacientes que abandonaban el lugar sin ser atendidos. Esto se traduce en un ingreso adicional aproximado de 2450 soles diarios para el centro.
Para el análisis y la creación de propuestas de mejora, el uso de TOC y SLP resultó crucial. Estas herramientas fueron de gran utilidad, se aplicaron según lo planeado y dieron grandes resultados. Para futuros trabajos, se recomienda combinar diferentes herramientas de ingeniería en áreas de emergencia para encontrar el mejor modelo. Por ejemplo, White et al. (2014) aplicaron el sistema lean, que logró una reducción de quince minutos en el tiempo de permanencia en un centro de salud.
REFERENCIAS
Candelaria, B., Ruiz, O., Gallardo, F., Pérez, P., Martínez, A., & Vargas, L. (2011). Aplicación de modelos de simulación en el estudio y planificación de la agricultura, una revisión. Tropical and Subtropical Agroecosystems, 14(3), 999-1010. http://www.scielo.org.mx/scielo.php?script=sci_arttext&pid=S1870-04622011000300004&lng=es&nrm=iso
Giraldo-García, J., Castrillón-Gómez, O., & Ruiz-Herrera, S. (2019). Simulación discreta y por agentes de una cadena de suministro simple incluyendo un Sistema de Información Geográfica (SIG). Información Tecnológica, 30(6), 123-136. http://dx.doi.org/10.4067/S0718-07642019000600123
Instituto Nacional de Estadística e Informática. (2018). Usuarios esperan más de una hora para ser atendidos en un establecimiento de salud. https://m.inei.gob.pe/prensa/noticias/usuarios-esperan-mas-de-una-hora-para-ser-atendidos-en-un-establecimiento-de-salud-7823/
León Effio, A., & Rodríguez Quispe, S. (2021). Estudio para la implementación de una mejora en el proceso en el área de emergencia de la clínica Sanna El Golf [Tesis de licenciatura, Universidad de Lima]. Repositorio institucional de la Universidad de Lima. https://hdl.handle.net/20.500.12724/15038
Maina, E., Muchiri, P., & Keraita, J. (2018). Improvement of Facility Layout Using Systematic Layout Planning. IOSR Journal of Engineering (IOSRJEN), 8(5), 33-43. https://www.researchgate.net/publication/343933478_Improvement_of_Facility_Layout_Using_Systematic_Layout_Planning
Ministerio de Salud del Perú. (1996). Normas técnicas para proyectos de arquitectura hospitalaria. Dirección General de Salud de las Personas y Dirección Ejecutiva de Normas Técnicas para Infraestructura en Salud. https://cdn.www.gob.pe/uploads/document/file/417632/-456272725980287643720191106-32001-14pe3tk.pdf?v=1573077483
Ministerio de Salud. (2007). Norma técnica de salud de los servicios de emergencia NT N° 042-MINSA/DGSP-V.01. Dirección General de Salud de las Personas y Dirección de Servicios de Salud. http://bvs.minsa.gob.pe/local/dgsp/NT042emerg.pdf
Ponce de León, Z. (2021). Sistema de salud en el Perú y el COVID-19. Documento de política pública. Escuela de Gobierno y Políticas Públicas de la Pontificia Universidad Católica del Perú. http://repositorio.pucp.edu.pe/index/handle/123456789/176598
Ryan, A., Hunter, K, Cunningham, K., Williams, J., O’Shea, H. Rooney, P. & Hickey, F. (2013). STEPS: Lean Thinking, Theory of Constraints and Identifying Bottlenecks in an Emergency Department. Irish Medical Journal, 106(4), 105-106. https://www.imo.ie/news-media/publications/April%202013%20IMJ%20Volume%20106%20Number%204.pdf#page=9
Sasanfar, S., Bagherpour, M., & Moatari-Kazerouni, A. (2021). Improving emergency departments: Simulation-based optimization of patients waiting time and staff allocation in an Iranian hospital. International Journal of Healthcare Management, 14(4), 1449-1456. https://doi.org/10.1080/20479700.2020.1765121
Statista. (2021). Ranking de los países de América Latina y el Caribe con mayor gasto público en salud como porcentaje del PIB en 2021. https://es.statista.com/estadisticas/1270377/paises-con-mayor-gasto-sanitario-como-porcentaje-del-pib-en-latinoamerica/
Taype-Huamaní, W., Chucas-Ascencio, L., De la Cruz-Rojas, L., & Amado-Tineo, J. (2019). Tiempo de espera para atención médica urgente en un hospital terciario después de implementar un programa de mejora de procesos. Anales de la Facultad de Medicina, 80(4), 438-442. https://dx.doi.org/10.15381/anales.v80i4.16705
Tupayachy Quispe, D. T., Pareja Daza, B. P., & Carrillo Monteagudo, J. C. (2019, 24-26 de julio). Model simulation for improving processes in a neoplastic hospital [Presentación de escrito]. En 17th LACCEI International Multi-Conference for Engineering, Education, and Technology. Industry, Innovation, and Infrastructure for Sustainable Cities and Communities, Jamaica. https://www.laccei.org/LACCEI2019-MontegoBay/full_papers/FP260.pdf
White, B., Chang, Y., Grabowski, B., & Brown, D. (2014). Using Lean-Based Systems Engineering to Increase Capacity in the Emergency Department. The Western Journal of Emergency Medicine, 15(7), 770-776. https://doi.org/10.5811/westjem.2014.8.21272